Найти в Дзене
ДОМ с умом

Проект "Рубин" - просторный и уютный дом для семьи из 5-ти человек

Это современный двухэтажный коттедж для семьи из 4-6 человек. Снаружи - лаконичный современный дизайн, внутри - продуманная до мелочей планировка. А этажность, естественно, разделяет зоны: шумные общие — внизу, приватные — наверху. Общая площадь: 271 кв.м
Жилая площадь: 236 кв.м
Габариты: 18 х 14,2 м
Фундамент: ростверк на буронабивных сваях
Стены: керамзитоблок 400 мм, утепление 100 мм
Отделка фасада: кирпич
Перекрытие цоколя - полы по грунту, межэтажное - плиты перекрытия, чердачное - по деревянным балкам
Крыша - из металлочерепицы по деревянной стропильной системе На первом этаже кипит жизнь: просторная кухня-гостиная, где так приятно собираться всем вместе, выход на террасу для летних завтраков, гостевая комната. Здесь же удобный гараж на две машины - больше не нужно зимой чистить снег с авто. Второй этаж - тихая зона отдыха. Три уютные спальни, среди которых родительская с отдельной ванной. Постирочная решает вопрос с хранением и стиркой - все необходимое под рукой, но не на виду
Оглавление

Это современный двухэтажный коттедж для семьи из 4-6 человек. Снаружи - лаконичный современный дизайн, внутри - продуманная до мелочей планировка. А этажность, естественно, разделяет зоны: шумные общие — внизу, приватные — наверху.

Характеристики:

Общая площадь: 271 кв.м
Жилая площадь: 236 кв.м
Габариты: 18 х 14,2 м
Фундамент: ростверк на буронабивных сваях
Стены: керамзитоблок 400 мм, утепление 100 мм
Отделка фасада: кирпич
Перекрытие цоколя - полы по грунту, межэтажное - плиты перекрытия, чердачное - по деревянным балкам
Крыша - из металлочерепицы по деревянной стропильной системе

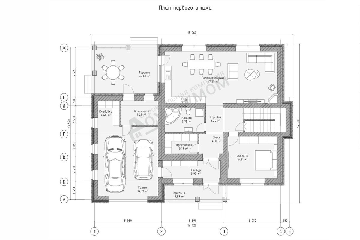
Планировка:

На первом этаже кипит жизнь: просторная кухня-гостиная, где так приятно собираться всем вместе, выход на террасу для летних завтраков, гостевая комната. Здесь же удобный гараж на две машины - больше не нужно зимой чистить снег с авто. Второй этаж - тихая зона отдыха. Три уютные спальни, среди которых родительская с отдельной ванной. Постирочная решает вопрос с хранением и стиркой - все необходимое под рукой, но не на виду.

▪️▪️▪️▪️▪️▪️▪️▪️▪️▪️▪️▪️▪️▪️▪️▪️▪️▪️▪️▪️▪️▪️▪️▪️▪️▪️▪️▪️▪️▪️▪️▪️▪️

📌Жилая площадь – 236 кв.м
📌Кухня-гостиная – 47,6 кв.м
📌Спальни – 4 шт.
📌Терраса – 26,4 кв.м
📌Гараж - на 2 авто

▪️▪️▪️▪️▪️▪️▪️▪️▪️▪️▪️▪️▪️▪️▪️▪️▪️▪️▪️▪️▪️▪️▪️▪️▪️▪️▪️▪️▪️▪️▪️▪️▪️

Стоимость проектной документации (серии АР, КР) - 30 000 руб.