Добавить в корзинуПозвонить
Найти в Дзене
Мила Рылеева

Квартира с видом на Волгу: современная классика без единого прямого угла

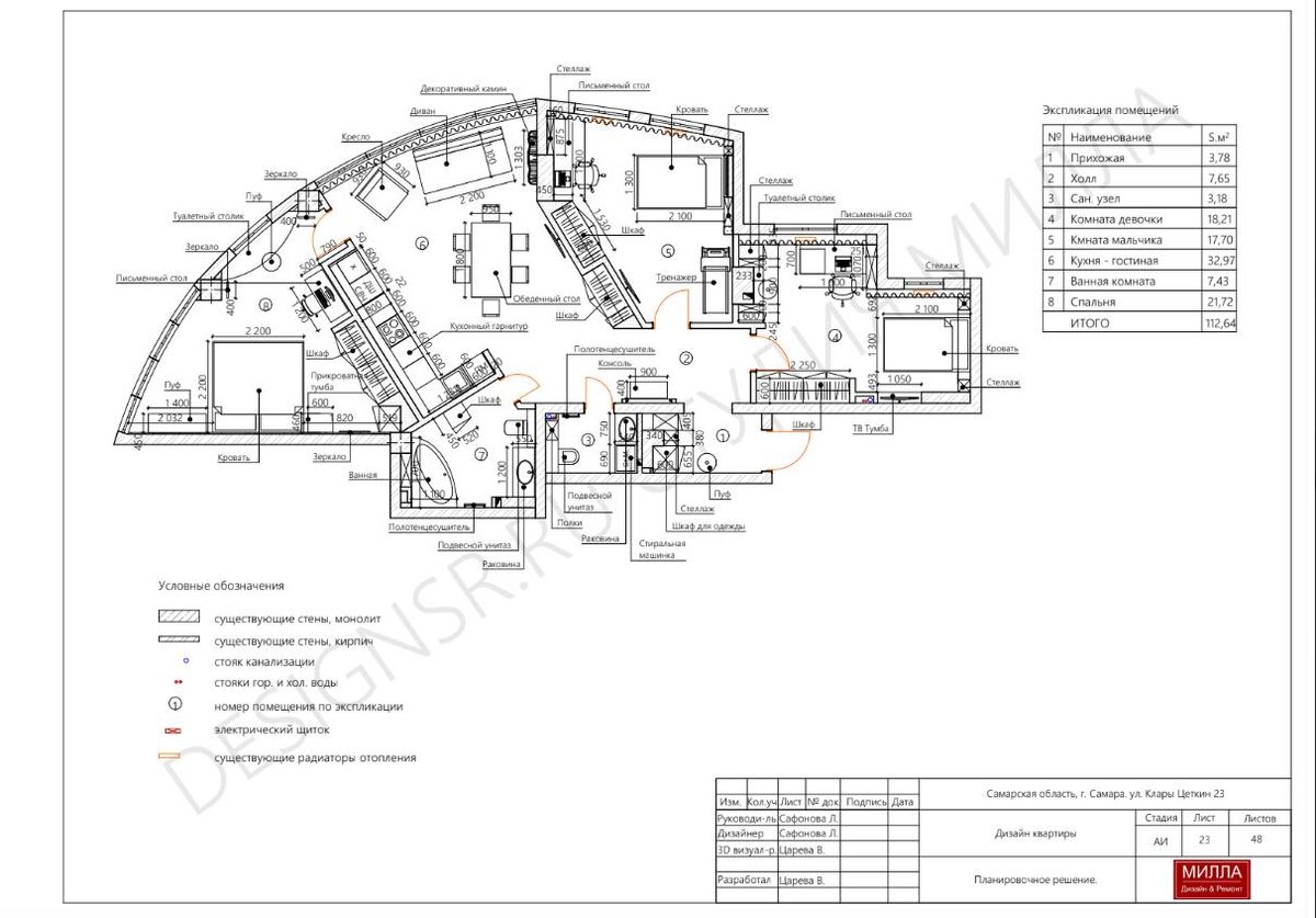
Представьте: вы просыпаетесь утром, открываете глаза — и первым делом видите величественную Волгу прямо за окнами. Свет льется в квартиру с самого рассвета, но вместе с этим возникает вызов: как обустроить дом, где нет ни одного прямого угла, а планировка напоминает полукруг? Такую задачу поставила передо мной мама с двумя детьми — мальчиком и девочкой. Нужно было создать пространство, которое будет и функциональным, и ярким по характеру, и в то же время элегантным. Решение нашлось в стиле современная классика. Вы любите, когда кухня становится центром жизни? Здесь собралась энергия всей квартиры. Это не просто кухня — это место, где звучат смех детей, где семья собирается вечером, а каждый ужин превращается в маленький праздник. - Для девочки — розовые оттенки, нежность и сказка. Комната получилась лёгкой и воздушной, но с деталями, которые будут «расти» вместе с хозяйкой. - Для мальчика - бело-голубая палитра, свежесть и простор. Пространство и для учебы, и для игр, и для мечтани
Оглавление


Представьте: вы просыпаетесь утром, открываете глаза — и первым делом видите величественную Волгу прямо за окнами. Свет льется в квартиру с самого рассвета, но вместе с этим возникает вызов: как обустроить дом, где нет ни одного прямого угла, а планировка напоминает полукруг?

Такую задачу поставила передо мной мама с двумя детьми — мальчиком и девочкой. Нужно было создать пространство, которое будет и функциональным, и ярким по характеру, и в то же время элегантным. Решение нашлось в стиле современная классика.

1.Кухня-гостиная — сердце дома

Вы любите, когда кухня становится центром жизни? Здесь собралась энергия всей квартиры.

  • Яркая цветовая гамма,
  • декоративная штукатурка с золотым напылением,
  • и богатый лепной декор.

Это не просто кухня — это место, где звучат смех детей, где семья собирается вечером, а каждый ужин превращается в маленький праздник.

кухня - гостиная
кухня - гостиная
кухня - гостиная
кухня - гостиная
кухня - гостиная
кухня - гостиная
кухня - гостиная
кухня - гостиная
кухня - гостиная
кухня - гостиная
кухня - гостиная
кухня - гостиная
кухня - гостиная
кухня - гостиная
кухня - гостиная
кухня - гостиная
кухня - гостиная
кухня - гостиная

2.Детские: два мира в одной квартире

- Для девочки — розовые оттенки, нежность и сказка. Комната получилась лёгкой и воздушной, но с деталями, которые будут «расти» вместе с хозяйкой.

-11
-12
-13
-14
-15
-16
-17
-18
-19

- Для мальчика - бело-голубая палитра, свежесть и простор. Пространство и для учебы, и для игр, и для мечтаний.

-20
-21
-22
-23
-24
-25

3.Спальня мамы — личное пространство

Главный акцент — зеленая кровать на фоне спокойной бежевой базы. Добавили яркие обои, чтобы в комнате чувствовалась энергия, но при этом она оставалась уютной и расслабляющей. Это место, где можно выдохнуть после дня, полного забот.

-26
-27
-28
-29
-30

4.Санузлы: внимание к деталям

Мы сделали их два — для удобства всей семьи. Отделка — плитка под мрамор от Lascancort, акценты — золотая мозаика и лепной декор. Даже в функциональных зонах интерьер выглядит празднично и дорого.

-31
-32
-33
-34
-35
-36
-37
-38
-39
-40
-41

Эта квартира стала примером того, что нестандартная планировка — не помеха, а возможность. Панорамные окна, полукруглые стены, отсутствие прямых углов — всё это придало проекту уникальность и характер.

✨ Вид на Волгу стал главным вдохновением, а современная классика объединила в себе элегантность, яркость и уют.

А вы бы решились на интерьер в современном классическом стиле? Или предпочитаете минимализм и спокойные линии?