Добавить в корзинуПозвонить
Найти в Дзене
Маркс Н.

Я построил прообраз вечного двигателя второго рода. Часть 3

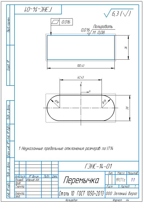
Пока я придумываю, как составить обращение в Фонд перспективных исследований, публикую обещанный чертеж якоря-перемычки для сравнения первого ВД и второго ВД по экономичности и КПД. Кто может сделать и переслать по божеским ценам? Образование у меня базовое инженера-химика, поэтому у конструктора-машиностроителя по чертежу, сделанному мной, могут возникнуть вопросы. Публикую обещанный способ измерения мощности на валу ВД. Всем изобретателям вечного двигателя, у кого дома есть компьютер и столик на кухне, посвящается. Пришлось столкнуться с такой проблемой. Классический способ определения мощности на валу двигателя с помощью гири и динамометра хорош в приспособленных для этого производственных помещениях. У меня на кухонном столе все сводилось к возведению шатких саклей с последующим запутыванием шнура, получением гирькой в лоб и полным разрушением взлелеянного вечного двигателя. «Хватит трындеть!», кричала жена. В те редкие минуты, когда этих катастроф не происходило, нагрев шнура от
Изображение взято из открытых источников
Изображение взято из открытых источников

Пока я придумываю, как составить обращение в Фонд перспективных исследований, публикую обещанный чертеж якоря-перемычки для сравнения первого ВД и второго ВД по экономичности и КПД. Кто может сделать и переслать по божеским ценам? Образование у меня базовое инженера-химика, поэтому у конструктора-машиностроителя по чертежу, сделанному мной, могут возникнуть вопросы.

-2

Публикую обещанный способ измерения мощности на валу ВД.

Концептуальная схема расчета КПД на валу двигателя
Концептуальная схема расчета КПД на валу двигателя

Всем изобретателям вечного двигателя, у кого дома есть компьютер и столик на кухне, посвящается.

Пришлось столкнуться с такой проблемой. Классический способ определения мощности на валу двигателя с помощью гири и динамометра хорош в приспособленных для этого производственных помещениях. У меня на кухонном столе все сводилось к возведению шатких саклей с последующим запутыванием шнура, получением гирькой в лоб и полным разрушением взлелеянного вечного двигателя. «Хватит трындеть!», кричала жена. В те редкие минуты, когда этих катастроф не происходило, нагрев шнура от трения, неравномерные рывки от разбалансировки приводили к 50% -м погрешностям в измерении КПД.

Призвав на помощь всю свою неимоверную мудрость, я решил проблему с идеальной точностью.

У каждого советского человека раньше в коридоре был черного цвета счетчик электроэнергии.

Проходивший по нему ток создавал силовое поле, которое наводило вихревые токи в алюминиевом диске счетчика, заставляя крутиться диск с частотой прямо пропорциональной потребляемой мощности.

Эту зависимость я стал использовать для подсчета КПД своего двигателя.

На барахолке купил алюминиевый блинчик ( поз.1 на схеме). Там все нижние цены по сто рублей. На монтажный картонный диск (поз.2) приделал передвигаемую подложку для магнита (поз.3). К ней намертво приклеил небольшой магнит (поз.5). И блинчик, и диск насадил на вал (поз. 8). Напротив магнита выставил копеечный геркон, который потом заменил на датчик Холла, тоже дешевый (поз.4). Намотал на ворот (поз.9), сидящий на валу (поз.8), метровый шнурок (поз.7). К шнурку привязал крючок, на который вешал поочередно разного веса гирьки (поз.6). На крышке двигателя прикрепил большой и сильный магнит (поз.10). При обесточенном двигателе наматывал шнур с гирькой до края стола и отпускал. Через три-четыре оборота вала груз начинал опускаться с постоянной скоростью. Частоту напряжения, подаваемого с делителя напряжения (в цепи с герконом и батарейкой) на звуковую карту компьютера, показывал график бесплатной демоверсии POWERGRAPH. Она равнялась частоте вращения вала с точностью до чертовых знаков после запятой. Отмерял участок по графику, где частота была постоянной, и определял время вращения по этому участку с той же чертовой точностью. Наматывал на ворот три-четыре оборота шнура, где частота менялась, помечал, и эту длину шнура вычитал при расчете работы груза по формуле mgh. Величину работы при разных грузах делил на время движения этих грузов, по связанными с грузами участками постоянной частоты. В результате получал мощность на валу двигателя. Строил на миллиметровке график зависимости мощности на валу двигателя от частоты его вращения. Это вам не советский электросчетчик! График в виде ветви параболы! Разброс экспериментальных точек от идеальной параболы отличался только на 5%.

Подавал питание на двигатель и разбирался в разных режимах его работы. POWERGRAPH показывал частоту вращения, график на миллиметровке показывал мощность на валу двигателя. Произведение вольтметра и амперметра на шнуре питания показывали затрачиваемую мощность. Эти показания сравнивались потом с интегральными показаниями POWERGRAPH. Это были сладостные минуты умиротворения от деления мощности двигателя на затрачиваемую мощность электроэнергии и умножению получаемого результата на 100%

Дальше будем думать, как оценивать труд интернет консультантов в игровой криптовалюте. Ее еще создать надо!

Подписываемся, знакомимся.