Добавить в корзинуПозвонить
Найти в Дзене
Уютный дом с BLIZKO

Самая уютная хрущевка, которую дизайнер отремонтировал для мамы

Дизайнер Лана Александрова не стала мириться с тем, что ее мама живет в «уставшей» хрущевке. Эксперт полностью переосмыслила дизайн и отремонтировала квартиру. Получилось больше, чем просто хорошо, получилось великолепно. Давайте посмотрим! Надо отметить, что планировка у квартиры удобная. Квартиру-распашенку с двумя балконами еще надо поискать. Располагается недвижимость на последнем этаже. Поэтому дизайнер без проблем согласовала увеличение кухни и расширение санузла за счет площади коридора. Высоту межкомнатных дверей увеличили до 2,4 м, тем самым визуально подняли потолки и впустили больше света в узкую прихожую. Кухонный гарнитур благородного серо-синего оттенка делает помещение глубже. Обратите внимание, одну стену оставили без верхних шкафчиков и даже полок. Оставили только вытяжку над газовой плитой. Этот прием задает кухне легкое и воздушное настроение. А соседнюю стену наоборот скомпоновали полностью: и верхние шкафы и шкафы-колонны, за фасадами которых скрыли холодильник. Та
Оглавление

Дизайнер Лана Александрова не стала мириться с тем, что ее мама живет в «уставшей» хрущевке. Эксперт полностью переосмыслила дизайн и отремонтировала квартиру. Получилось больше, чем просто хорошо, получилось великолепно. Давайте посмотрим!

  • Расположение: г. Пушкин, Санкт-Петербург
  • Год постройки: 1958
  • Площадь: 2-комнатная, 53 кв. м

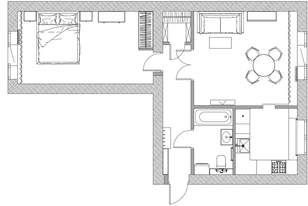
План квартиры

-2

Надо отметить, что планировка у квартиры удобная. Квартиру-распашенку с двумя балконами еще надо поискать. Располагается недвижимость на последнем этаже. Поэтому дизайнер без проблем согласовала увеличение кухни и расширение санузла за счет площади коридора. Высоту межкомнатных дверей увеличили до 2,4 м, тем самым визуально подняли потолки и впустили больше света в узкую прихожую.

Кухня и столовая

-3

Кухонный гарнитур благородного серо-синего оттенка делает помещение глубже. Обратите внимание, одну стену оставили без верхних шкафчиков и даже полок. Оставили только вытяжку над газовой плитой. Этот прием задает кухне легкое и воздушное настроение.

-4

А соседнюю стену наоборот скомпоновали полностью: и верхние шкафы и шкафы-колонны, за фасадами которых скрыли холодильник. Так в комнате появился баланс.

-5

Подоконник переделали: теперь это одновременно и рабочая зона и кухонный стол. Здесь можно быстро перекусить или съесть завтрак.

Подойдут для кухни:

Столовая

А для неспешных и душевных посиделок есть обеденная зона. Она находится в гостиной. Круглый стол, венские стулья, чайный расписной сервиз с золотой каемочкой и ваза с цветами — идеальный сценарий сервировки для хрущевки.

-7

Для вашего уютного чаепития:

Сразу становится по-домашнему тепло, хочется налить чай и съесть бутерброд с бабушкиным вареньем. А посмотрите, какая красавица-люстра свисает с потолка. Наверняка нашли у бабушки!

Гостиная

-9

В гостиной разместили шкаф-витрину с книгами, розовый плюшевый диван на два места и двойной журнальный столик. Он из стекла и добавляет легкости помещению. Напротив дивана телевизор, картины и постеры, которые наверняка дороги владелице.

Спальня

-10

Напротив гостиной находится спальная комната. Раньше здесь было не так много света, балкон перекрывали кроны деревьев, поэтому палитру дизайнер выбрала светлую. Нежные оттенки припыленной розы великолепно сочетаются с припудренным зеленым на обоях. Растительный принт с золотыми птицами привлекает внимание и отпускает, чтобы разглядеть декоративное зеркало над кроватью. С деталями дизайнер работать точно умеет!

-11

Рядом с кроватью находится вместительный белый шкаф для хранения одежды. Кстати, между спальней и гостиной в коридоре есть кладовая. Ее наверняка тоже отвели под хранение.

Прихожая

-12

Проходное местечко совсем небольшое. Тут поместились обувница, скамейка-банкетка и вешалка с крючками. Грязную зону показали плиткой. Компактно и функционально.

Товары для прихожей:

Дизайн: Лана Александрова. Фото: Татьяна Никитина.

Вы бы купили такую квартиру для своей мамы?

Вот что еще можно почитать по этой теме: