Добавить в корзинуПозвонить
Найти в Дзене

УЮТНЫЙ ДВУХЭТАЖНЫЙ ДОМ ДЛЯ БОЛЬШОЙ СЕМЬИ, 476 М2

Изюминка проекта — простой экстерьер, который дополнен большой террасой и балконами. Плюс к этому здесь довольно большая площадь остекления и она дает максимум естественного света в комнатах. Площадь дома позволила спроектировать на втором этаже 5 спален, 3 санузла, а на первом даже обустроить кинотеатр! И конечно, мы постарались сделать этот дом максимально функциональным, чтобы в нем удобно было жить круглый год. 🏠Планировку дома смотрите в фотогалерее в конце статьи! ХАРАКТЕРИСТИКИ ПРОЕКТА ▪️Площадь дома: 476 м2 ▪️Этажей: 2 ▪️Спален: 5 ▪️Санузлов: 6 ❗️О том, что входит в комплектацию этого дома, читайте на странице проекта. 🔥Хотите построить такой дом на своем участке? Оставляйте заявку на сайте или звоните: ☎️ +7(495) 234-01-11

Изюминка проекта — простой экстерьер, который дополнен большой террасой и балконами.

Плюс к этому здесь довольно большая площадь остекления и она дает максимум естественного света в комнатах.

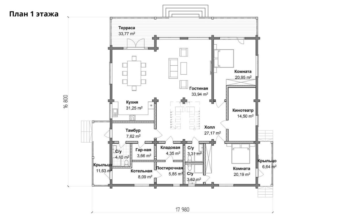
Площадь дома позволила спроектировать на втором этаже 5 спален, 3 санузла, а на первом даже обустроить кинотеатр!

И конечно, мы постарались сделать этот дом максимально функциональным, чтобы в нем удобно было жить круглый год.

🏠Планировку дома смотрите в фотогалерее в конце статьи!

ХАРАКТЕРИСТИКИ ПРОЕКТА

▪️Площадь дома: 476 м2

▪️Этажей: 2

▪️Спален: 5

▪️Санузлов: 6

❗️О том, что входит в комплектацию этого дома, читайте на странице проекта.

🔥Хотите построить такой дом на своем участке? Оставляйте заявку на сайте или звоните: ☎️ +7(495) 234-01-11

-2
-3