Найти в Дзене

Доброе утро

Доброе утро! 1. С заказчиками по проекту на 8-й Советской согласовали планировку третьей комнаты и перешли к концепцией над ней. 2. Согласовываем стеллаж в спальню по проекту на Малой Митрофаньевской. 3. Заказываем декор для проекта офиса компании Top Auto Store на Салова 61

Доброе утро!

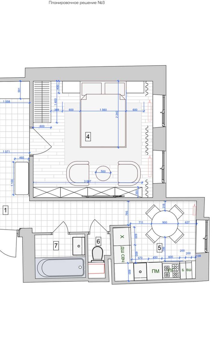
1. С заказчиками по проекту на 8-й Советской согласовали планировку третьей комнаты и перешли к концепцией над ней.

2. Согласовываем стеллаж в спальню по проекту на Малой Митрофаньевской.

3. Заказываем декор для проекта офиса компании Top Auto Store на Салова 61

-2
-3