Добавить в корзинуПозвонить
Найти в Дзене
ЭТО ВАШ ИНТЕРЬЕР

Нам в наследство от родителей досталась старая квартира, где ремонта не было много лет. Показываю, как с мужем всё переделали. Есть фото ДО

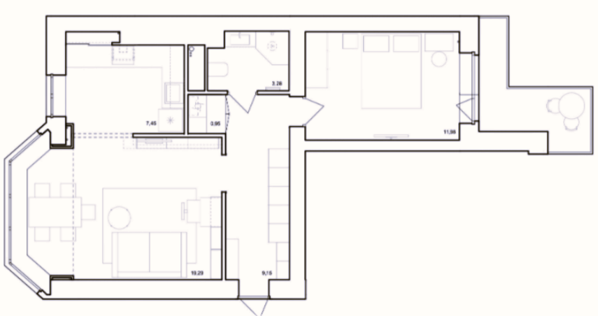
Квартира в Санкт-Петербурге, о которой пойдет речь, стала событием в жизни новых владельцев, которые унаследовали её от родителей. Последний раз здесь делали ремонт почти 30 лет назад, и время сказалось на состоянии жилья. Но вместо того чтобы оставить её как есть, наши герои решили преобразовать пространство, чтобы сделать его современным и уютным для арендаторов. Давайте проанализируем, каким образом был разработан дизайн интерьера, который сочетает в себе эстетику и практичность. С самого порога квартиры начинается история преображения. В прихожей преобладает светлая цветовая гамма, которая придаёт интерьеру ощущение воздушности и комфорта. Правая сторона от входа занята большим шкафом до потолка, где владельцы смогут хранить верхнюю одежду и обувь. Шкаф спроектирован в соответствии с актуальными стандартами. В нём предусмотрено множество полок и выдвижных ящиков, что обеспечивает удобство и функциональность. Слева от входа находится большое зеркало, которое зрительно увеличивает
Оглавление

Квартира в Санкт-Петербурге, о которой пойдет речь, стала событием в жизни новых владельцев, которые унаследовали её от родителей. Последний раз здесь делали ремонт почти 30 лет назад, и время сказалось на состоянии жилья. Но вместо того чтобы оставить её как есть, наши герои решили преобразовать пространство, чтобы сделать его современным и уютным для арендаторов.

Давайте проанализируем, каким образом был разработан дизайн интерьера, который сочетает в себе эстетику и практичность.

Проект: Открытие нового пространства

  • Локация: Санкт-Петербург
  • Площадь квартиры: 53 кв. метра
  • Владельцы: молодые супруги

Прихожая: Современное начало

С самого порога квартиры начинается история преображения. В прихожей преобладает светлая цветовая гамма, которая придаёт интерьеру ощущение воздушности и комфорта. Правая сторона от входа занята большим шкафом до потолка, где владельцы смогут хранить верхнюю одежду и обувь.

Шкаф спроектирован в соответствии с актуальными стандартами. В нём предусмотрено множество полок и выдвижных ящиков, что обеспечивает удобство и функциональность.

-3

Слева от входа находится большое зеркало, которое зрительно увеличивает коридор и отражает свет, наполняющий помещение. Этот элемент играет важную роль как с точки зрения эстетики, так и с точки зрения функциональности.

Коридор: Изменение функциональности

Ранее коридор выглядел как узкое пространство, ведущее к кухне, санузлу и гостиной. В рамках нового дизайна вход в кухню был перенесен в гостиную, что сделало движение по квартире более логичным и удобным.

Объединение ванной комнаты и туалета также улучшило функциональность: теперь здесь появилась хозяйственная зона. В этой зоне разместились стиральная машина, пылесос и инвентарь для уборки, что позволяет удобно организовать домашние дела без лишнего шума и видимости для гостей.

-4

Кухня: Красота и практичность

Кухня стала центральным элементом обновленной квартиры. С переносом входа из коридора в гостиную появилась возможность формировать более открытое и дружелюбное пространство. Чтобы не перегружать зону, верхние шкафы были установлены только с одной стороны, что упростило восприятие кухни и увеличило доступный рабочий стол.

-5

Фартук из закаленного стекла горчично-зеленного цвета простирается во всю стену, добавляя тепла и современности. За фартуком скрываются полки, что позволяет поддерживать порядок, ведь ненужные предметы будут легко убраны.

-6

Мебель для кухни была выбрана из ассортимента IKEA — это решение обеспечило гармонию и современный вид, а также удобство в эксплуатации. Спокойные и нейтральные оттенки создают успокаивающую атмосферу, которая будет привлекательна для будущих арендаторов.

Гостиная: Уютная зона для общения

Гостиная стала местом, где семья и друзья могут собираться и проводить время вместе. Благодаря расширению дверного прохода между гостиной и кухней, пространство стало более светлым и просторным. С учетом газификации кухни, для безопасности была установлена выкатная дверь-купе, что визуально разграничивает помещение, но не создает границ.

Здесь, у окна эркера, возникла новая столовая зона. Перемещение столовой в это помещение позволило освободить место на кухне и сделать её более удобной для приготовления еды. Раскладной диван добавляет функциональности, а прозрачные стеллажи выглядят легкими и воздушными, при этом оставаясь практичными для хранения книг и аксессуаров.

-8

Цветовая гамма, как и в других помещениях, выполнена в нежных нейтральных оттенках. Светлый ламинат на полу подчеркивает общий стиль и визуально увеличивает пространство.

-9

Спальня: Уют и комфорт

Для спальни дизайнеры решили не вносить конструктивные изменения, так как она находится между несущими стенами. Здесь имеется выход на балкон, который полностью остеклён, позволяя наслаждаться светом и свежим воздухом. Стена возле кровати оформлена в насыщенном цвете, привнося акцент и создавая атмосферу уюта.

-10

У окна был размещен небольшой туалетный столик — идеальное место для утреннего макияжа или вечернего расслабления. Слева от входа находится белый шкаф, который удачно дополняет обстановку и предоставляет достаточно пространства для хранения вещей.

Ванная комната: Пространство без границ

Объединение ванной комнаты и туалета стало одним из самых рациональных решений в этом проекте. Теперь санузел выглядит более просторным и современным. Традиционная ванна была заменена на душевую кабинку, что сделало пространство более удобным и легким.

Здесь также были заменены все коммуникации на новые, что обеспечило долговечность и надежность. Напольное покрытие из керамогранита, имитирующее битую плитку, создает единый стиль с коридором и кухней, придавая санузлу современный вид и облегчая уборку.

-12

Заключение: Новый взгляд на старое наследие

Этот проект показывает, что даже квартира, находившаяся в запустении три десятилетия, может стать местом, полным жизни и стиля. Умелое использование пространства, продуманные решения и внимание к деталям сделали эту квартиру идеальной для будущих арендаторов.

Преобразование этой квартиры — это не просто ремонт, это настоящее преображение, где каждая мелочь имеет значение. Она станет не только комфортным жильём, но и выгодным вложением средств.

Если вам понравилась эта история о волшебном преображении, не забудьте поставить лайк и подписаться, чтобы не пропустить новые материалы!