Добавить в корзинуПозвонить
Найти в Дзене
Септик Каталог

Установка инсталляции унитаза: пошаговая инструкция для идеального результата на 20 лет

Инсталляция – это скрытая несущая конструкция для подвесного унитаза, заменяющая традиционный напольный монтаж. Она представляет собой металлический каркас со встроенным бачком и точками крепления для чаши. При установке инсталляции унитаза вся техническая часть прячется в стену или специальную нишу, оставляя на виду только изящную чашу и кнопку смыва. Такое решение требует точных расчетов и профессионального подхода к монтажу. Качественная установка инсталляции унитаза обеспечивает надежную фиксацию унитаза на десятилетия. Выбирая систему, обращайте внимание на материал рамы и максимальную нагрузку. Главная отличительная черта навесных моделей – отсутствие контакта с полом. Чаша крепится непосредственно к инсталляционной раме через специальные шпильки. Это создает эффект парящего в воздухе сантехнического прибора. Установка подвесного унитаза с инсталляцией требует прочного основания: раму фиксируют к капитальной стене анкерными болтами или заливают стойки в бетонную стяжку. Все комму
Оглавление

Инсталляция – это скрытая несущая конструкция для подвесного унитаза, заменяющая традиционный напольный монтаж. Она представляет собой металлический каркас со встроенным бачком и точками крепления для чаши. При установке инсталляции унитаза вся техническая часть прячется в стену или специальную нишу, оставляя на виду только изящную чашу и кнопку смыва. Такое решение требует точных расчетов и профессионального подхода к монтажу. Качественная установка инсталляции унитаза обеспечивает надежную фиксацию унитаза на десятилетия. Выбирая систему, обращайте внимание на материал рамы и максимальную нагрузку.

Особенности подвесных унитазов

Главная отличительная черта навесных моделей – отсутствие контакта с полом. Чаша крепится непосредственно к инсталляционной раме через специальные шпильки. Это создает эффект парящего в воздухе сантехнического прибора. Установка подвесного унитаза с инсталляцией требует прочного основания: раму фиксируют к капитальной стене анкерными болтами или заливают стойки в бетонную стяжку.

Все коммуникации скрываются за декоративной панелью, оставляя доступ только через ревизионный люк. Высота монтажа регулируется индивидуально, обычно в диапазоне 40-43 см от пола до верха чаши. Сантехник Дмитрий Соколов отмечает:

"В своей практике сталкиваюсь с мифом о ненадежности подвесных систем. Правильно установленная инсталляции выдерживает до 400 кг – проверено на объектах с людьми весом 130+ кг".

Виды встраиваемых систем

Производители предлагают два основных типа конструкций для скрытого монтажа. Рамные системы универсальны и подходят для любых помещений. Они состоят из стального каркаса с регулируемыми опорами, который крепится к полу и стенам. Блочные инсталляции компактнее и монтируются непосредственно к несущей стене без дополнительных опор. Выбор зависит от планировки туалета и материала стен.

Тип системыЛучшее применениеТребования к помещениюРамная инсталляцияНовые строения; капитальный ремонт; перепланировка;Наличие места для фальшстены; возможность крепления к полу;Блочная инсталляцияЗамена старого унитаза; малогабаритные санузлы; ремонт без изменения конфигурации стен;Прочная несущая стена; близкое расположение канализационного стояка;

Преимущества и недостатки подвесного унитаза

Перед установкой инсталляции для унитаза взвесьте все аргументы. Это решение имеет неоспоримые плюсы, но и некоторые ограничения.

Плюсы

  • Экономия пространства. Подвесная конструкция визуально увеличивает площадь маленького туалета;
  • Гигиеничность. Отсутствие труднодоступных мест упрощает уборку;
  • Гибкая регулировка высоты. Можно адаптировать под рост всех членов семьи;
  • Эстетичность. Скрытые коммуникации и бачок создают чистый дизайн;
  • Универсальность монтажа. Установить инсталляцию можно даже в углу помещения;
  • Долговечность. Качественные системы служат 20-25 лет без ремонта.

Минусы

  • Сложность ремонта. Для доступа к бачку или соединениям потребуется демонтировать декоративную панель;
  • Высокая стоимость. Цена комплекта в 1.5-2 раза выше классических унитазов;
  • Требовательность к основанию. Монтаж возможен только на прочные стены;
  • Необходимость точных расчетов. Ошибки при разметке приведут к перекосу чаши.

Правила расположения инсталляции

Грамотное размещение системы определяет удобство использования и долговечность конструкции. При выборе места учитывайте три ключевых параметра.

  1. Расстояние до канализационного стояка должно быть минимальным. Идеально прямое подключение без поворотных колен. Уклон трубы соблюдайте в пределах 2-3 см на погонный метр. Центр чаши располагайте на расстоянии 40-45 см от боковых стен. Это обеспечит комфортное использование без тесноты.
  2. Высоту установки подбирайте индивидуально. Стандарт – 40-43 см от пола до верха чаши. Для семей с детьми иногда монтируют на 35-38 см.
  3. Обязательно оставьте 60-65 см свободного пространства перед унитазом. При монтаже в нишу убедитесь, что глубина позволяет скрыть бачок и коммуникации. На практике часто сталкиваются с проблемой старых чугунных труб.

Как вспоминает мастер Андрей Ковалев:

"В хрущевке пришлось создавать дополнительный короб из ГКЛ, чтобы скрыть переход с чугуна на пластик. Это добавило 10 см к глубине инсталляции, но сохранило дизайн-проект".

Как установить инсталляцию унитаза

Монтаж инсталляции требует точности, но при грамотном подходе установить подвесной унитаз с инсталляцией можно своими руками. Последовательное выполнение этапов гарантирует надежность конструкции. Рассмотрим каждый шаг установки инсталляции для унитаза подробно. Важно не спешить и проверять качество работы на каждой стадии.

Как подготовиться к монтажу

Подготовка определяет успех всего проекта. Начните с изучения инструкции по установке вашей модели. Проверьте состояние стен и пола в месте монтажа. Несущие поверхности должны выдерживать нагрузку до 400 кг. Убедитесь в доступности канализационного выхода и точки водоснабжения. Сделайте замеры с учетом будущего финишного покрытия пола. Сантехник Дмитрий Волков предупреждает:

"В 70% случаев проблемы возникают из-за спешки на подготовительном этапе. Лучше потратить лишний час на замеры, чем переделывать всю конструкцию".

Необходимые инструменты

Для монтажа унитаза с инсталляцией потребуется:

  • Перфоратор с бурами по бетону диаметром 8-10 мм;
  • Лазерный и пузырьковый уровень;
  • Рулетка, карандаш, строительный нож;
  • Разводной и газовый ключи;
  • Шуруповерт с набором бит;
  • Труборез для пластиковых труб;
  • Набор шестигранников;
  • Коронка по гипсокартону для кнопки.

Что входит в комплект

Стандартная комплектация инсталляции включает:

  • Металлическая рама с регулируемыми стойками;
  • Пластиковый бачок с запорной арматурой;
  • Крепежные шпильки для чаши унитаза;
  • Комплект анкеров и дюбелей;
  • Ревизионная дверца и декоративная панель;
  • Кнопка или клавиши смыва;
  • Уплотнительные манжеты и прокладки;
  • Инструкция по сборке инсталляции.

Проверка места установки и разметка стен

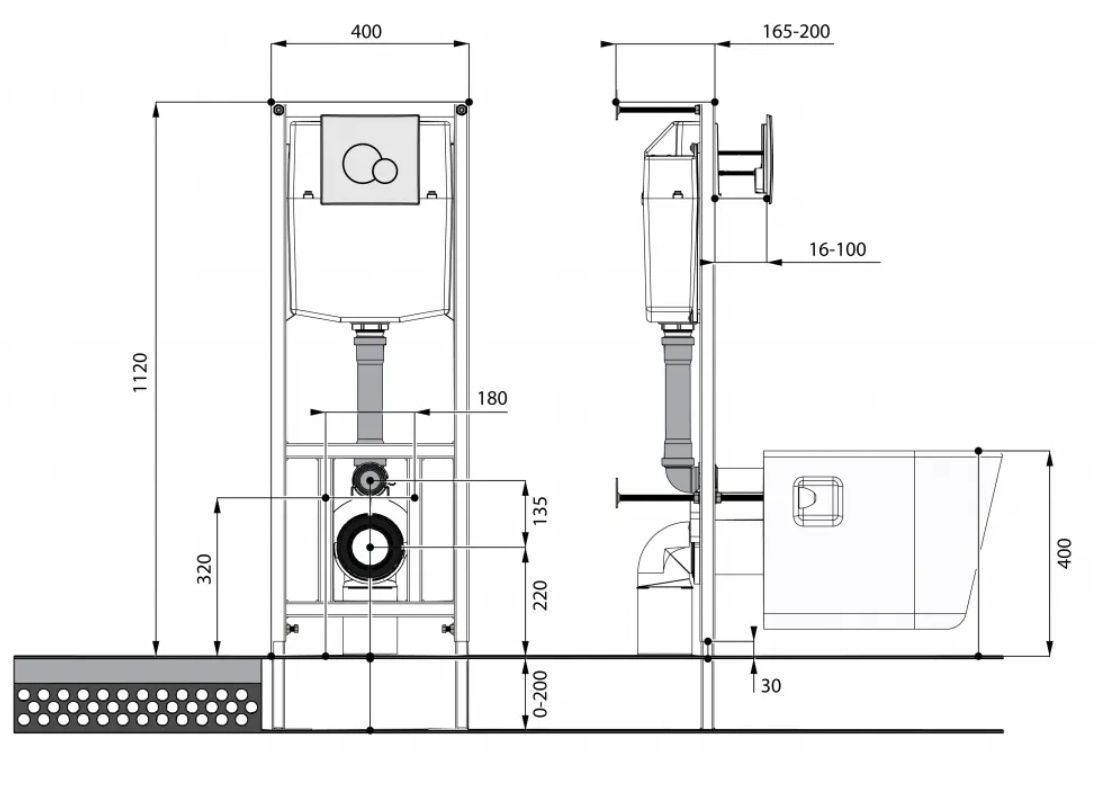
Точная разметка - основа правильной установки инсталляции. Определите центр расположения унитаза. Отметьте положение канализационного выхода. С помощью лазерного уровня нанесите на стене вертикальную и горизонтальную оси. Отметьте высоту установки рамы: обычно нижняя граница каркаса находится на 15-18 см выше уровня будущего чистового пола. Проверьте параллельность линий.

-2

Эксперт по установке Алексей Смирнов отмечает:

"При разметке под установку навесного унитаза новички часто забывают учесть толщину плитки. Добавьте к высоте 1-1.5 см, если отделка пола еще не завершена".

Установка каркаса: тонкости процесса

Монтаж рамы начинается с примерки. Приложите каркас к размеченным линиям. Просверлите отверстия под анкеры согласно инструкции. Установите раму, фиксируя крепежи не до конца. С помощью уровня выровняйте конструкцию по всем плоскостям. Только после точного позиционирования затяните анкеры с максимальным усилием. Проверьте устойчивость - рама не должна шататься или прогибаться под нагрузкой. При монтаже инсталляции в деревянный дом используйте специальные распорные анкеры.

-3

Технология крепления рамы

Надежная фиксация каркаса требует правильного выбора крепежа. Для бетонных стен используйте анкерные болты диаметром 10 мм. В кирпичную кладку устанавливайте химические анкеры. При креплении к гипсокартонной перегородке применяйте специальные дюбели-бабочки. Основные точки крепления должны приходиться на несущие элементы.

"На практике лучше комбинировать крепление к стене и полу, - советует монтажник Сергей П. - Это дает дополнительную устойчивость, особенно при установке инсталляции с унитазом в углу помещения".

На какой высоте устанавливать

Высота установки подвесного унитаза влияет на комфорт использования. Стандартная высота от чистового пола до верха чаши - 40-43 см. Для высоких людей можно увеличить до 45 см. В семьях с детьми иногда устанавливают на 35-38 см. Регулировка осуществляется с помощью телескопических стоек каркаса. Ослабьте фиксирующие гайки, выставьте нужную высоту по отметкам на стойках, затяните крепежи.

Помните: после установки унитаза на инсталляцию изменить высоту будет невозможно.

Подключение к коммуникациям

Подвод коммуникаций - критически важный этап. Сначала подключают канализацию, затем водоснабжение. Все соединения проверяют на герметичность до обшивки каркаса. Используйте только качественные фитинги и уплотнители. Оставьте доступ к соединениям через ревизионный люк.

-4

Подсоединение инсталляции к водопроводу

Подключение воды выполняется гибкой подводкой или полипропиленовыми трубами. Установите отсекающий кран перед бачком. Соедините трубу водоснабжения с впускным клапаном бачка через компрессионный фитинг. Проверьте герметичность соединений сухой салфеткой. Давление в системе должно быть не менее 2 атмосфер. При монтаже подвесного унитаза в частном доме с автономным водоснабжением установите редуктор давления.

Подсоединение к канализации

Канализационный сток организуют с помощью гофрированной трубы диаметром 90-110 мм. Обеспечьте уклон 2-3 см на погонный метр. Используйте резиновые манжеты для герметичного соединения. При длинной трассе установите ревизионный люк.

"Избегайте резких поворотов, - рекомендует сантехник Олег К. - Два отвода по 45° надежнее одного на 90°. Это предотвратит засоры при установке инсталляции унитаза своими руками".

Проверка работоспособности

Перед обшивкой проведите комплексное тестирование. Откройте подачу воды, наполните бачок. Проверьте отсутствие протечек в местах соединений. Протестируйте смыв - вода должна уходить быстро и полностью. Убедитесь, что бачок наполняется до нужного уровня. Проверьте работу кнопки или клавиш смыва. Осмотрите канализационные стыки на предмет протечек. При обнаружении проблем устраните их до продолжения работ.

Обшивка инсталляции

Для обшивки используйте влагостойкий гипсокартон толщиной 12.5 мм. Закрепите листы на металлическом каркасе саморезами 3.5×25 мм с шагом 15-20 см. Вырежьте отверстия для крепежных шпилек и кнопки смыва. Установите ревизионную дверцу напротив арматуры бачка. После обшивки можно приступать к финишной отделке. Усильте область вокруг крепежных шпилек дополнительным профилем - это место будет нести основную нагрузку.

-5

Как вы считаете, что важнее при установке подвесного унитаза: идеальный дизайн туалета или простота доступа к коммуникациям для ремонта? Поделитесь своим мнением в комментариях!

Как правильно установить подвесной унитаз

После монтажа и обшивки инсталляции наступает финальный этап – установка чаши и элементов управления. Здесь важна точность. Чаша крепится подвесной унитаз к стальным шпилькам, выступающим из обшивки. Весь процесс займет меньше часа, если подготовка выполнена верно. Следуйте пошаговой инструкции, чтобы установить унитаз надежно и без перекосов.

Монтаж чаши и кнопки на перегородку из ГКЛ

Сначала подготовьте отверстия. По разметке вырежьте коронкой проем под кнопку смыва в гипсокартоне. Убедитесь, что монтажная коробка клавиши свободно входит в вырез. Обработайте края отверстия герметиком для защиты от влаги. Установите чашу на временные подпорки, совместив монтажные отверстия на ее скрытом креплении со шпильками рамы. Проверьте уровнем горизонтальность.

-6

Сантехник Игорь Л. советует:

«Перед фиксацией чаши убедитесь, что резиновые прокладки на шпильках не сместились. Они гасят вибрацию и предотвращают скрипы».

Крепление подвесного унитаза

Наденьте чашу на шпильки, аккуратно направляя их в посадочные гнезда. Сверху установите декоративные пластиковые колпаки и металлические шайбы. Равномерно затяните гайки крест-накрест динамометрическим ключом. Не перетягивайте – усилие должно соответствовать значению в инструкции (обычно 20-25 Нм). Излишнее усилие может треснуть керамику. Правильно установить унитаз – значит добиться его абсолютной статичности. Попробуйте слегка пошатать чашу руками. Любой люфт требует подтяжки крепежа.

Монтаж клавиши смыва

Установка кнопки – завершающий штрих. Подсоедините пластиковый шток (тягу) от клавиши к механизму спуска бачка согласно схеме производителя. Вставьте корпус кнопки в подготовленное отверстие в ГКЛ. Зафиксируйте его прижимным кольцом с лицевой стороны. Проверьте плавность хода клавиш. Если кнопка западает или требует усилия, отрегулируйте длину штока. При монтаже инсталляции с унитазом Geberit или Grohe часто используют магнитные клавиши – они срабатывают от легкого касания.

Проверка качества работы

Финальный контроль включает несколько тестов:

  • Нагрузочный тест. Аккуратно сядьте на унитаз, перенося вес тела в разные стороны. Конструкция не должна скрипеть, прогибаться или смещаться;
  • Тест на смыв. 5-7 раз подряд нажмите кнопку, оценивая скорость наполнения бачка, силу смыва и отсутствие протечек;
  • Проверка соединений. Осмотрите места подключения воды и канализации через ревизионный люк на предмет сырости или конденсата;
  • Контроль тишины. При наполнении бачка не должно быть громких журчащих звуков.

Нюансы установки инсталляции унитаза

Технология монтажа отличается для разных систем. Знание особенностей поможет избежать ошибок при установке инсталляции для унитаза.

Установка блочной инсталляции унитаза

Блочная система монтируется только к капитальной стене. Используйте анкеры длиной не менее 120 мм. Перед крепежом тщательно выровняйте стену – перепады более 5 мм приведут к напряжению конструкции. Подвод коммуникаций делайте строго по осям, указанным в схеме.

«Главная ошибка при установке блочной инсталляции – неверный расчет точки вывода канализации, – предупреждает монтажник Максим Воробьев. – Смещение всего на 2 см потребует использования гофры с перегибом, что грозит засорами».

Установка рамной инсталляции унитаза

Рамные системы универсальны. Их можно устанавливать инсталляцию даже при отсутствии несущей стены, закрепляя раму к полу и смежным перегородкам. Важно правильно распределить нагрузку: основные анкеры ставьте в точках крепления бачка и чаши. При монтаже в гипсокартонную перегородку заранее заложите закладные брусы в каркас. Для угловой установки используйте специальные угловые кронштейны из комплекта.

Тип инсталляцииКлючевой нюанс монтажаТипичная ошибкаБлочнаяЖесткая привязка к несущей стене; точное позиционирование выводов;Крепление к пустотелому кирпичу без химических анкеров;РамнаяОбязательное крепление к полу; выравнивание по 3 осям;Отсутствие зазора между рамой и чистовым покрытием пола;

Установка инсталляции унитаза от профессионалов

Опытные мастера делятся секретами, как установить инсталляцию с унитазом без проблем:

  • Используйте только оригинальные крепежи из комплекта. Замена шпилек «аналогами» может привести к поломке чаши;
  • При установке кнопки оставляйте запас длины тяги 1-2 см. Это упростит замену арматуры;
  • Перед обшивкой ГКЛ сделайте фото расположения труб и соединений. Это сэкономит время при ремонте;
  • Для домов с вибрацией (рядом с ж/д) применяйте демпферные прокладки под опоры рамы;
  • При монтаже со скрытым креплением в деревянном доме делайте «плавающую» обрешетку для компенсации усадки.
-7

Сантехник с 15-летним стажем Артем Новиков подчеркивает:

«70% гарантии на инсталляцию аннулируются, если вы установили унитаз без динамометрического ключа. Перетянутые гайки – главная причина трещин в керамике».

Какой аспект установки инсталляции унитаза вызывает у вас больше всего сложностей: надежность крепления, сложность доступа к бачку или риск протечек? Делитесь своим опытом в комментариях!

Ставьте «лайк», если не жалко, и подписывайтесь на наш канал, чтобы не пропустить новые интересные публикации!

Источник: https://septikkatalog.ru/santehnika/ustanovka-installyatsii-unitaza.html