Найти в Дзене
ЭТО ВАШ ИНТЕРЬЕР

Мои пожилые родители переехали жить в деревню, а мне оставли свою старую квартиру. Ремонта здесь не было много лет, поэтому я все переделала

Когда жизнь требует перемен, она может начаться с переезда. Наша героиня, молодая и амбициозная девушка, оказалась в новой двухкомнатной квартире в Москве после того, как ее родители решили сменить городской шум на спокойствие деревни. Это решение открывало перед ней новые горизонты, и с первого дня в новом доме она ощутила необходимость в полном преобразовании пространства. С множеством идей и вдохновения, она решила создать уникальное и стильное жилье, которое отражало бы ее личность. Квартира располагается на первом этаже так называемой "сталинки", которая была построена в середине 50-х годов. Поскольку планировка была достаточно гибкой, дизайнеры смогли реализовать множество интересных решений. Понимая, что в доме подведен газ, героиня решила максимально использовать пространство, отключив газовые коммуникации, чтобы перенести кухню в открытую гостиную. Это решение стало отправной точкой для создания новой, более функциональной планировки. Существовавшее раньше зонирование отошло
Оглавление

Когда жизнь требует перемен, она может начаться с переезда. Наша героиня, молодая и амбициозная девушка, оказалась в новой двухкомнатной квартире в Москве после того, как ее родители решили сменить городской шум на спокойствие деревни.

Это решение открывало перед ней новые горизонты, и с первого дня в новом доме она ощутила необходимость в полном преобразовании пространства. С множеством идей и вдохновения, она решила создать уникальное и стильное жилье, которое отражало бы ее личность.

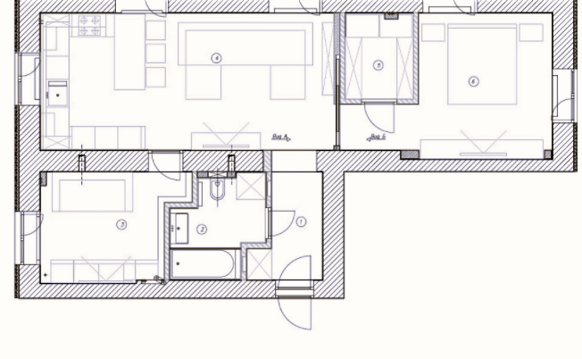
Проект: Основные данные

  • Локация: Москва
  • Площадь: 66 кв. метров
  • Владелец: девушка

Квартира располагается на первом этаже так называемой "сталинки", которая была построена в середине 50-х годов. Поскольку планировка была достаточно гибкой, дизайнеры смогли реализовать множество интересных решений.

Понимая, что в доме подведен газ, героиня решила максимально использовать пространство, отключив газовые коммуникации, чтобы перенести кухню в открытую гостиную. Это решение стало отправной точкой для создания новой, более функциональной планировки.

-2

Существовавшее раньше зонирование отошло в сторону — вместо кухни здесь сделали кабинет, а санузел был связан с коридором. В спальне добавили небольшую гардеробную, что было не только красиво, но и практично. Теперь в квартире царило ощущение свободы и легкости, которое так важно для молодого человека, стремящегося к творчеству и самовыражению. Все элементы были созданы с учётом мельчайших деталей, что позволило воплотить в жизнь уникальный стиль и предпочтения молодой хозяйки.

Прихожая: визуальный трюк и первое впечатление

Прихожая стала отправной точкой в этом замечательном интерьере. Здесь подобрали насыщенные темные тона, которые создали отдельное пространство и служили контрастом к освещенной гостиной. Такой подход не только визуально отделяет прихожую от остальных комнат, но и создаёт атмосферу домашнего тепла и уюта.

-3

Тёмные оттенки выделяют прихожую, подготавливая гостей к светлой и просторной зоне отдыха, которая ждет их далее. Первое впечатление — это ключевой аспект дизайна, который определяет атмосферу всего пространства.

Гостиная: единый стиль и плавность переходов

Гостиная — это сердце квартиры, и здесь дизайнеры решили сделать единый стиль, где все помещения связаны между собой. Обои в гостиной плавно переходят в спальню, создавая эффект единого пространства. Укладка плитки, имитирующей белый кирпич, на стенах добавляет характер, делая комнату более выразительной. Первоначально планировалось оставить старый кирпич, но в итоге героиня поняла, что это решение не слишком подходит для декора.

-4

В гостиной была использована плитка, имитирующая кирпичную кладку. Это придаёт помещению современный и стильный вид. Такое решение не только визуально расширяет пространство, но и создаёт атмосферу уюта, в которой можно отдохнуть после насыщенного дня.

-5

Кухня: функциональность и уют

Кухня, которая теперь соединена с гостиной, стала уникальной зоной. Чтобы аккуратно разграничить пространство, использовали красивое напольное покрытие и барную стойку. Вместо традиционной газовой плиты здесь располагается индукционная, которая не только безопаснее, но и более эффективна.

-6

Барная стойка, выполненная в одном стиле с подоконниками, создала ощущение целостности и гармонии. П-образная форма кухни идеально вписалась в общую обстановку и предложила больше места для хранения и удобной работы. Теперь здесь можно не только готовить, но и принимать гостей за чашечкой кофе.

-7

Кроме того, в кухне предусмотрено много мест для хранения всего необходимого. Это способствует поддержанию порядка и организованности. Все детали были выбраны с особым вниманием, чтобы обеспечить как функциональность, так и эстетическую привлекательность кухни.

Спальня: цветовые акценты и комфорт

Спальня, расположенная в угловой комнате с двумя окнами, впечатляет своей атмосферой. Кровать поставлена изголовьем к одному из окон, что позволяет особенно наслаждаться светом в утренние часы. Обои, повторяющие тематику гостиной, создают чувство единства. Яркие акцентные элементы в виде горчичных штор и текстиля добавляют энергии и радости в это интимное пространство.

-8

В этом пространстве также предусмотрено освещение, которое способствует созданию располагающей атмосферы для чтения и релаксации. Каждая мелочь в спальне выбрана с вниманием, чтобы обеспечить комфортный отдых.

-9

Важно, чтобы эта комната стала местом, где можно не только спать, но и восстанавливать силы, и дизайнеры добились этого благодаря тщательно подобранной палитре и текстурам.

-10

Кабинет: стиль и практичность

Теперь, где когда-то располагалась кухня, удобно разместился кабинет. Он оформлен в светлых тонах, но одна из стен выделяется темным цветом с интересным изображением фламинго. Это решение не только привносит игривую ноту дизайна, но и делает кабинет более живым.

-11

Также здесь можно заметить черный декоративный элемент, который скрывает трубы и создает ощущение завершенности интерьера. Это превосходный образец того, как тщательно разработанный дизайн может быть одновременно эстетичным и практичным. В кабинете созданы все условия для работы и творчества: небольшой стол, хорошее освещение и вдохновляющие детали.

-12

Ванная комната: уединение и стиль

Ванная комната — это еще одно место, где дизайнеры проявили свои способности. Уют и тепло созданы с помощью двух видов плитки: основная фоновая и акцентная, использованная в зоне душа. Здесь установлена современная подвесная тумба с раковиной, зеркальный шкаф и унитаз, что добавляет ощущения простора и чистоты.

-13

Стиральная машина нашла свое законное место в встроенном шкафу, что полностью решает вопрос с хранением и поддерживает чистоту в ванной. Ванная комната превратилась в настоящий уголок спокойствия, где можно отдохнуть и набраться энергии после насыщенного дня.

Заключение: новое начало с душой

Эта трансформация сталинки стала настоящим вдохновением. Героиня рассказала о процессе создания своего нового дома, позволяя сопереживать каждую деталь. Она не только создала удобное и стильное пространство, но и умело скомбинировала разные стили, отражая свою индивидуальность. Теперь это жилище — не просто место для жизни, а новый этап в её жизни, полный света, тепла и творческих идей.

Не упустите возможность прикоснуться к миру креативного дизайна интерьеров и делитесь своими мыслями! Ваши комментарии и лайки помогают нам создавать еще больше вдохновляющего контента для вас.