Добавить в корзинуПозвонить
Найти в Дзене

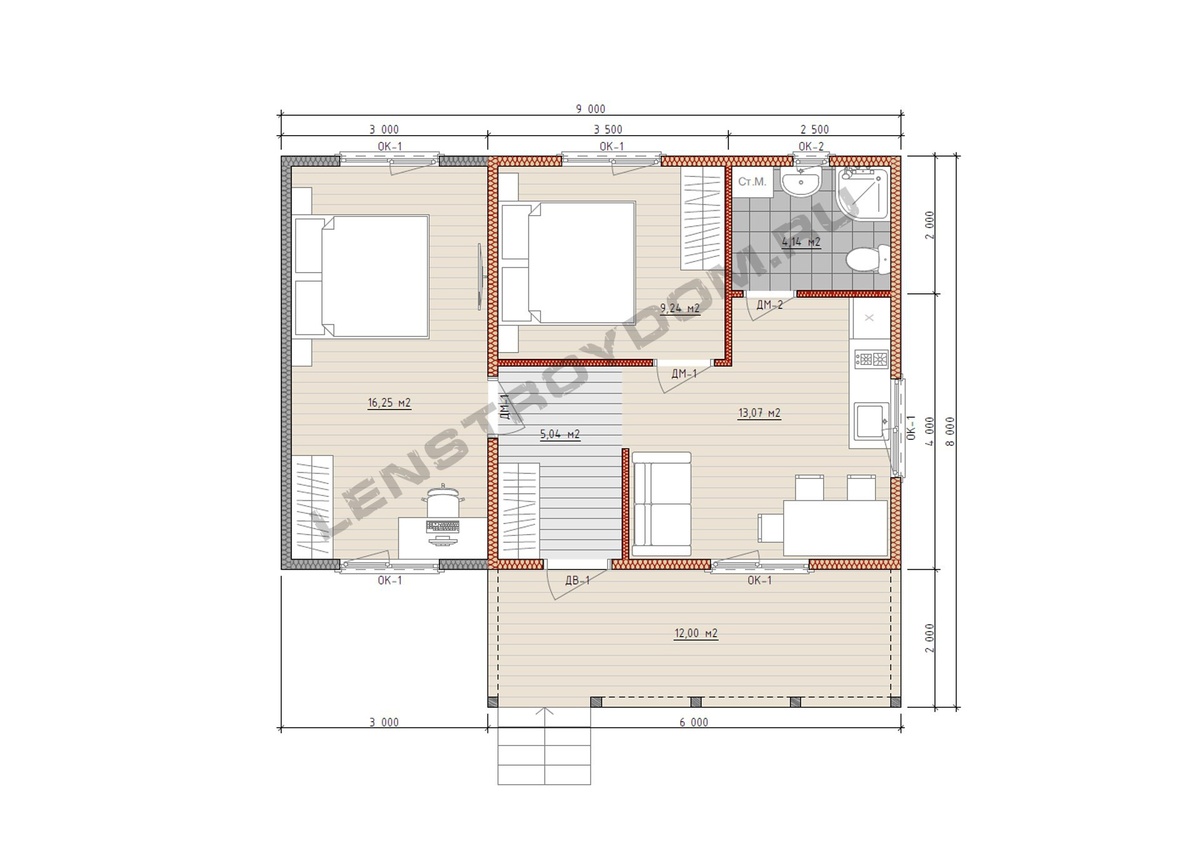
Процесс сборки стен и стропильной системы

Процесс сборки стен и стропильной системы в д. Четверяково. На этом объекте мы выполняем пристройку жилой комнаты 3х6 м к имеющемуся дому по проекту «Рожино» 6х6 м, который мы строили в 2023 году. В итоге дом увеличится на одну спальню площадью 16 кв.м. и по сути  превращается в наш популярный проект Сканди-Мини. Процесс пристройки к готовому объекту, можно назвать «растущим домом», и применять как поэтапное строительство. Можно начать с небольшого объема 6х6 м и постепенно пристраивать дополнительные объемы. На некоторых объектах мы делали по 2-3 пристройки, увеличивая размеры дома в несколько раз. #ленстройдом #каркасныедома #четверяково_пристройка https://lenstroydom.ru
https://скандимини.рф/
sk@lenstroydom.ru
+7 (812) 408-30-08
https://clck.ru/3NskED

Процесс сборки стен и стропильной системы в д. Четверяково. На этом объекте мы выполняем пристройку жилой комнаты 3х6 м к имеющемуся дому по проекту «Рожино» 6х6 м, который мы строили в 2023 году. В итоге дом увеличится на одну спальню площадью 16 кв.м. и по сути  превращается в наш популярный проект Сканди-Мини.

Процесс пристройки к готовому объекту, можно назвать «растущим домом», и применять как поэтапное строительство. Можно начать с небольшого объема 6х6 м и постепенно пристраивать дополнительные объемы. На некоторых объектах мы делали по 2-3 пристройки, увеличивая размеры дома в несколько раз.

#ленстройдом #каркасныедома #четверяково_пристройка

https://lenstroydom.ru
https://скандимини.рф/
sk@lenstroydom.ru
+7 (812) 408-30-08
https://clck.ru/3NskED

Оригинальный размер 6х6
Оригинальный размер 6х6
Планировка после увеличения до 9х6 м
Планировка после увеличения до 9х6 м
Увеличенный дом 9х6 м
Увеличенный дом 9х6 м
Ранее построенный дом
Ранее построенный дом
Пристройка к дому
Пристройка к дому
Прситройка к дому
Прситройка к дому
Белтермо на внешнем контуре
Белтермо на внешнем контуре
Основание под кровлю
Основание под кровлю
Пристраваем жилую площадь
Пристраваем жилую площадь