Добавить в корзинуПозвонить
Найти в Дзене
GREY HOUSE

Экскурсия на стройку 5 км от МКАД

Приглашаем на просмотр каркасного дома Нева с 5-ю спальнями. Просмотр пройдет 16 августа в Ново-Переделкино. Запись на просмотр обязательна. Бригада заканчивает свою работу на объекте. Скоро сдача дома клиентам! Финальные работы на объекте Хотите увидеть, как выглядит реальный дом, построенный нашей компанией? Приглашаем вас на открытый показ – это отличная возможность оценить качество работ, пообщаться с бригадой и задать все вопросы перед принятием решения о выборе строительной компании. Реальный дом На выставках часто показывают «отполированные» образцы, которые могли строить не штатные бригады. Здесь же вы увидите настоящий дом перед сдачей клиенту – так вы поймете, что получите на своем участке. Знакомство с бригадой Мы не скрываем своих строителей! Вы можете посетить несколько объектов и выбрать команду, с которой вам комфортнее работать. Оценка проекта вживую Фото и чертежи – это одно, а реальные размеры комнат и планировка – совсем другое. Убедитесь, что дом соответствует ваши
Оглавление

Приглашаем на просмотр каркасного дома Нева с 5-ю спальнями. Просмотр пройдет 16 августа в Ново-Переделкино. Запись на просмотр обязательна.

Бригада заканчивает свою работу на объекте. Скоро сдача дома клиентам!

Визуализация дома Нева
Визуализация дома Нева

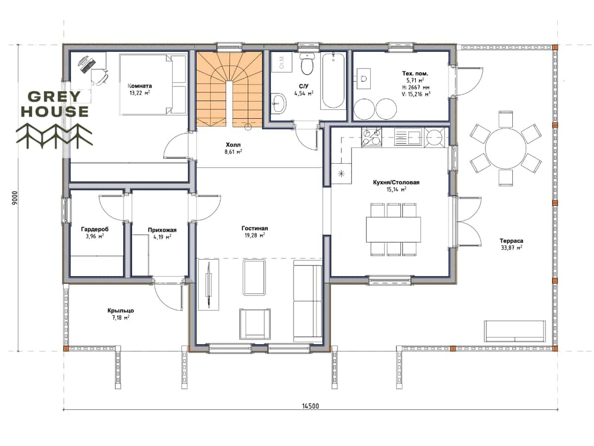
Планировка 1 этажа
Планировка 1 этажа
Планировка 2 этажа
Планировка 2 этажа

Финальные работы на объекте

Установка окон
Установка окон
Установка окон
Установка окон
Монтаж наличников
Монтаж наличников
Полусухая стяжка пола
Полусухая стяжка пола
Подшивка потолка террасы
Подшивка потолка террасы

Почему стоит приехать?

Хотите увидеть, как выглядит реальный дом, построенный нашей компанией? Приглашаем вас на открытый показ – это отличная возможность оценить качество работ, пообщаться с бригадой и задать все вопросы перед принятием решения о выборе строительной компании.

Реальный дом

На выставках часто показывают «отполированные» образцы, которые могли строить не штатные бригады. Здесь же вы увидите настоящий дом перед сдачей клиенту – так вы поймете, что получите на своем участке.

Знакомство с бригадой

Мы не скрываем своих строителей! Вы можете посетить несколько объектов и выбрать команду, с которой вам комфортнее работать.

Оценка проекта вживую

Фото и чертежи – это одно, а реальные размеры комнат и планировка – совсем другое. Убедитесь, что дом соответствует вашим ожиданиям, и обсудите возможные изменения.

Контроль качества материалов и работ

Осмотрите каждую деталь, проверьте фасад, качество окон, аккуратность монтажа.

Консультация с менеджером

Обсудите нюансы договора, сроки строительства, варианты оплаты и оформление ипотеки – мы поможем подобрать оптимальное решение.

Приезжайте и убедитесь в качестве сами!

Комплектация дома:

  • Фундамент: свайно-ростверковый (бетонные сваи 150×150×3000 мм)
  • Каркас: строганая доска камерной сушки 35х95-145-195 мм
  • Утепление: Технониколь Роклайт (пол/кровля/стены – 200 мм), ветро- и пароизоляция (Jutavek, Ютафол)
  • Кровля: металлочерепица 0,45 мм с системой снегозадержания Grandline
  • Фасад: фиброцементный сайдинг Decover
  • Отделка внутри: стены - Гипсокартон Кнауф 12,5 мм в 2 слоя ГКЛ, потолок - без отделки, пол – OSB 18 мм по обрешетке 25х100 мм
  • Окна: ПВХ Rehau (70 мм, двойной стеклопакет)
  • Коммуникации: разводка электрики (116 точек), водоснабжение, канализация
  • Отопление: водяной теплый пол
  • Терраса: настил из ДПК
  • Отделка цоколя: панель фасадная Альта-профиль

Строительство дома с привлечением льготной ипотеки! Хотите так же?

Телефон: 8-495-504-71-33
What’s App
mail@grey-house.ru
Сайт:
grey-house.ru

Базовая цена дома - https://grey-house.ru