Добавить в корзинуПозвонить
Найти в Дзене
Level Group

Инвестору: на что смотреть при покупке квартиры в Москве

Инвесторы часто рассматривают покупку квартиры комфорт-класса, чтобы сохранить и приумножить капитал. При этом бывает непросто выбрать подходящий проект: нужно учитывать, что будет важно потенциальным покупателям или будущим арендаторам. В статье расскажем, на что обратить внимание при выборе новостройки для инвестиций, на примере проекта Level Южнопортовая. Выгоднее покупать квартиру в самом начале строительства. Так вы сможете сэкономить: к моменту сдачи объекта цена значительно вырастет. После получения ключей можно перепродать квартиру по более высокой стоимости или заселить арендаторов и получать ежемесячный доход. Level Южнопортовая: до получения ключей вы сможете понять, как выгоднее поступить с активом. Например, перепродать купленный объект, если он значительно вырастет в цене, или разработать дизайн-проект, чтобы сделать ремонт и сдавать в аренду. Также до 30 сентября 2025 года действует скидка 25% на квартиры и апартаменты при 100%-й оплате, рассрочке и несубсидированной ип
Оглавление

Инвесторы часто рассматривают покупку квартиры комфорт-класса, чтобы сохранить и приумножить капитал. При этом бывает непросто выбрать подходящий проект: нужно учитывать, что будет важно потенциальным покупателям или будущим арендаторам.

В статье расскажем, на что обратить внимание при выборе новостройки для инвестиций, на примере проекта Level Южнопортовая.

Покупка на начальном этапе

Выгоднее покупать квартиру в самом начале строительства. Так вы сможете сэкономить: к моменту сдачи объекта цена значительно вырастет. После получения ключей можно перепродать квартиру по более высокой стоимости или заселить арендаторов и получать ежемесячный доход.

Level Южнопортовая: до получения ключей вы сможете понять, как выгоднее поступить с активом. Например, перепродать купленный объект, если он значительно вырастет в цене, или разработать дизайн-проект, чтобы сделать ремонт и сдавать в аренду. Также до 30 сентября 2025 года действует скидка 25% на квартиры и апартаменты при 100%-й оплате, рассрочке и несубсидированной ипотеке. Благодаря этому вы сможете дополнительно сэкономить и купить недвижимость на более выгодных условиях.

Level Южнопортовая состоит из 14 корпусов комфорт-класса от 13 до 69 этажей
Level Южнопортовая состоит из 14 корпусов комфорт-класса от 13 до 69 этажей

Разнообразие форматов

Важно, чтобы в новостройке были разные планировки: студии, евроформаты, квартиры с мастер-спальнями. Инвестор сможет выбрать и купить квартиру с учетом того, кому хочет в будущем сдавать или продавать объект: одиноким людям, парам или большим семьям с детьми. Не менее важны квартиры с нестандартными решениями: они выделяются на рынке недвижимости и быстрее сдаются.

Level Южнопортовая: мы предусмотрели более 60 планировочных решений, чтобы вы могли выбрать подходящий вариант для вложений. Например, спроектировали компактные студии — 18,9 м² и более просторные — 31,7 м². В однокомнатных квартирах от 33,6 м² есть альков для кровати, чтобы сэкономить место и сделать зону отдыха уютной.

В стандартных двухкомнатных вариантах от 37 до 65 м² можно выделить отдельные зоны для гардеробной. А просторные трёхкомнатные и четырёхкомнатные квартиры порадуют мастер-спальнями, большими кухнями-гостиными и двойными санузлами. Ещё в проекте есть апартаменты, их тоже можно выгодно сдать в аренду. В таких помещениях легко сделать перепланировку, поэтому они понравятся жителям, которые любят нестандартные решения.

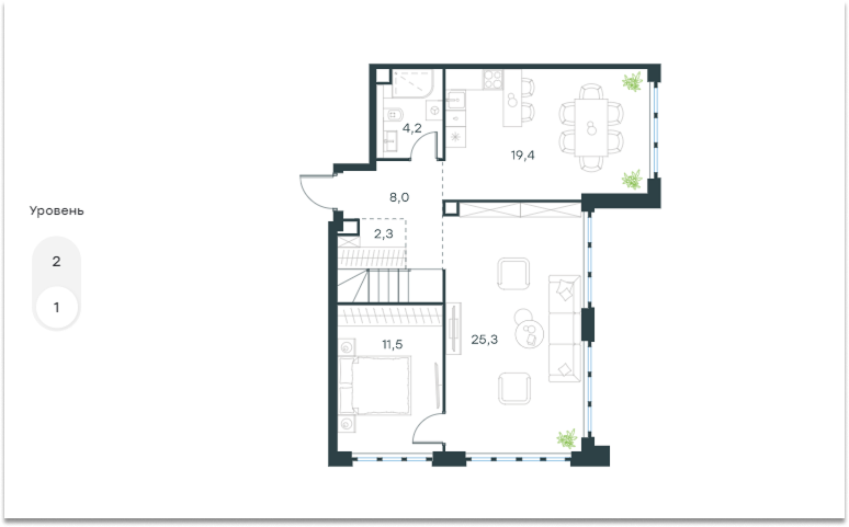
Листайте галерею, чтобы посмотреть разные планировки квартир в Level Южнопортовая👇

Район включён в программу развития города

Когда рядом с проектом появляются новые деловые центры, парки и транспортная инфраструктура, это усиливает интерес к локации. Люди хотят жить ближе к развитым районам города, а значит, спрос на квартиры увеличивается. Также со временем повышается и стоимость квартир, поэтому их получится выгодно продать.

Level Южнопортовая: мы строим корпуса в районе Печатники. Здесь планируют создать крупный торгово-деловой центр, аналогичный Москва-Сити, — Южный порт. Также проектируются новые дороги, ещё одна станция метро в 15 минутах пешком от жилого комплекса и 25 га парков, аллей и скверов. Район будет притягивать новую рабочую силу, студентов, семьи с детьми.

В 3 минутах на автомобиле от Level Южнопортовая находится ТТК, а по кольцу легко доехать до любой точки Москвы, в том числе до главных достопримечательностей столицы: ВДНХ, Олимпийского комплекса «Лужники» и Воробьевых гор. Дорога на метро до центра, например, до Красной площади или Третьяковской галереи займёт 10 минут.

Ещё рядом находится 6 парковых зон, где приятно прогуляться среди зелени, насладиться видами города со смотровых площадок. Так, до Северного и Южного ландшафтных парков — 7 минут на машине, а до музея-заповедника «Коломенское» — 14 минут.

Листайте галерею, чтобы узнать больше о ближайшем окружении Level Южнопортовая👇

Поблизости есть всё, что нужно для комфортной жизни

Недвижимость в жилом комплексе с развитой инфраструктурой легче сдаётся и продаётся. Инвесторы обращают внимание на наличие школы, детского сада, паркинга, охраны и благоустройства — всего, что повышает ценность квартиры на рынке.

Level Южнопортовая подойдёт для арендаторов и покупателей с разными запросами. Например, подземный и надземный паркинги на 907 и 517 машино-мест пригодятся для автовладельцев. На территории проекта мы построим собственную школу и детский сад, а также благоустроенные детские площадки во дворе — такой вариант понравится семьям с детьми. Студенты оценят близость университетов — в 5–15 минутах на машине находятся факультеты и отделения 20 вузов. Среди них несколько ведущих: Московский Политех, ВШЭ, РАНХиГС, Первый МГМУ им. Сеченова.

Листайте галерею, чтобы посмотреть на внутреннюю инфраструктуру Level Южнопортовая👇

Сделку в ипотеку можно оформить дистанционно

Инвестору важно, чтобы процесс покупки был прозрачным, а оформление — без лишней бюрократии. Возможность пройти все этапы онлайн экономит время и силы, особенно если вы находитесь в другом городе или планируете покупку заранее.

Level Южнопортовая: мы предлагаем видеовстречу с показом проекта, онлайн-консультацию и оформление сделки онлайн. Это удобно, если вы планируете покупать несколько объектов или живёте далеко от Москвы. Не придётся ехать в офис и тратить время на дорогу: всё можно организовать из дома с помощью смартфона.

🔔 До конца месяца в Level Южнопортовая действует скидка до 35% на квартиры и апартаменты.

Листайте дальше и переходите на сайт Level Южнопортовая, чтобы записаться на встречу с персональным менеджером, который подберёт вам квартиру для инвестиций.