Добавить в корзину
Позвонить
Найти в Дзене
Войти
VV.Финанс- Новостройки Новосибирска
22 подписчика
Подписаться
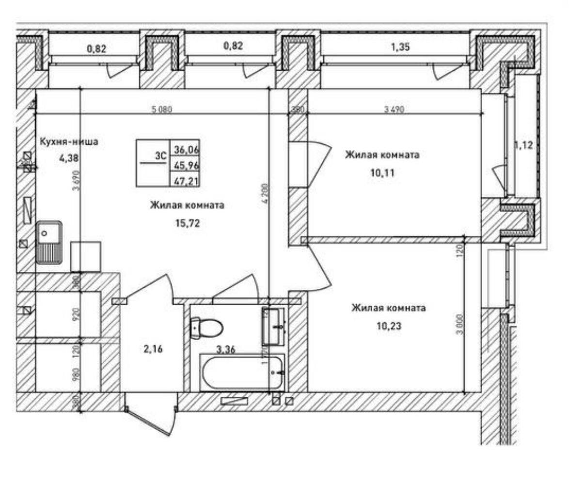
Трешка-студия
12 августа 2025
12 авг 2025
~1 мин
Трешка-студия • 10600 000₽
Трешка-студия • 10600 000₽
...
Читать далее
Трешка-студия
• 10600 000₽
3929810250.898.1775902793731.29825