Найти в Дзене

Большие % ставки по ипотеке и к чему это приводит

Наше бюро постоянно оказывает услуги на дизайн-проекты. Так вот... Мы начали наблюдать интересную тенденцию. Своё жильё хочется, а цены на квадратные метры только растут... Как с этим быть - то?

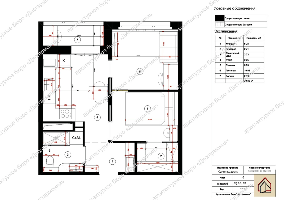
Наши заказчики - молодая пара. Смогли позволить себе свои 40 квадратных метров. Перед нами стояла сложная задача уместить всё, что они хотели, а это:

✅ Хранение: чем больше, тем лучше

✅ Два рабочих места

✅ Зонировать перегородкой кровать

Мы прекрасно понимаем, что каждому из супругов всё равно нужно своё пространство. Иногда хочется изолироваться и в тишине почитать книгу.

Наше бюро делает невозможное. Из однушки в двушку - вполне реально.

Обмерный план
Обмерный план
-2

Что получилось в итоге:

✅Просторная прихожая: в ней уместилась обувница, шкаф для верхней одежды, место хватило даже на пуфик.

✅Просторная ванная с колонной из стиральной и сушильной машин.

✅ Внушительная кухня с раскладывающимся столом.

✅Балкон полностью отдали для рабочего места ( пожелание заказчиков)

✅ Гостиная комната с ещё одним рабочим местом и диваном, который создаёт дополнительное спальное место

✅ И САМОЕ КРУТОЕ : отдельная спальня с гардеробом... ещё и туалетный столик влез.

Если обратите внимание, за кроватью выступ в 200 мм, это аналог прикроватных тумбочек, место для них нет, зато для такой полочки - самое то, можно заряжать гаджеты или организовать хранение.

С любовью к мелочам, с любовью к Вам ❤

Для заказа проекта:

📞+79110495694

✉ARHburodisharmony@yandex.ru

Или просто напишите в сообщения группы

Мы ждём встречи именно с Вами ❤

Архитектурное бюро "Дисгармония"