Добавить в корзинуПозвонить
Найти в Дзене

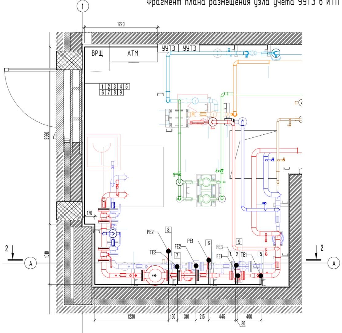
💚Завершаем неделю проектом УУТ для МОЭК: разбираемся в деталях

💚Завершаем неделю проектом УУТ для МОЭК: разбираемся в деталях Что такое МОЭК? Московская объединённая энергетическая компания — ключевой игрок в теплоснабжении столицы: ➡️Обеспечивает отопление и ГВС Москвы ➡️Объединяет 140+ источников генерации ➡️Общая мощность — 5000 Гкал/ч ➡️Устанавливает строгие стандарты для проектировщиков Что такое УУТ? Узел учёта тепловой энергии — важное звено в цепочке: котельная ➡️теплосети ➡️тепловой пункт ➡️системы здания Состав коммерческого УУТ: 🟢Теплосчётчик (основа узла) 🟢Вычислитель (фиксирует показания) 🟢Датчики температуры и давления 🟢Система автоматизации Почему это важно? УУТ позволяет: ➡️Точно учитывать потреблённое тепло ➡️Корректно распределять платежи ➡️Оптимизировать энергопотребление Наш опыт: Разрабатывали проекты УУТ, соответствующие строгим требованиям МОЭК. Знаем все нюансы подбора оборудования и согласования документации. Хотите узнать больше о наших проектах для энергокомпаний? Задавайте вопросы в комментариях🟢 #наши@ingp

💚Завершаем неделю проектом УУТ для МОЭК: разбираемся в деталях

Что такое МОЭК?

Московская объединённая энергетическая компания — ключевой игрок в теплоснабжении столицы:

➡️Обеспечивает отопление и ГВС Москвы

➡️Объединяет 140+ источников генерации

➡️Общая мощность — 5000 Гкал/ч

➡️Устанавливает строгие стандарты для проектировщиков

Что такое УУТ?

Узел учёта тепловой энергии — важное звено в цепочке:

котельная ➡️теплосети ➡️тепловой пункт ➡️системы здания

Состав коммерческого УУТ:

🟢Теплосчётчик (основа узла)

🟢Вычислитель (фиксирует показания)

🟢Датчики температуры и давления

🟢Система автоматизации

Почему это важно?

УУТ позволяет:

➡️Точно учитывать потреблённое тепло

➡️Корректно распределять платежи

➡️Оптимизировать энергопотребление

Наш опыт:

Разрабатывали проекты УУТ, соответствующие строгим требованиям МОЭК. Знаем все нюансы подбора оборудования и согласования документации.

Хотите узнать больше о наших проектах для энергокомпаний? Задавайте вопросы в комментариях🟢

#наши@ingprojectt

#нашипроекты@ingprojectt

-2