Добавить в корзинуПозвонить
Найти в Дзене

Кейс "Воздух". Красота и эргономичность за разумный бюджет.

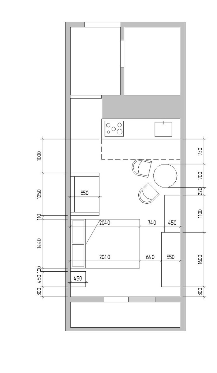
Ко мне в работу поступила студия 25,5 метров с ремонтом от застройщика. Ремонт довольно хорошего качества, санузел мы практически не изменили. Запрос: подготовить квартиру в долгосрочную аренду, комплектация квартиры под ключ. Бюджет небольшой - 420 т. р. Скажу сразу, мы справились и уложились в оговоренную сумму - это очень классный результат! Работы выполненные на объекте: демонтаж и замена радиаторов от застройщика, окрашивание всех стен, укладка плитки на кухонный фартук, сборка мебели, хоумстейджинг и фотосессия. Ощутимую часть бюджета, мы потратили на замену батарей, но разве мы могли позволить себе такую "роскошь", как потерю почти 35 см с каждой стороны стены - конечно нет. Я рассчитала необходимую мощность и размер пристенного радиатора, и специалисты произвели работу по замене батарей, а это: демонтаж, штробление, стяжка, укладка полового покрытия и пр. работы. Эти действия, позволили грамотно распорядиться пространством, у одной из стен, мы смогли поставить большой пл

Ко мне в работу поступила студия 25,5 метров с ремонтом от застройщика. Ремонт довольно хорошего качества, санузел мы практически не изменили. Запрос: подготовить квартиру в долгосрочную аренду, комплектация квартиры под ключ. Бюджет небольшой - 420 т. р. Скажу сразу, мы справились и уложились в оговоренную сумму - это очень классный результат!

Работы выполненные на объекте: демонтаж и замена радиаторов от застройщика, окрашивание всех стен, укладка плитки на кухонный фартук, сборка мебели, хоумстейджинг и фотосессия.

Ощутимую часть бюджета, мы потратили на замену батарей, но разве мы могли позволить себе такую "роскошь", как потерю почти 35 см с каждой стороны стены - конечно нет. Я рассчитала необходимую мощность и размер пристенного радиатора, и специалисты произвели работу по замене батарей, а это: демонтаж, штробление, стяжка, укладка полового покрытия и пр. работы. Эти действия, позволили грамотно распорядиться пространством, у одной из стен, мы смогли поставить большой платяной шкаф, что решило проблему хранения.

  В дальнейшем, заказчик всегда сможет поставить небольшой диванчик, для него есть место.
В дальнейшем, заказчик всегда сможет поставить небольшой диванчик, для него есть место.

Итог нашей работы - квартиру сдали с первых показов хорошему арендатору, по самой достойной стоимости на тот момент. Думаю, что умение грамотно и бережно работать с любым бюджетом, это большой показатель мастерства хоумстейджера и конечно наша основная задача - сделать все возможное, чтобы жилье выгодно и хорошо сдавалось приличным людям.

Если вы счастливый обладатель ключей от своей квартиры в СПБ или ближайших точках области, и вам надо подготовить квартиру к сдаче/продаже или отремонтировать, обращайтесь, я буду рада вам помочь! Больше обо мне и моей работе , здесь .