Добавить в корзинуПозвонить
Найти в Дзене
Правда ПФО

Щебеночную дорогу в чувашской деревне построят за 88 млн рублей

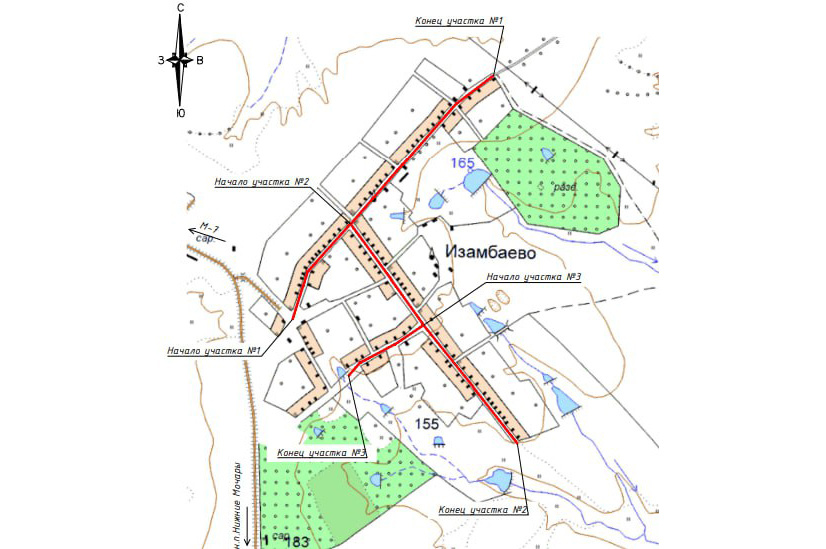
Заключен контракт на строительство новой дороги в деревне Изамбаево Ядринского муниципального округа Чувашии. Подряд достался компании, снизившей стоимость услуг с 91,1 млн рублей до 87,9 млн рублей. Работы выполнит ООО «Стройка-21» из Чебоксар, сообщается на сайте госзакупок. Протяженность объекта составит более 2 км. Однополосная дорога с щебеночным покрытием будет проходить по трем улицам – Советской, Ленина и Комсомольской. Продолжительность строительства составляет 5 месяцев, но работы растянут на три года. В 2025 году стройка запланирована на сентябрь, в 2026 году – в период с 1 по 20 июня, в 2027 году – с 1 июня по 30 сентября. Напомним, что проект дороги прошел госэкспертизу прошлым летом. Фото t.me/centrexpert21

Заключен контракт на строительство новой дороги в деревне Изамбаево Ядринского муниципального округа Чувашии. Подряд достался компании, снизившей стоимость услуг с 91,1 млн рублей до 87,9 млн рублей.

Работы выполнит ООО «Стройка-21» из Чебоксар, сообщается на сайте госзакупок.

Протяженность объекта составит более 2 км. Однополосная дорога с щебеночным покрытием будет проходить по трем улицам – Советской, Ленина и Комсомольской. Продолжительность строительства составляет 5 месяцев, но работы растянут на три года. В 2025 году стройка запланирована на сентябрь, в 2026 году – в период с 1 по 20 июня, в 2027 году – с 1 июня по 30 сентября.

Напомним, что проект дороги прошел госэкспертизу прошлым летом.

Фото t.me/centrexpert21