Найти в Дзене
DIVAN.RU

Восторг! Квартира 57 кв.м в «сталинке»: советский шик и яркая палитра

Эта двушка в «сталинке» была куплена под продажу. Но вариант «сделать подешевле, продать подороже» хозяйку не устраивал, поэтому к ремонту подошли с душой. И цветом. Как для себя. После изучения рынка стало понятно, что он перенасыщен бюджетными вариантами. Бюджетными, но совершенно бездушными. Тогда мне в голову пришла идея предложить покупателям квартиру, которая наполнена цветом, чувствами, которая вызывает интерес. Квартиру, в которой они смогут жить красиво — принимать гостей, читать книги, смотреть старые фильмы на проекторе и расслабляться в шикарной ванне по вечерам. Ремонт здесь делали как «для себя»: выбирали хорошую сантехнику, дорогие и качественные отделочные материалы, премиальную технику для кухни и постирочной, качественную мебель. В общем, не экономили. Владелица квартиры поставила перед дизайнером несколько задач, решить которые должна была перепланировка. В первую очередь предстояло избавиться от длинного и бесполезного коридора, который не давал возможности поставит
Оглавление

Эта двушка в «сталинке» была куплена под продажу. Но вариант «сделать подешевле, продать подороже» хозяйку не устраивал, поэтому к ремонту подошли с душой. И цветом. Как для себя.

  • Объект: двушка 57 кв.м в «сталинке», потолки 2,73 м
  • Дизайнер: Анна Березняк, хозяйка квартиры: Виктория Северина, фотограф Женя Муравьева
После изучения рынка стало понятно, что он перенасыщен бюджетными вариантами. Бюджетными, но совершенно бездушными. Тогда мне в голову пришла идея предложить покупателям квартиру, которая наполнена цветом, чувствами, которая вызывает интерес. Квартиру, в которой они смогут жить красиво — принимать гостей, читать книги, смотреть старые фильмы на проекторе и расслабляться в шикарной ванне по вечерам. Ремонт здесь делали как «для себя»: выбирали хорошую сантехнику, дорогие и качественные отделочные материалы, премиальную технику для кухни и постирочной, качественную мебель. В общем, не экономили.

Планировочное решение

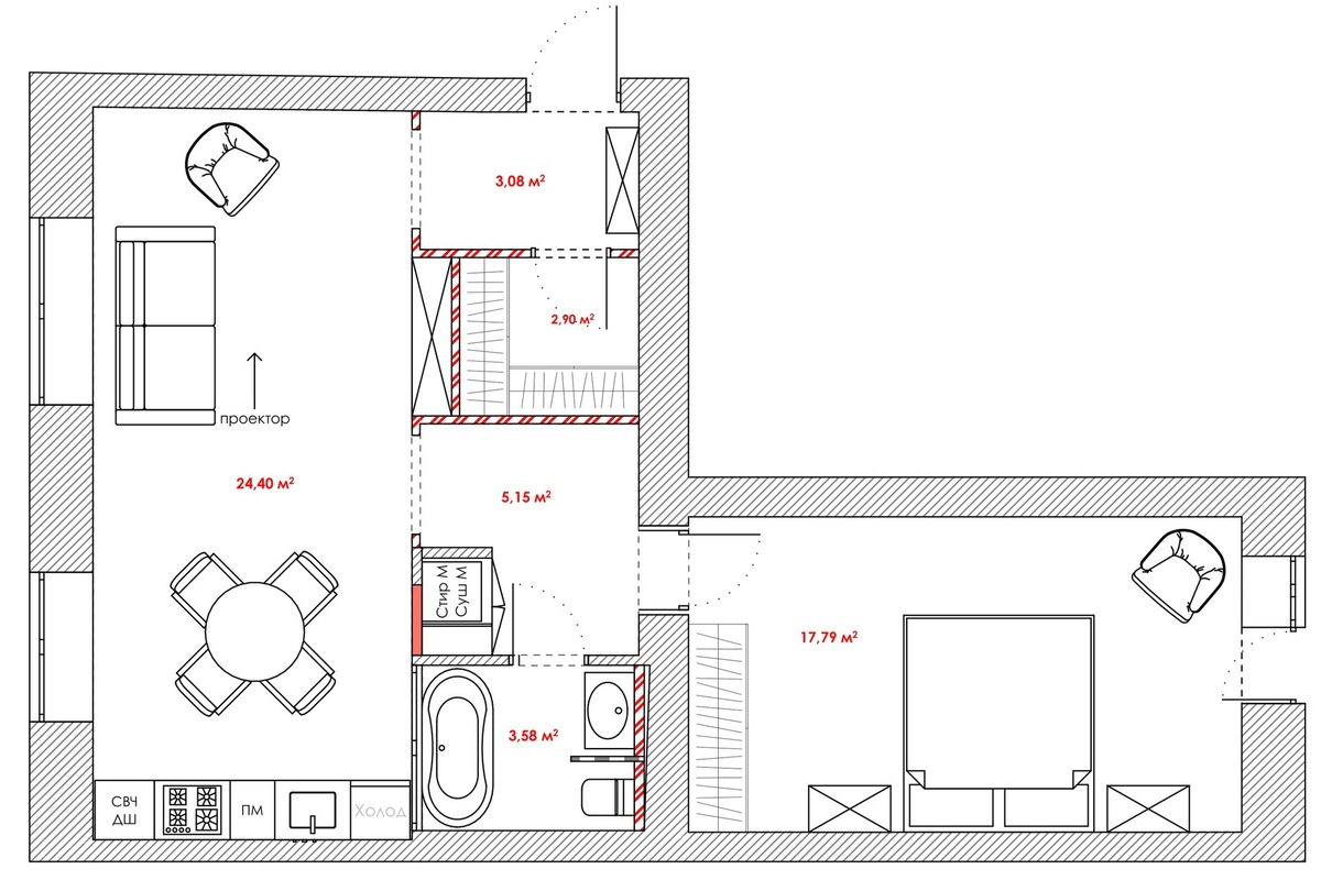
Владелица квартиры поставила перед дизайнером несколько задач, решить которые должна была перепланировка. В первую очередь предстояло избавиться от длинного и бесполезного коридора, который не давал возможности поставить при входе шкаф для верхней одежды. Чтобы решить проблему, планировку сделали полукруговой — проход к комнатам теперь осуществляется не напрямую, а через главную комнату. Получились почти симметричные прихожая и коридор квадратного типа, а между ними «образовался» стеллаж с библиотекой.

В микро-коридоре между кухней-гостиной и спальней поставили хозяйственный шкаф — в нем разместились стиральная и сушильная машины, а также вертикальное отделение для гладильной доски, пылесосов и швабр.

Спальня осталась в прежних размерах, потому что находилась за несущей стеной. Кухню-гостиную объединили, отключив газ и получив разрешение на перепланировку. Все изменения отображены на планировках ДО и ПОСЛЕ, листайте галерею👇

О ремонте

Старую отделку полностью демонтировали. На пол пришлось заливать новую стяжку — в разных комнатах лежали разные напольные покрытия, и необходимо было вывести их в один уровень. Для отделки основных помещений был выбран паркет — во-первых, он как никакой другой материал красиво стареет. Его можно реставрировать, а ходить по паркету босиком одно удовольствие. Плюс, это более натуральный материал, чем ламинат или кварц.

Новые перегородки выполнены из ГКЛ. Его выбрали за скорость монтажа, опять экологичность и дальнейший простой монтаж встроенной мебели.

Стены в прихожей и коридоре покрасили — для удобства уборки и с учетом того, что это проходные зоны. На стенах в кухне-гостиной и спальне обои. По мнению дизайнера, это лучший материал для жилых комнат — создают уют и «обволакивающий» эффект. В санузле скомбинировали обои и покраску, в мокрой зоне использовали плитку.

О стиле

«Такой стиль интерьера я называю “советский шик”, — рассказывает дизайнер. — Это эклектика в чистом виде, где все перемешалось. Винтажная мебель, полосатые современные обои, составной плинтус с 3D-панелями, фартук из латуни. Я люблю эклектику, люблю, когда много деталей. Люблю, когда интерьер вызывает эмоции, и кстати, неважно какие. Если кто-то негативно высказался, а кто-то в восторге — это победа, значит, интерьер получился. Для меня это как искусство — оно должно вызвать эмоцию, желание».

Кухня

Гарнитур на кухне линейный, современный и лаконичный. По обеим сторонам симметрично стоят пеналы, которые выполняют не только функциональную, но и эстетическую роль. В одном из них находится холодильник, а в другом — духовой шкаф и микроволновая печь. Центральное место в комнате занимает винтажный обеденный стол. Над ним висит нарядная люстра, которая добавляет изысканности и уюта.

Автор проекта отмечает, что на контрасте с голубыми оттенками, которые преобладают в кухне-гостиной, она решила использовать бордовый цвет. Он создает вызывающее сочетание, которое подчеркивает важность главной комнаты в квартире. «Это пространство должно заявить о себе», – говорит она.

Гостиная

В гостиной цветовая палитра немного смягчается, но все равно сохраняет выразительность. Оконные откосы, а также стена под подоконником и радиатор окрашены в насыщенный терракотовый цвет. На его фоне особенно эффектно смотрятся бархатные зеленые шторы, которые добавляют текстуры и глубины интерьеру. Эти шторы «перекликаются» с оттенком горчицы, использованным в прихожей, создавая визуальный мост между двумя помещениями.

Диван Ларонсо заказали у бренда divan.ru, с которым я сотрудничаю довольно давно. Он широкий, удобный, с комфортной посадкой. Кстати, посмотрите на напольный плинтус — его мы выкрасили в тон велюровой обивке. А вот журнальный столик Репаркс из переработанного пластика подбирали в цвет оконного блока и радиатора.
-4

➡️Товары бренда divan.ru

Спальня

В оформлении спальни использовали сочетание голубого и теплого зеленого оттенков, — в паре они создают спокойную, гармоничную атмосферу. Интересный момент — это единственная комната в доме, где присутствует лепнина. Элементы современные, добавили их, чтобы сделать интерьер более классическим.Для контраста к нежно-зеленому цвету был добавлен черный, который также повторяется в дизайне тумб и консоли.

Открытый балкон оставили незастекленным, чтобы не нарушать аутентичную атмосферу дома, только обновили ограждение.

Шкаф ставить не стали: в квартире вместительная гардеробная. Кровать заказали на индивидуальном производстве — найти готовое решение такого формата оказалось непросто. А вот текстиль и малые формы заказали на divan.ru.

На полу лежит ковер Тут Рядом Мягко из лимитированной коллекции divan.ru и «Антон тут рядом», благотворительного фонда системной поддержки людей с аутизмом. На кровати — яркие подушки-валики Ситено, а рядом — консоль Харис, на которой хранится декор.

➡️Товары бренда divan.ru

Прихожая

Чтобы сделать акцент на симметрии пространства, которой удалось добиться в ходе перепланировки, прихожую и коридор оформили одним и тем же горчичным цветом. Теперь из прихожей есть доступ в гардеробную. А в коридоре между гостиной и спальней появилась постирочная со стиральной и сушильной машинами.

Санузел

Санузел получился не менее интересным, чем жилые комнаты. На стенах здесь обои с красным принтом, который «поддерживают» театральные шторы и бахрома на зеркале. Плитка здесь только на полу и на стенах в мокрых зонах.

▶️Обновите интерьер выгодно. Применяйте скидку на товары из подборки: c тегом -5000 ₽ по промокоду SUPER5 и с тегом -10 000 ₽ по промокоду SUPER10

-9

============================

Оцените интерьер в комментариях, а если материал понравился — не забудьте поставить лайк👍

🖤divan.ru — не только блог про интерьеры, но и производитель доступной дизайнерской мебели. Ищите новые идеи и переходите на сайт, чтобы воплотить их в жизнь.