Найти в Дзене

Планировка санузла: исправляем огрехи, улучшаем эстетику

Сегодня застройщики большое внимание уделяют планировкам. Мы слышим про «редкие форматы квартир», которые предполагают окна в гардеробных или санузлах, террасы, двухуровневые апартаменты и прочее. «Пик» предлагает так называемые «умные планировки», которые предполагают, например, санузлы с двумя входами для однокомнатных квартир, чтобы вы могли зайти в ванную как из спальни, так и из прихожей, разнесенные в разные концы квартиры спальни для родителей и детей, квартиры с мастер-спальнями, это когда спальня имеет выход в отдельный санузел, постирочные и т.д. Это и понятно - хорошая планировка помогает продавать. Но почему-то частенько при покупке квартиры клиенты все равно хотят что-то поменять. Иногда это продиктовано индивидуальными особенностями конкретной семьи, но не только. Как ни странно, часто мы встречаем планировки, которые вообще не должны были бы появляться с точки зрения эргономики или эстетики. И тут дизайнеру не остается ничего, как затевать перепланировку. Рассмотрим сег
Оглавление

Сегодня застройщики большое внимание уделяют планировкам. Мы слышим про «редкие форматы квартир», которые предполагают окна в гардеробных или санузлах, террасы, двухуровневые апартаменты и прочее. «Пик» предлагает так называемые «умные планировки», которые предполагают, например, санузлы с двумя входами для однокомнатных квартир, чтобы вы могли зайти в ванную как из спальни, так и из прихожей, разнесенные в разные концы квартиры спальни для родителей и детей, квартиры с мастер-спальнями, это когда спальня имеет выход в отдельный санузел, постирочные и т.д. Это и понятно - хорошая планировка помогает продавать. Но почему-то частенько при покупке квартиры клиенты все равно хотят что-то поменять. Иногда это продиктовано индивидуальными особенностями конкретной семьи, но не только. Как ни странно, часто мы встречаем планировки, которые вообще не должны были бы появляться с точки зрения эргономики или эстетики. И тут дизайнеру не остается ничего, как затевать перепланировку. Рассмотрим сегодня именно такой вариант планировки санузла в студии известного застройщика.

Исходная планировка

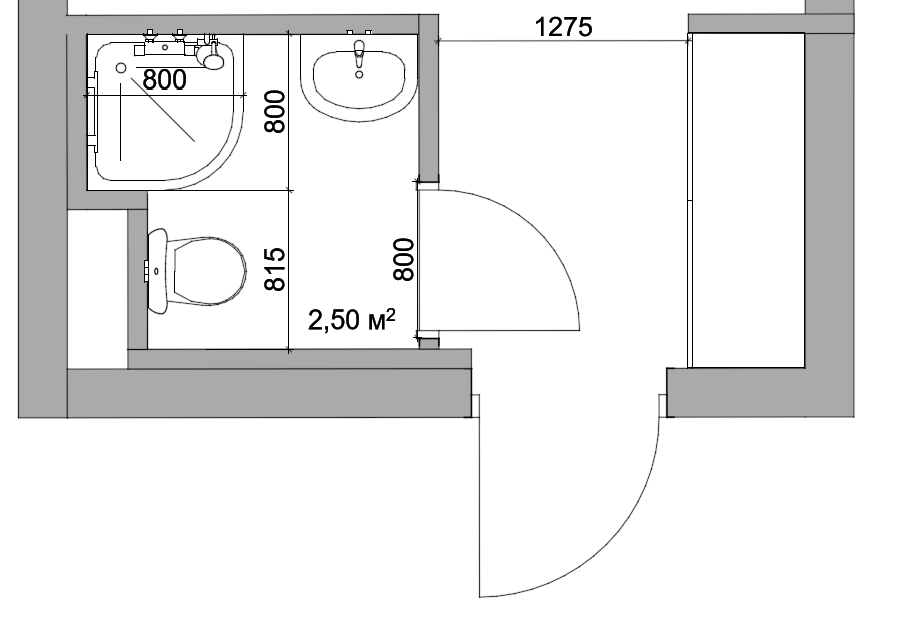
На плане вы видите фрагмент плана квартиры, который нас интересует - санузел и прихожая, внизу - входная дверь. Сразу оговорюсь, что санузел маленький, всего 2,5 кв. м. и сюда нужно уместить, как минимум душ, унитаз и умывальник. С этой задачей застройщик справился не до конца:

  • поместился душ 80х80 см (минимальный, но достаточный, чтобы комфортно мыться);
  • влезла небольшая раковина 45 см шириной;
  • унитаз здесь всего 50 см длиной, что нормально для унитаза с инсталляцией, но ее здесь нет, поэтому нужно либо ее добавить, либо поменять унитаз на более длинный с бачком. По стене выделено 80 см по ширине, что тоже минимально, но достаточно.
исходная планировка застройщика, воспроизведена автором в Archicad
исходная планировка застройщика, воспроизведена автором в Archicad

Огрехи исходной планировки

  • Самое неприемлемое с точки зрения эстетики здесь то, что открыв дверь санузла мы видим... унитаз. Это не самая удачная расстановка. Дизайнер всегда спланируем санузел так, чтобы вы заходили на что-то красивое – лучше на раковину и зеркалом, отдельностоящую ванну. Мы не удивимся, увидев встроенную ванну или душ, но не унитаз.
  • Поскольку здесь, скорее всего, не встанет пенал для хранения, хочется хотя бы под раковиной сделать ящики или полки, а раковина застройщиком предусмотрена минимальная, и хранить под ней получится только кусок мыла.
  • Про унитаз уже написала выше - он слишком маленький.
  • Дверь в ванную комнату имеет ширину полотна 70 см, что для такого маленького санузла чрезмерно, кроме того, такая дверь при открывании занимает больше места в прихожей.

Как улучшить исходную планировку?

Первое, что приходит в голову – переместить дверь санузла напротив душа, а раковину перевесить на противоположную от ее исходного положения стену.

Вот так:

безуспешно пытаемся исправить планировку простыми средствами, изображение автора
безуспешно пытаемся исправить планировку простыми средствами, изображение автора

Сразу становится понятно, что расстояние от унитаза до раковины слишком маленькое, да и раковину, как ни хотелось бы, тут не увеличить. Даже если раковину развернуть «лицом» к унитазу ситуацию это не улучшит.

Делаем конструктивные улучшения

  • Уменьшаем проем двери до 70 см (ширина полотна 60 см).
  • Переносим дверь напротив душа (имейте ввиду, что это перепланировка, которую нужно оформлять)
  • Перемещаем перегородку, разделяющую ванную и прихожую в сторону прихожей. Это изменение тоже нужно оформлять в соответствующих органах, но оно допустимо - мы можем увеличивать санузлы за счет нежилых вспомогательных пространств, таких, как прихожая, коридор, кладовая. При этом ширина прихожей уменьшится до 1,1 м, что, конечно, немного, но для такой маленькой квартиры приемлемо. При этом отвоюем для ванной 16,5 см по всей ширине

Расстановка сантехники, вариант 1

  • Минимизируем место для унитаза: либо размещаем инсталляцию минимальной глубины (если обычно она занимает вместе с листами ГКЛ 20 см, то для неглубокой будет достаточно 12 см.); либо, если концепция позволяет, устанавливаем унитаз с приподнятым бачком (нотки ретро).
  • Напротив унитаза размещаем раковину. Чтобы избежать тесноты, столешница будет 40 см глубиной. Для такой столешницы можно найти и прямоугольные, и овальные узкие раковины, можно установить круглую до 40 см в диаметре. Но важно, что у нас появится столешница, куда можно что-то ставить, а также место под раковиной для хранения.
  • С эстетической точки зрения нам придется выровнять дверь по углу душевой кабины (зеленый пунктир), а значит в углу у двери место останется только под полотенцесушитель, что тоже неплохо - вещь это нужная.
  • В прихожей важно разместить хозяйственный шкаф и стиральную машину, над ней тоже будут места для хранения бытовой химии, утюг и пр. Поэтому хозяйственный шкаф можно сделать узким для стремянки, швабр, сушилки и гладильной доски, например. Если таких предметов много, можно его чуть расширить.
  • Что касается шкафа для одежды, то тут может быть закрытый гардероб, а могут быть открытые крючки, место для сидения под ними с хранением обуви под ним – все зависит от ваших предпочтений.
перенос двери позволил улучшить эстетику (видим душ, а не унитаз, входя в помещение) и разместить достатоно большую раковину с местами для хранения по ней, изображение автора
перенос двери позволил улучшить эстетику (видим душ, а не унитаз, входя в помещение) и разместить достатоно большую раковину с местами для хранения по ней, изображение автора

Расстановка сантехники и мебели, вариант 2

  • Унитаз с неглубокой инсталляцией размещаем около двери.
  • Выкраиваем место для пеналов, на них требуется всего 20 см. Но в предыдущем варианте они у нас не влезали из-за двери. Дверь немного сдвигаем в сторону унитаза. Здесь опять важно выстроить красивые линии. Поэтому душевая кабина на 10 см удлиняется в сторону ванны. В душе при этом появится еще один угол, но снаружи все будет выглядеть эстетично. Тогда дверь будет гармонично выровнена по линии с душем (зеленый пунктир), а в углу у двери встанут шкафчики.
  • Раковина оказывается на месте унитаза, она будет глубже, чем в предыдущем варианте, поскольку с эстетической точки зрения нам нужно ее разместить по одной линии с душем. Но она потеряет 10 см ширины, которые заберёт душ.
  • Прихожая не отличается от предыдущего варианта.
в этом варианте удалось выкроить место и для шкафчиков, изображение автора
в этом варианте удалось выкроить место и для шкафчиков, изображение автора

Надеюсь, этот обзор был интересен, делитесь вашим мнением.

Также читайте о том, как визуально увеличить маленькую квартиру.