Добавить в корзинуПозвонить
Найти в Дзене
Дизайн интерьера

Что НЕ входит в дизайн - проект…

Иногда между дизайнером и клиентом возникает разногласие о том, что должно входить в состав дизайн проекта интерьера и что должен делать дизайнер на авторском сопровождении, где начинаются и где заканчиваются его обязанности. Достаточно обратиться к договору, ведь там четко всё прописано, и те услуги которые не прописаны в договоре не входят в состав проекта. Да, на первый взгляд всё выглядит просто, но на самом деле камнем преткновения между дизайнерами и клиентами является факт того что многие клиенты не видят четкий круг обязанностей дизайнера. Давайте наконец внесем ясность в этом вопросе и определим, где проходят границы услуг дизайнера. Электрика. Дизайнер подбирает выключатели, светильники и бытовую технику, разрабатывает схемы управления светом и расположения электровыводов. Всё это согласовывается с клиентом ибо эта информация будет служить техническим заданием для электрика, который должен будет спроектировать электрощит и рассчитать сечения проводов с необходимым запасом мощ

Иногда между дизайнером и клиентом возникает разногласие о том, что должно входить в состав дизайн проекта интерьера и что должен делать дизайнер на авторском сопровождении, где начинаются и где заканчиваются его обязанности.

Достаточно обратиться к договору, ведь там четко всё прописано, и те услуги которые не прописаны в договоре не входят в состав проекта.

Да, на первый взгляд всё выглядит просто, но на самом деле камнем преткновения между дизайнерами и клиентами является факт того что многие клиенты не видят четкий круг обязанностей дизайнера.

Давайте наконец внесем ясность в этом вопросе и определим, где проходят границы услуг дизайнера.

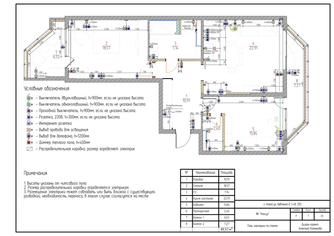
Электрика.

Дизайнер подбирает выключатели, светильники и бытовую технику, разрабатывает схемы управления светом и расположения электровыводов. Всё это согласовывается с клиентом ибо эта информация будет служить техническим заданием для электрика, который должен будет спроектировать электрощит и рассчитать сечения проводов с необходимым запасом мощности.

Дизайнер не выполняет расчетов и не делает исполнительных схем ибо это работа инженера электрика. Если есть необходимость то именно электрик должен разработать электрический проект до начала работ по монтажу электрики.

Слаботочные сети.

При разработке проектных чертежей и технического задания, дизайнер указывает расположение по комнатам и тип слаботочного оборудования (камеры видеонаблюдения, датчики движений, триггеры систем умного дома). Эта информация передается подрядчику. Она и послужит началом для ведения переговоров о закупке оборудования, обсуждения мест установки и детальности проработки проекта.

В техническом задании, дизайнер интерьера описывает потребности клиента, которые впоследствии уточняются при проектировании интерьера, а вот уже саму схемы установки и монтажа, выполняет инженер подрядчика, так же он подбирает сам тип оборудования и точные места его расположения. Во время реализации проекта, представитель подрядчика согласовывает с дизайнером все наружные элементы (типы электровыводов, выключатели, розетки, решетки, рамки и т.п).

Сложные проектные решения.

Аквариум, встроенный камин, домашний кинотеатр, печь, устройство лестницы, шумоизоляция, отопление, вентиляция и дымоход, водопровод и канализация— все эти элементы должны разрабатываться соответствующими специалистами. Они готовят пояснения по различным техническим ограничениям, которые передают дизайнеру, учитывая эту информацию дизайнер разрабатывает проект.

На стадии реализации проекта, подрядчики проводят согласование с клиентом устанавливаемого оборудования, окончательную стоимость и готовят рабочие чертежи. Разрабатывая проектные решения дизайнер учитывает всю имеющуюся информацию от подрядчиков но не выполняет чертежи и схемы этого оборудования и не отображает их у себя в проекте техническую и исполнительную документацию других подрядчиков.

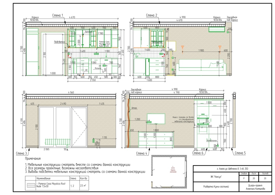
Устройство кухни, гардеробных и наполнение встраиваемых шкафов.

-2

При разработке дизайн проекта дизайнер указывает где будет расположена встроенная мебель (кухня, встроенные шкафы, гардероб), определяет конфигурацию и внешний вид. Отражает все эти моменты в эскизном проекте. Далее можно посчитать смету и выбрать подрядную организацию, которая будет выполнять проект по мебели.

Поскольку дизайнер интерьера не может знать ассортимент фурнитуры и материалов выбранного подрядчика и не компетентен в технических моментах производства мебели, он указывает только желаемый цвет и материал. Мебельный технолог делает деталировку и всё остальное. Окончательное согласование цвета фасадов и корпусов, фактур отделки и видимых деталей (ручки и петли) проводится в рамках оказания услуги по авторскому сопровождению.

Сантехника.

-3

При разработке проекта дизайнер выполняет схему привязки сантехники по осям и если требуется, делает описание нестандартных решений, которые заложены в проекте. Всю остальную информацию рабочие строительной бригады получают из инструкций по монтажу оборудования от производителя. Дизайнер не должен знать и объяснять рабочим тонкости и нюансы схем подключения, поскольку все эти моменты отражены в инструкциях которые идут в комплекте с закупленным оборудованием.

Смотровые и ревизионные лючки.

-4

При разработке проекта дизайнер указывает желаемое расположение лючков с пометкой «окончательное положение и размер согласовать с дизайнером на авторском сопровождении». Это делается потому что, заранее невозможно определить какие будут чистовые размеры после выравнивания и штукатурки стен, где и на какой высоте будет подрезка плитки, поэтому положение и устройство люков рабочие согласовывают с дизайнером на авторском сопровождении.

Схема укладки плитки и напольного покрытия.

При выполнении чертежей, дизайнер может указать точку начала раскладки плитки и напольного покрытия, так же её ориентацию в пространстве, а в примечаниях указать что раскладку нужно уточнить после возведения и выравнивания стен.

Так как проектирование ведется на основании обмеров сделанных по черновой отделке, то предугадать какие будут размеры после чистовой отделки нельзя, поэтому на авторском сопровождении дизайнер делает замеры уже возведенных и оштукатуренных стен, и корректирует раскладку плитки, если она будет отличатся от проектной. Строители делают раскладку уже по оштукатуренным стенам с учетом этой корректировки.

Как разграничиваются авторское сопровождение и комплектация.

Прежде всего авторское сопровождение необходимо для того, что бы выявить ошибки, которые были обнаружены в ходе осмотра работы строительной бригады. В рамках оказания услуги по авторскому сопровождению, дизайнер указывает на места, которые сделаны не по проекту. Дизайнер проводит консультации со строителями по чертежам, особенностям дизайн проекта и другим рабочим моментам в строго отведенное для этого время. Всё необходимое оборудование, которое нужно закупить, мебель, светильники, материалы, сантехнику — клиент заказывает самостоятельно или обращается к дизайнеру, делегируя эту обязанность ему и заключая с ним договор на комплектацию.

Утверждение и согласование БТИ.

Клиент самостоятельно согласовывает проект или обращается для этого в соответствующую организацию. На основании планов, предоставленных дизайнером), клиент или подрядчик вносят изменения в БТИ и проводят все согласования по инстанциям самостоятельно.

Номера цвета по палитре.

-5

В проектной документации дизайнер не указывает точный номер цвета, обозначая только название и отсылается на визуализацию. Это делается потому что к примеру один и тот же белый цвет по NCS у каждого производителя имеет свой оттенок, поэтому цвета необходимо смотреть в живую и подбирать на авторском сопровождении.

То что вы смотрите в каталоге, заметно отличается от образца в магазине, и может отличаться от того что привезут в реальности. На авторском сопровождении дизайнер собирает образцы выкрасов, смотрит их сочетания при естественном освещении в интерьере и делает выбор подходящих цветовых сочетаний, а так же подбирает материалы по образцам.

Расчет освещения.

Обычно дизайнер подбирает мощность светильников исходя из собственного опыта и знаний об типе источников света их мощности и световом потоке. Дизайнер определяет группы освещения и управляющие димеры. Расчет светотехнических параметров, выбор ламп и калибровочные работы выполняет специалист светотехнической подрядной организации.