Найти в Дзене
Realt.by

1163 доллара за метр и отдельный СПА-комплекс. Смотрите, какой красивый дом продают в Заславле

В Заславле продается красивый дом с ухоженным участком. Жилье с тремя жилыми этажами и отдельным СПА-комплексом. Внутри обустроено много спален с высокими потолками, а некоторые даже имеют выход на террасу. Предлагаем оценить интерьер. Показываем, как все выглядит. Дом находится на улице Рогнеды, 5В в Заславле. Он построен из кирпичей и газосиликатных блоков, утеплен и отштукатурен. Коттедж с тремя жилыми этажами и цоколем. Его площадь — 421,3 м². Внутри сделан хороший ремонт. Вход в дом идет через застекленную террасу. На первом этаже расположилась кухня-гостиная в 54,8 м². Тут есть кухонный гарнитур со встроенной бытовой техникой: двустворчатым холодильником, посудомоечной машиной, духовым шкафом, варочной газовой поверхностью и вытяжкой. В гостиной установлен камин. На этом этаже есть кабинет и санузел. А потолки везде имеют высоту 3,30 метра. На второй уровень ведет монолитная лестница, отделанная массивом дуба. Здесь обустроены санузел и четыре спальни. Все они обставлены мебелью

В Заславле продается красивый дом с ухоженным участком. Жилье с тремя жилыми этажами и отдельным СПА-комплексом. Внутри обустроено много спален с высокими потолками, а некоторые даже имеют выход на террасу. Предлагаем оценить интерьер. Показываем, как все выглядит.

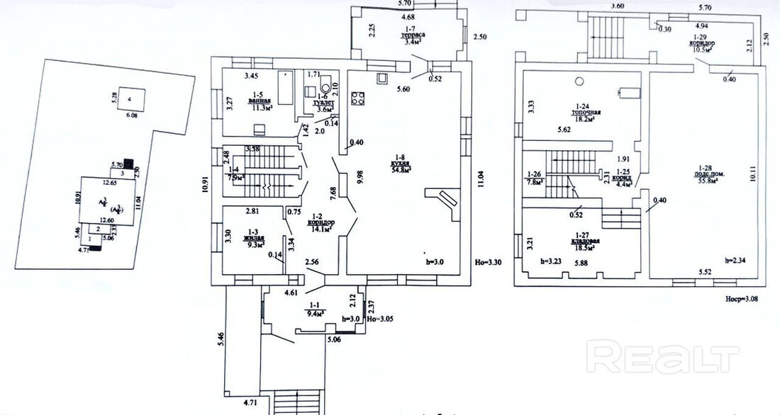
Дом находится на улице Рогнеды, 5В в Заславле. Он построен из кирпичей и газосиликатных блоков, утеплен и отштукатурен. Коттедж с тремя жилыми этажами и цоколем. Его площадь — 421,3 м².

Внутри сделан хороший ремонт. Вход в дом идет через застекленную террасу.

На первом этаже расположилась кухня-гостиная в 54,8 м². Тут есть кухонный гарнитур со встроенной бытовой техникой: двустворчатым холодильником, посудомоечной машиной, духовым шкафом, варочной газовой поверхностью и вытяжкой.

В гостиной установлен камин. На этом этаже есть кабинет и санузел. А потолки везде имеют высоту 3,30 метра.

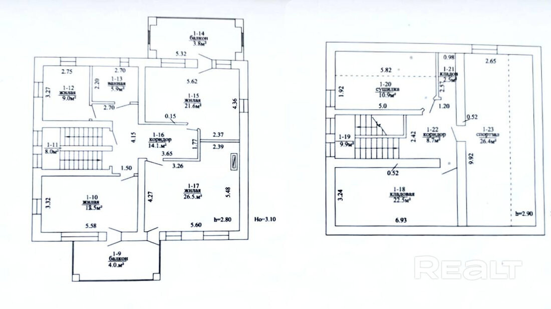
На второй уровень ведет монолитная лестница, отделанная массивом дуба. Здесь обустроены санузел и четыре спальни. Все они обставлены мебелью и техникой. Три комнаты имеют выход на террасу. Высота потолков на этом этаже достигает 3,10 метра.

Третий этаж — мансардный. Открытое пространство разделено на несколько зон: спальню и кабинет. Здесь же оборудованы гардеробная с функциональными зонами для хранения и личный санузел.

На цокольном этаже дома расположена котельная, где установлены газовый и твердотопливный котлы. Выделена кладовая и комната под постирочную.

Из центральных коммуникаций — газ и вода. Канализация тут местная.

Отдельно на участке расположено строение, где сделан СПА-комплекс с бассейном, парной и санузлом. Во дворе стоит купель, есть терраса с шезлонгами. Здесь также сделана комната под хамам.

Территория в 22 сотки выглядит ухоженной. Тут есть пруд, растет сад, имеется зона для барбекю. Установлены детская площадка и навес для двух автомобилей с электрозарядкой.

Рядом с домом есть магазины, зеленая зона. Поблизости — поликлиника, школы, детский сад и тренажерный зал.

Дом продают за 490 тысяч долларов.