Добавить в корзинуПозвонить
Найти в Дзене
Futuris Architects

THE БЫК

Вы любитель мяса? Если да, то вы, вероятно, знаете эстетику настоящих стейк-хаусов: огонь, темные тона повсюду, прохладная температура, теплое освещение и горячие блюда. БЫК предлагает еще лучший опыт, сочетая классическую атмосферу стейк-хауса с современной концепцией дизайна, что делает его по-настоящему уникальным на рынке.
Открывшийся в 2016 году, БЫК — это сеть стейк-хаусов, растущая в России, а теперь и в Армении. Опытные дизайнеры из Futuris Architects стояли за дизайном интерьера, стремясь придать пространство ауры утонченной мужской энергии с оттенком современной эстетики. В этой статье мы рассмотрим этапы процесса проектирования с самого начала до успешного завершения. Проект плана этажа ресторана БЫК Идеальный план этажа может гарантировать успех проекта. План этажа БЫК раскрывает продуманную стратегию зонирования, которая сыграла центральную роль в формировании концепции интерьера. Учитывая первоначальные проблемы пространства — наклонный пол, низкие потолки и отсутствие е

Вы любитель мяса? Если да, то вы, вероятно, знаете эстетику настоящих стейк-хаусов: огонь, темные тона повсюду, прохладная температура, теплое освещение и горячие блюда. БЫК предлагает еще лучший опыт, сочетая классическую атмосферу стейк-хауса с современной концепцией дизайна, что делает его по-настоящему уникальным на рынке.

Открывшийся в 2016 году, БЫК — это сеть стейк-хаусов, растущая в России, а теперь и в Армении. Опытные дизайнеры из Futuris Architects стояли за дизайном интерьера, стремясь придать пространство ауры утонченной мужской энергии с оттенком современной эстетики. В этой статье мы рассмотрим этапы процесса проектирования с самого начала до успешного завершения.

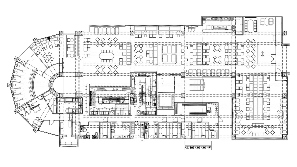
Проект плана этажа ресторана БЫК

Идеальный план этажа может гарантировать успех проекта. План этажа БЫК раскрывает продуманную стратегию зонирования, которая сыграла центральную роль в формировании концепции интерьера. Учитывая первоначальные проблемы пространства — наклонный пол, низкие потолки и отсутствие естественного света — планировка была тщательно разделена на несколько обеденных зон, каждая со своим характером и атмосферой. От изогнутых полуприватных кабинок в закругленной секции до длинных общих столов и барных зон, каждая зона была специально спроектирована для удовлетворения различных предпочтений в еде и размеров групп. Это зонирование стало основой процесса проектирования, что позволило Futuris Architects разработать четыре отдельных зала, каждый из которых был разработан с учетом особого освещения, текстур и настроений — в конечном итоге воплотив в жизнь смелую и захватывающую концепцию БЫК.

Мудбод, доска материалов и эскизы

Как уверяют многие художники, создание эскизов — один из самых интересных этапов работы. Когда фантазия не имеет границ, шедевры создаются в голове и переносятся на бумагу. Поэтому решающим этапом в проектировании БЫК стало создание доски настроения, доски материалов и первоначальных набросков от руки. Эти элементы задают визуальный тон проекта задолго до начала строительства. Доска настроения передает суть пространства — теплое освещение, смелые текстуры, насыщенные тона дерева, кожаные сиденья и индустриальные акценты, все это уравновешивается естественной зеленью. Доска материалов подчеркивает палитру глубоких коричневых, угольных, мягких серых и теплых кирпичных тонов, поддерживаемых тактильными поверхностями, такими как кожа, темное дерево и металл.

-2

Процесс строительства интерьера ресторана БЫК

Прежде чем БЫК смог стать тем теплым, атмосферным пространством, которым он является сегодня, он начинался как голая бетонная оболочка — сырая, холодная и полная трудностей. Этап строительства был одним из самых сложных этапов процесса. Без естественного освещения, с неровными полами и низкими потолками, место требовало креативных структурных решений и сильного дизайнерского видения. Стены были возведены, чтобы обозначить будущие зоны отдыха и приватные зоны, причем каждая линия была тщательно выровнена с оригинальными эскизами и планом этажа. Этот этап заложил физическую основу для всего последующего, превратив грубую кладку в изысканную, захватывающую обеденную среду.

-3

Новое поколение дизайна стейк-хауса

Художники Futuris Architects усердно работают над концепцией интерьера БЫК, делая его чем угодно, кроме обычного. Они хотели предложить опыт стейк-хауса с современным повествованием, а также передать философию БЫК, которая является демократичным мясным опытом, с мясными блюдами, которые могут себе позволить многие люди. Итак, вместо того, чтобы копировать ожидаемую обтянутую кожей, тускло освещенную атмосферу традиционных стейк-хаусов, Futuris Architects взяли смелое новое направление — первобытный, надежный процесс приготовления мяса: огонь, текстура и трансформация.

С того момента, как вы входите внутрь, эта тема становится ощутимой. Вас встречает не только красное освещение, но и ощущение тепла, которое оно создает, как едва уловимое свечение углей в камине. Стены и поверхности выполнены из термообработанных материалов, которые имитируют текстуры обугленного дерева или обожженного металла, отдавая дань уважения искусству приготовления на гриле, не полагаясь на клише. Атмосфера богатая, сырая и тактильная — каждый дюйм спроектирован так, чтобы отражать энергию кухни.

Это современный дизайн интерьера в его самом захватывающем виде. Вместо того, чтобы строить декор вокруг мебели или цветовых палитр, Futuris Architects построили вокруг идеи, в результате чего пространство ощущается живым.

-4
-5

Преодоление пространства, создание опыта
В архитектуре местоположение имеет важное значение, поскольку оно может как помочь, так и создать проблемы. В заведении БЫК есть наклонный пол, необычно низкие потолки и нет доступа к естественному освещению — сочетание, которое отпугнуло бы большинство дизайнеров. Но вместо того, чтобы бороться с пространством, Futuris Architects приняли его.

Они создали отдельные зоны, разделив ресторан на четыре уникальных зала, каждый со своей эстетикой, настроением и планировкой. Это решило пространственные сложности и превратило их в одну из сильных сторон ресторана. Каждый зал предлагает тщательно подобранный опыт — от более интимной обстановки с темными текстурами и мягкими красными оттенками до более открытого, динамичного помещения, которое усиливает свет и движение.

Эта стратегия дизайна значительно улучшает качество обслуживания клиентов. Она позволяет посетителям выбирать свою вечернюю атмосферу — что-то непринужденное и уютное или смелое и театральное. Она также позволяет ресторану проводить все, от романтических ужинов до оживленных встреч, не нарушая атмосферу каждого пространства.

-6
-7
-8

Где кулинария встречается с архитектурой
БЫК был основан с четкой миссией: сделать хорошее мясо доступным. Его основатель говорит: «Мы часто слышим, что стейк — это роскошь. Для нас это миф. Мы считаем, что хорошее мясо может и должно быть доступно каждому». Этот инклюзивный подход к изысканной кухне отражен в дизайне.

Вместо того, чтобы создавать пространство, которое кажется эксклюзивным или недоступным, интерьер ресторана кажется приземленным, элегантным, да, но также и привлекательным. Использование экологически чистых материалов, от древесины, полученной из экологически чистых источников, до отделки с низким содержанием летучих органических соединений, поддерживает это видение доступности и ответственности. Пространство не кричит о роскоши — оно гудит тихой уверенностью.

У каждого элемента есть свое предназначение. Даже освещение, которое часто упускается из виду во многих ресторанных интерьерах, играет решающую роль. Здесь оно используется не только для освещения, но и для скульптурирования. Мягкие красные и золотистые тона формируют атмосферу, не подавляя чувства. Это продуманное использование передовых технологий, которое усиливает эмоциональный тон пространства.

-9
-10
-11

Четыре зала, одно видение
В ресторане четыре зала, которые не расположены хаотично. Каждый из них имеет определенное значение и предназначение.

- Зал Ember отражает момент, когда мясо касается огня. Благодаря богатым текстурам, глубоким теням и сфокусированному освещению он создает атмосферу для интимных бесед и насыщенных вкусов.
- Процесс трансформации вдохновляет Smoke Room — прохладные тона, смешанные с оттенками тепла, вызывают в памяти сложность блюд, приготовленных на медленном огне.
- Зал Firelight Lounge открывается окружающим светом, стеклянными поверхностями и мерцающими отражениями, идеально подходящими для общения и празднований.
- Char Chamber, самый смелый из четырех, играет с контрастом и силой. Он отличается черненой отделкой и скульптурными элементами, которые прославляют необработанное мастерство кулинарии.

Хотя каждое пространство отличается, общий дизайн остается целостным, объединенным центральными темами трансформации и тепла. Это продуманное наложение концепций делает БЫК больше, чем просто красиво оформленным рестораном; это пространственный опыт.

-12
-13
-14
-15