Найти в Дзене
ЭТО ВАШ ИНТЕРЬЕР

«Мы не верили, что это возможно». Как, мы преобразили маленькую квартиру в доме 1903 года до неузнаваемости (здесь много винтажа и истории)

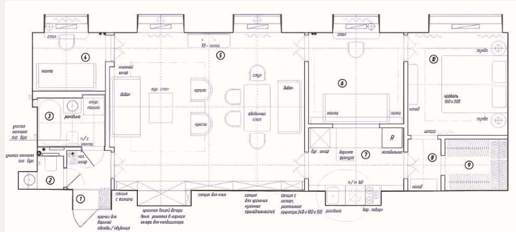
В самом сердце Москвы, в старом доходном доме на Арбате, есть квартира площадью всего 67 квадратных метров. Казалось бы, места мало и для семьи из четырёх человек квартирка в таком формате — это вечная проблема. Но хозяйка Мария и дизайнер Ольга решили иначе. Вместе им удалось придумать такой план, который не просто увеличил пространство, а сделал жизнь в «малогабаритке» комфортной и… по-настоящему уютной. Когда Мария впервые увидела эту квартиру, у неё не было иллюзий — жильё было не в лучшем состоянии. Темный коридор тянулся всю длину квартиры, а комнаты по обе стороны были маленькие и казались совсем неудобными. Сделать из неё современное жилище было непросто. «Вся квартира казалась унылой: давно не тронутая, с устаревшей планировкой, темными комнатами. Никому, кроме меня, она не понравилась», — признается Мария. Но именно потому, что квартира была в таком состоянии, Мария смогла её купить и начать большой ремонт — с возможностью продумать всё заново. Первое и главное — убрать этот
Оглавление

В самом сердце Москвы, в старом доходном доме на Арбате, есть квартира площадью всего 67 квадратных метров. Казалось бы, места мало и для семьи из четырёх человек квартирка в таком формате — это вечная проблема. Но хозяйка Мария и дизайнер Ольга решили иначе. Вместе им удалось придумать такой план, который не просто увеличил пространство, а сделал жизнь в «малогабаритке» комфортной и… по-настоящему уютной.

Как всё начиналось: из чего пришлось исходить

Когда Мария впервые увидела эту квартиру, у неё не было иллюзий — жильё было не в лучшем состоянии. Темный коридор тянулся всю длину квартиры, а комнаты по обе стороны были маленькие и казались совсем неудобными. Сделать из неё современное жилище было непросто.

«Вся квартира казалась унылой: давно не тронутая, с устаревшей планировкой, темными комнатами. Никому, кроме меня, она не понравилась», — признается Мария.

Но именно потому, что квартира была в таком состоянии, Мария смогла её купить и начать большой ремонт — с возможностью продумать всё заново.

Что изменилось: от длинного коридора к двум живым анфиладам

Первое и главное — убрать этот длинный, непривлекательный коридор по всей длине помещения, заменив его на две линии комнат, которые друг с другом связаны, создавая удобный проход.

-2

Первая такая линия — это кабинет для старшей дочери, гостиная и входная зона. Вторая — детская сына, кухня, гардеробная и спальня родителей.

Такой подход позволил не только увеличить пространство для всех членов семьи, но и сделать его более «живым». Каждая комната плавно перетекает в другую, и при этом в квартире не чувствуешь тесноты.

-3

Самое неожиданное решение — кухня в коридоре

Вы могли бы подумать, что кухня должна оставаться на своём привычном месте. Но нет — Мария и дизайнер перенесли кухню в бывший коридор.

-4

Кажется странным? Но на практике это оказалось гениальным ходом. Такая «проходная» кухня стала удобным пространством, где можно и готовить, и общаться с семьёй или гостями, находящимися в гостиной. Свободное место освободилось для комнаты старшей дочери — теперь у неё есть и работающий уголок, и кровать, даже в тех крошечных 4 квадратах.

«Мы сделали кухню своеобразным вагончиком — она компактная, но всё продумано и удобно», — говорит Мария.
-5

Что с несущими стенами?

Сами стены в квартире — это отдельная история. Фасадная стена и та, что разделяет с соседями, трогать нельзя — это несущие конструкции. Но все остальные перегородки можно было двигать.

-6

Благодаря этому увеличилась гостиная, где теперь два окна, и свет льётся повсюду. Идеальное место для семейных посиделок или встреч с друзьями.

-7

Санузлы остались на месте — и это удобно

В этой квартире есть два санузла: большой с ванной и гостевой туалет. Их решили не трогать — а это не всегда просто, особенно когда кухня переезжает далеко от своей изначальной точки.

-8

Пришлось очень грамотно продумывать системы вентиляции, водопровод и все трубы — без мелочей тут не обошлось. Но теперь всё работает идеально и без проблем.

-9

Маленькие комнаты, большая функциональность

Когда кажется, что 67 метров — очень мало, главное — чётко понимать, что и как использовать:

  • Спальня родителей — 9,2 кв.м. Здесь нет ничего лишнего, хороший отдых важнее громоздкой мебели.
  • Гардеробная — всего 2,7 кв.м. Компактная, но всё самое важное помещается. Мария признаётся, что оставшиеся вещи были отданы тем, кому они нужнее.
  • Дочка живёт в 4 кв.м., но там есть и кровать, и место для учебы — нишу, которая раньше использовалась как холодильник, сделали удобной рабочей зоной.
  • Сыну досталась комната в 8 кв.м., с двумя четко разделёнными зонами — для сна и для игр.

Даже такие маленькие комнаты забирают на себя разные задачи, что особенно важно для семей с детьми.

Важна каждая деталь — сохраняя атмосферу прошлого

При всех нововведениях очень хотели сохранить и уважить историю квартиры. Дом-то 1903 года!

Остались фрагменты старинного паркета и камина, характерные окна с высокими потолками, около 3,4 метра.

-12

Особое внимание — реставрации паркета: его аккуратно сняли, хранили в специальном помещении и, когда ремонт завершился, мастер ровно четыре месяца восстанавливал его первозданный вид.

«Мы любуемся этой историей в доме каждый день, и это наполняет квартиру душой», — говорит дизайнер Ольга.
-13

Несколько советов из личного опыта

Если вы тоже живёте в малогабаритке или планируете ремонт, вот что важно принять во внимание:

  • Не бойтесь проходных комнат, если их правильно организовать — они работают и выглядят отлично;
  • Перед началом ремонта изучите, какие стены несущие, а какие можно менять;
  • Очень внимательно продумаете коммуникации (вода, газ, вентиляция) особенно если планируете перенос кухни и санузлов;
  • Даже маленькие комнаты могут быть супер функциональными, главное — четкая идея и план;
  • Обращайте внимание на особенности вашего дома: ниши, высокие потолки и интересные детали — это ваши преимущества.
-14

Заключение

История этой квартиры на Арбате — вдохновение для тех, кто думает, что небольшие квартиры — это ограничение. Это не так, если посмотреть шире и не бояться экспериментировать.

Все мы можем создать уютный дом, где будет удобно каждому члену семьи. Иногда достаточно изменить планировку, побыть немножко креативным и вслушаться в свои настоящие потребности.

А у вас есть свои идеи или уже сделанный ремонт, которым хочется поделиться? Расскажите в комментариях, что помогло вам сделать квартиру удобнее!