Добавить в корзинуПозвонить
Найти в Дзене

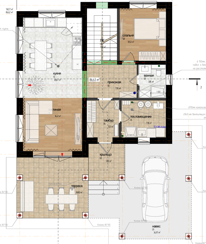
Сколько стоит дом из газобетона в 2025 году: реальные цифры и этапы строительства

В конце 2023 года мы публиковали статью на тему «Сколько стоит дом из газобетона» — и она вызвала огромный интерес. В 2025 году мы снова берем эту тему. На этот раз — на примере реального проекта (136,8 м2), который в данный момент строит наша компания «Интел Групп». Общая стоимость строительства дома — 10 815 000 ₽ (включая НДС 5%). Это цена по фактической смете, рассчитанной на основе проекта и включающей все этапы (материалы и работы). 10 815 000 рублей (с НДС) — столько стоит построить дом площадью 136,8 м² в 2025 году по индивидуальному проекту. Эта сумма включает не только коробку, фундамент и кровлю, но и все инженерные сети, окна, двери, отопление, крыльцо, террасу, а также частичную отделку. Если вы хотите узнать точную стоимость строительства вашего будущего дома — обращайтесь в «Интел Групп». С 2011 года мы строим каркасные и каменные дома в Подмосковье. Проекты и готовые дома можно посмотреть на нашем сайте
Оглавление

В конце 2023 года мы публиковали статью на тему «Сколько стоит дом из газобетона» — и она вызвала огромный интерес. В 2025 году мы снова берем эту тему. На этот раз — на примере реального проекта (136,8 м2), который в данный момент строит наша компания «Интел Групп».

Кратко о проекте

  • Тип дома: двухэтажный, индивидуальный жилой дом
  • Материал стен: газобетон D500, толщина 375 мм
  • Фундамент: утепленная монолитная плита
  • Кровля: скатная, металлочерепица Grand Line Quarzit
  • Окна: REHAU Blitz, стеклопакет 32 мм, ламинация снаружи
  • Двери: металлические, утепленные входные двери
  • Терраса и крыльцо: монолитная плита с отделкой
  • Отопление: электрический котел 15,9 кВт + теплый пол
  • Инженерия: электрика, скважина, водоснабжение, септик

Из чего складывается стоимость

Общая стоимость строительства дома — 10 815 000 ₽ (включая НДС 5%). Это цена по фактической смете, рассчитанной на основе проекта и включающей все этапы (материалы и работы).

1. Подготовительные работы и проектирование

  • Геология и проектирование входят в стоимость
  • Несколько вариантов планировки и фасадов от архитектора

2. Фундамент — утепленная монолитная плита

  • Выполнены геологические изыскания.
  • Утепление и гидроизоляция включены.
  • Проведены закладные под инженерные коммуникации.

3. Стеновой комплект

  • Газобетон D500, толщина 375 мм
  • Армирование: каждые 3 ряда — 2 стержня
  • Перемычки над проемами — монолитные, армированные

4. Межэтажные и чердачные перекрытия

  • Плиты перекрытия ЖБИ, 220 мм
  • Опираются на монолитный армопояс.

5. Армопояса

  • Монолитные армопояса на каждом уровне
  • Заливка с использованием греющего кабеля в холодное время
Армопояс до заливки
Армопояс до заливки

6. Стропильная система и кровля

  • Стропила из сухой строганой доски.
  • Утепление кровли: базальтовая вата 200 мм.
  • Кровля: металлочерепица Grand Line Quarzit, водосточка

7. Окна и двери

  • Окна: REHAU Blitz, стеклопакет 32 мм, с ламинацией снаружи.
  • Двери входные: утепленные металлические.
Монтаж окон и дверей
Монтаж окон и дверей

8. Терраса и крыльцо

  • Монолитная плита с армированием и отделкой

9. Инженерные сети

  • Электроснабжение: щит, автоматы, проводка
  • Водоснабжение: скважина с насосной станцией
  • Канализация: септик с переливами
  • Отопление: электрический котел + тёплый пол по всей площади

10. Прочие работы

  • Обустройство площадки
  • Чистовая отделка (частично)
  • Монтаж лестницы, межкомнатные перегородки

Итоговая стоимость

10 815 000 рублей (с НДС) — столько стоит построить дом площадью 136,8 м² в 2025 году по индивидуальному проекту. Эта сумма включает не только коробку, фундамент и кровлю, но и все инженерные сети, окна, двери, отопление, крыльцо, террасу, а также частичную отделку.

Если вы хотите узнать точную стоимость строительства вашего будущего дома — обращайтесь в «Интел Групп». С 2011 года мы строим каркасные и каменные дома в Подмосковье. Проекты и готовые дома можно посмотреть на нашем сайте

Для консультации звоните: +7 (499) 588-86-26