Найти в Дзене
R&D agrotech

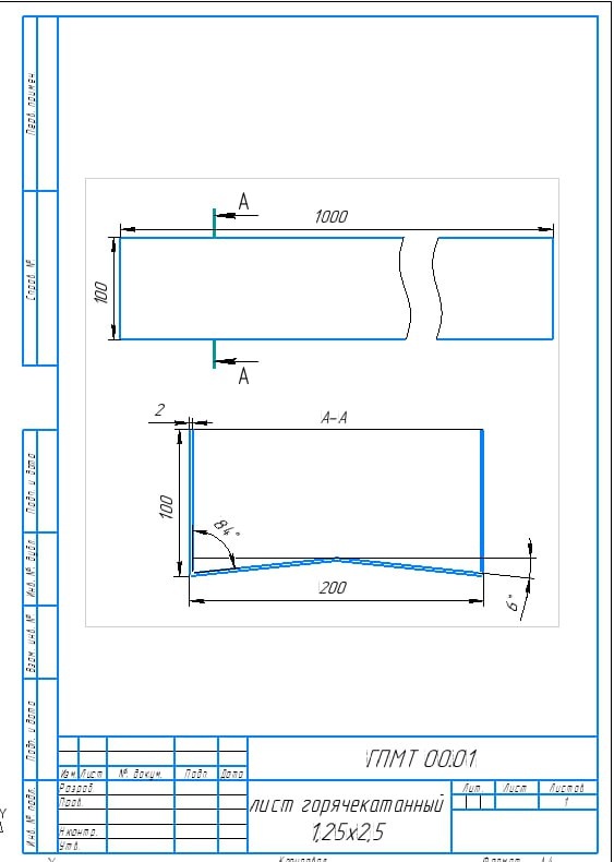
Конструкция, которая устанавливается на стойки, возможно в несколько уровней

Конструкция, которая устанавливается на стойки, возможно в несколько уровней. В нее заходит мат агроваты. Данный сгиб требуется во избежании большого хода мата агроваты, так же можно установить данную конструкцию с уклоном, что бы лишняя вода не скапливалась под матом.

Конструкция, которая устанавливается на стойки, возможно в несколько уровней. В нее заходит мат агроваты. Данный сгиб требуется во избежании большого хода мата агроваты, так же можно установить данную конструкцию с уклоном, что бы лишняя вода не скапливалась под матом.