Добавить в корзинуПозвонить
Найти в Дзене
YarNews

В Ярославле планируют застраивать территорию у озера «Техас»

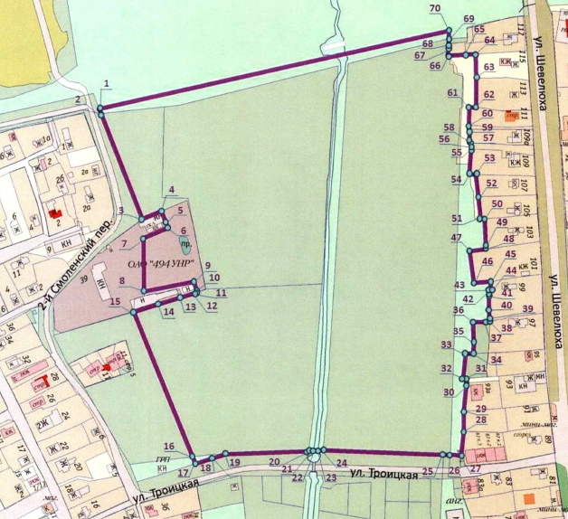
В Заволжском районе. Постановление о застройке подписано мэром Артемом Молчановым. В документе идет речь о комплексном развитии территории в районе улиц Троицкой, Шевелюха и 2-й Смоленский переулок в Ярославле. Площадь земельного участка составляет 131.7 тысяч квадратных метров. Сейчас на этой земле объектов капитального строительства нет. Предполагается, что будущий договор должен быть исполнен в течении 8 лет. Постановлением разрешается возведение на участке малоэтажных жилых домов. Ограничение составляет 4 этажа. Также запланировано возведение детского сада на 160 мест. При этом в постановлении отмечается, что в нормативном радиусе доступности, который составляет 500 метров, нет не только детских садов, но и школ. Правда, в транспортной доступности находится школа №50 на проспекте Авиаторов. А в документе также упоминается, что в соответствии с Генпланом Ярославля планируется и появление школы именно в нормативном радиусе. Что касается остальных социальных нужд, к медикам предлагает

В Заволжском районе.

Постановление о застройке подписано мэром Артемом Молчановым. В документе идет речь о комплексном развитии территории в районе улиц Троицкой, Шевелюха и 2-й Смоленский переулок в Ярославле.

Площадь земельного участка составляет 131.7 тысяч квадратных метров. Сейчас на этой земле объектов капитального строительства нет. Предполагается, что будущий договор должен быть исполнен в течении 8 лет.

Постановлением разрешается возведение на участке малоэтажных жилых домов. Ограничение составляет 4 этажа. Также запланировано возведение детского сада на 160 мест. При этом в постановлении отмечается, что в нормативном радиусе доступности, который составляет 500 метров, нет не только детских садов, но и школ. Правда, в транспортной доступности находится школа №50 на проспекте Авиаторов. А в документе также упоминается, что в соответствии с Генпланом Ярославля планируется и появление школы именно в нормативном радиусе.

Что касается остальных социальных нужд, к медикам предлагается обращаться в клиническую больницу №3 на улице Алмазной, с детьми — в детскую поликлинику №5 на проспекте Машиностроителей.

В пешей и транспортной доступности от развиваемой территории также располагается большое количество магазинов, неподалёку расположены Ярославский зоопарк и парусный клуб. Очевидно, что всё в порядке и с зонами для отдыха: Смоленский бор, Шевелюхинское озеро, также известное как «Техас», а также река Шевелюха, Верхний остров и пляж.