Найти в Дзене

Дизайн-проект. Сколько розеток нужно для квартиры

Не так давно мы открыли завесу тайны и рассказали, что для стандартной кухни требуется 12 розеток (-+2 розетки). Теперь хотим рассказать сколько розеток нужно для квартиры в целом: ТЗ: квартира, которую мы показывали ранее, для семейной пары без детей. Кому лень читать - спускайтесь ниже, там сразу планы без розеток и с ними. А мы начинаем: 📌 Входная группа- коридор ✅ Закладываем розетки для обувной сушилки- 1 или две в зависимости от количества постоянных жильцов. ✅Розетка для уборки и/или для зарядной станции робота - пылесоса 📌 Санитарный узел - ванна ✅Вывод 220 V или розетка для зеркала с подсветкой ✅ Влагозащитные розетки для фена и/или плойки ✅ Вывод для электрического полотенцесушителя (если водяной - то не нужно) ✅Если стоит стиральная или сушильная машина - 2 или 1 розетка 📌Кухню разбирать не будем, уже разбирали ссылка на пост с чётким списком тут : https://dzen.ru/b/aJXTyOuW_VF0uRn1 📌 Гостиная комната: ✅ Розетка для уборки ✅ Розетка для ТВ -зоны : под телевиз

Не так давно мы открыли завесу тайны и рассказали, что для стандартной кухни требуется 12 розеток (-+2 розетки).

Теперь хотим рассказать сколько розеток нужно для квартиры в целом:

ТЗ: квартира, которую мы показывали ранее, для семейной пары без детей.

Кому лень читать - спускайтесь ниже, там сразу планы без розеток и с ними.

А мы начинаем:

📌 Входная группа- коридор

✅ Закладываем розетки для обувной сушилки- 1 или две в зависимости от количества постоянных жильцов.

✅Розетка для уборки и/или для зарядной станции робота - пылесоса

📌 Санитарный узел - ванна

✅Вывод 220 V или розетка для зеркала с подсветкой

✅ Влагозащитные розетки для фена и/или плойки

✅ Вывод для электрического полотенцесушителя (если водяной - то не нужно)

✅Если стоит стиральная или сушильная машина - 2 или 1 розетка

📌Кухню разбирать не будем, уже разбирали

ссылка на пост с чётким списком тут : https://dzen.ru/b/aJXTyOuW_VF0uRn1

📌 Гостиная комната:

✅ Розетка для уборки

✅ Розетка для ТВ -зоны : под телевизор, под игровую консоль ( если таковая имеется) , под зарядку для джойстиков (если таковые имеются), розетка под колонки и одна запасная розетка, если вдруг что-то ещё подключится

✅ Розетки у дивана, две минимум

Кому-то телефон зарядить, кому -то ноутбук, кому-то всё вместе.

✅Розетки в откосах окон. Для гирлянды или подсветки для растений.

✅Если есть рабочий стол - миниму 4 розетки для него.

Надо будет и лампу подключить и телефон зарядить, и ноутбук. Если стоит стационарный компьютер - для него миниму 3 розетки ещё.

📌 Спальня:

✅ По четыре розетки у каждого края кровати ( при условии, что живут два человека)

✅ Розетка для уборки

✅Розетка для ТВ зоны - лучше 2

✅Если есть стол для макияжа - вывод под зеркало или розетка и две розетки для плойки зарядки или ещё чего-нибудь

Это общий чек-лист, чтобы не забыть ничего при ремонте

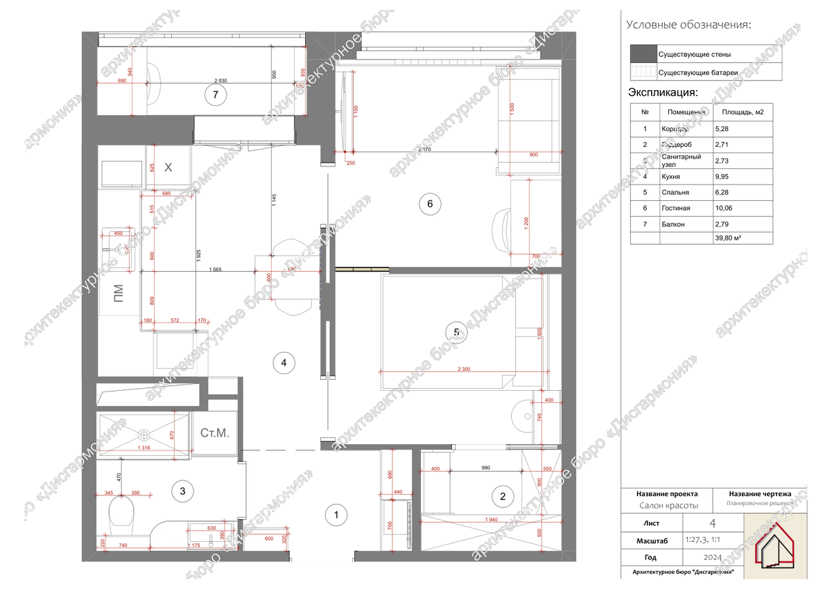
А вот сколько розеток мы поставили на план заказчикам.

Для удобство сначала прикладываем планировочное решение

-2
-3

Мы поможем ничего не забыть при ремонте, для заказ проекта или консультации :

📞+79110495694

✉ARHburodisharmony@yandex.ru

Или просто напишите в сообщения группы ❤

Архитектурное бюро "Дисгармония"