Найти в Дзене

В Уфе внесли изменения в проект квартала у озера Кашкадан

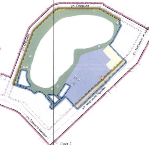
В Уфе внесли изменения в проект планировки территории, ограниченной улицами Маршала Жукова, Баязита Бикбая, Сипайловская, Озерная и Косогорная в микрорайоне Сипайлово у озера Кашкадан. Соответствующее постановление опубликовано на сайте администрации города. Проектом внесения изменений предусмотрена корректировка красной линии по улице Маршала Жукова с целью включения существующего 3-х этажного надземного пешеходного перехода в границы территории квартала. Новый проект также предполагает снос нестационарных объектов общей площадью 476 квадратных метров и размещение планируемой подземной канализационно-насосной станции. Проектом межевания исключены границы водного объекта озера Кашкадан для приведения в соответствие с действующим законодательством. В постановлении уточняется, что на территории проектирования не планируется строительство новых капитальных объектов, в том числе жилья. Ранее сообщалось, что в Уфе дано разрешение на проектирование нового квартала в пойме рек Белая и Уфа.

В Уфе внесли изменения в проект планировки территории, ограниченной улицами Маршала Жукова, Баязита Бикбая, Сипайловская, Озерная и Косогорная в микрорайоне Сипайлово у озера Кашкадан. Соответствующее постановление опубликовано на сайте администрации города.

Проектом внесения изменений предусмотрена корректировка красной линии по улице Маршала Жукова с целью включения существующего 3-х этажного надземного пешеходного перехода в границы территории квартала. Новый проект также предполагает снос нестационарных объектов общей площадью 476 квадратных метров и размещение планируемой подземной канализационно-насосной станции. Проектом межевания исключены границы водного объекта озера Кашкадан для приведения в соответствие с действующим законодательством. В постановлении уточняется, что на территории проектирования не планируется строительство новых капитальных объектов, в том числе жилья.

Ранее сообщалось, что в Уфе дано разрешение на проектирование нового квартала в пойме рек Белая и Уфа.