Найти в Дзене
ТЕХНОНИКОЛЬ ИЖС

Как выглядит самый быстрый дом от ТЕХНОНИКОЛЬ

Дом по проекту МОНЕ 60 на выставке «Малоэтажная страна» возвели за четыре дня Панельно-каркасный домокомплект собирали весной: в начале недели был только участок с фундаментом, а к выходным уже стоял дом. Но посетителей стали приглашать только летом — потому что готовность интерьера «под тапочки», даже в быстром доме, — не терпит суеты. Особенность проекта МОНЕ 60 от ТЕХНОНИКОЛЬ в том, что в компании его называют «самым быстрым» домом. Домокомплекты производят на заводах в Ленинградской и Нижегородской областях, комплектуют, упаковывают и отправляют на склады. Поэтому заказчику не нужно ждать, пока его дом спроектируют и построят: готовые к отгрузке домокомплекты всегда есть на складе. Для перевозки будущего дома к месту монтажа нужны две еврофуры стандартного объема 120 куб. м. На монтаж дома автокраном, прямо с колес, на готовом фундаменте, — отводится три-четыре дня.
То есть, если ехать от склада до участка не больше суток, у заказчика есть шанс получить дом через неделю после при
Оглавление

Дом по проекту МОНЕ 60 на выставке «Малоэтажная страна» возвели за четыре дня

Панельно-каркасный домокомплект собирали весной: в начале недели был только участок с фундаментом, а к выходным уже стоял дом. Но посетителей стали приглашать только летом — потому что готовность интерьера «под тапочки», даже в быстром доме, — не терпит суеты.

Как строят быстрые дома МОНЕ 60

Особенность проекта МОНЕ 60 от ТЕХНОНИКОЛЬ в том, что в компании его называют «самым быстрым» домом.

Домокомплекты производят на заводах в Ленинградской и Нижегородской областях, комплектуют, упаковывают и отправляют на склады.

Поэтому заказчику не нужно ждать, пока его дом спроектируют и построят: готовые к отгрузке домокомплекты всегда есть на складе. Для перевозки будущего дома к месту монтажа нужны две еврофуры стандартного объема 120 куб. м. На монтаж дома автокраном, прямо с колес, на готовом фундаменте, — отводится три-четыре дня.

То есть, если ехать от склада до участка не больше суток, у заказчика есть шанс получить дом через неделю после принятия решения о покупке. В этом случае свайно-винтовой фундамент можно смонтировать, пока с завода едут фуры.

Причем это будет не просто коробка, а дом с полностью завершенной фасадной отделкой и кровельным покрытием и готовностью к внутренней: закладными для коммуникаций, подрозетниками, стенами под чистовую отделку. И при этом — без гор строительного мусора на площадке.

Понятное дело, что в реальной жизни дома за неделю не строят: как минимум потому что такие темпы строительства значительно опережают скорость принятия решений будущим домовладельцем. А таких решений — особенно много на стадии выбора материалов для внутренней отделки.

Но факт: благодаря новому формату ИЖС “дом со склада”, владелец участка имеет возможность получить готовый к заселению дом через месяц-два после принятия решения о покупке. Это скорость недостижимая для других строительных технологий и способов строительства. А выигрыш во времени оборачивается и снижением издержек и для заказчиков, и для подрядчиков.

Ведь обычный дом строят минимум полгода — и все это время кто-то должен платить зарплату рабочим, организовывать их быт, а нередко — оплачивать простои.

Но у скорости есть обратная сторона. Дом МОНЕ 60 — это полностью готовое архитектурное и конструктивное решение, которое нельзя изменить. Именно поэтому архитекторы, дизайнеры, проектировщики и технологи постарались создать «идеальный» проект, в котором заказчику ничего не захочется переделывать. Они долго оттачивали каждую деталь, чтобы представить его на выставке.

Давайте посмотрим, что получилось.



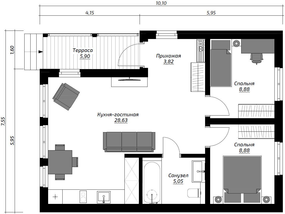
Размеры дома — 9,6 х 7,3 м, общая площадь — 60 кв. м, Состав помещений: 
кухня-гостиная, две жилые комнаты, санузел
Размеры дома — 9,6 х 7,3 м, общая площадь — 60 кв. м, Состав помещений: кухня-гостиная, две жилые комнаты, санузел

Дом МОНЕ 60 внутри и снаружи

Внешне МОНЕ 60 напоминает альпийское шале. У него двускатная кровля с длинными свесами, наружная отделка — благородная деревянная имитация бруса.

Еще одно решение — окна с подоконниками на высоте 20 см от пола: они также эффектно смотрятся, но более практичны, чем «окна в пол».

Выставочный дом полностью меблирован и посетители выставки могут оценить и примерить на себя интерьеры
Выставочный дом полностью меблирован и посетители выставки могут оценить и примерить на себя интерьеры

Внутри две спальни, санузел и кухня-гостиная-столовая. Наклонные потолки и полуоткрытые балки — тоже элементы в стиле шале. Такие детали в интерьере будут напоминать о том, что вы в доме, а не в квартире.

-4

А еще фишка выставочного дома в том, что он укомплектован «фирменным» сантехническим модулем — а именно, готовой ванной комнатой, также полностью сделанной на заводе, в которой к моменту установки уже есть не только сантехника и керамогранитная плитка на стенах, но также зеркало и светодиодные светильники.

То есть, установили модуль, подвели и подключили трубы и проводку — можно принимать ванну.

О выставке «Малоэтажная страна»

«Малоэтажная страна» — постоянная выставка, которая на двух площадках — Белая дача и Алтуфьево в Московском регионе.

В отличие от другой популярной площадки Open Village, в которой по окончании выставочных мероприятий коттеджи с участками продают, и они становятся частью жилых малоэтажных кварталов, «Малоэтажная страна» — постоянная экспозиция, и дома на ней посетители могут примерять на себя круглый год.

Моне 60 расположен на выставочной площадке Алтуфьево (Московская область, 84-й км МКАД, участок № 2).

Автор текста — Наталья Щеглова