Добавить в корзинуПозвонить
Найти в Дзене
SloyArch

Двухуровневый пентхаус в Kazakov Grand Loft — личный оазис посреди мегаполиса

По классике, начнём сразу с планировки: изначально застройщик предлагает одноуровневую планировку в апартаменте с потолками 5+ метров. Мы достаточно долго обсуждали с заказчиком варианты, проработали не менее 6-ти разных и остановились на текущем: Классные фотки вида на второй свет спрятала в конце :) Подробное видео про систему "Умный дом" на данном объекте мы сняли видео: Этот пентхаус — не просто жильё, а тщательно продуманная сцена для жизни, где каждый метр подчинён ритму владельца. Мы разделили его на два мира: первый этаж — динамичное утилитарное пространство с кухней-гостиной и функциональными зонами, а второй — приватный мастер-блок, скрытый от посторонних глаз. Владелец — настоящий гурман и страстный кулинар, поэтому сердце дома — просторная кухня, где всё создано для экспериментов и вдохновения. Но кулинария — не единственная его страсть. Музыка занимает не меньше места в жизни, чем готовка. Для сложного звукового оборудования мы предусмотрели специальные зоны, а для коллек

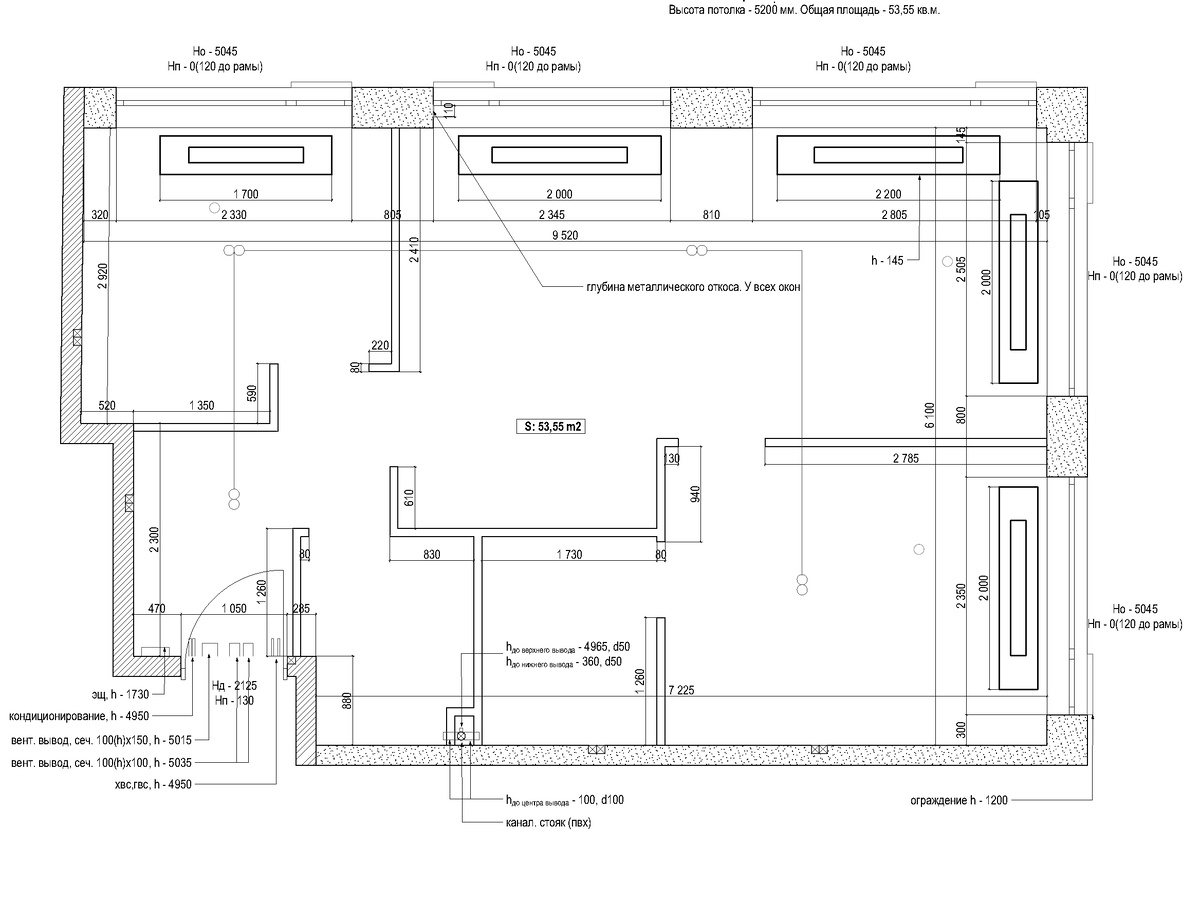
По классике, начнём сразу с планировки: изначально застройщик предлагает одноуровневую планировку в апартаменте с потолками 5+ метров. Мы достаточно долго обсуждали с заказчиком варианты, проработали не менее 6-ти разных и остановились на текущем:

Планировка от застройшика
Планировка от застройшика
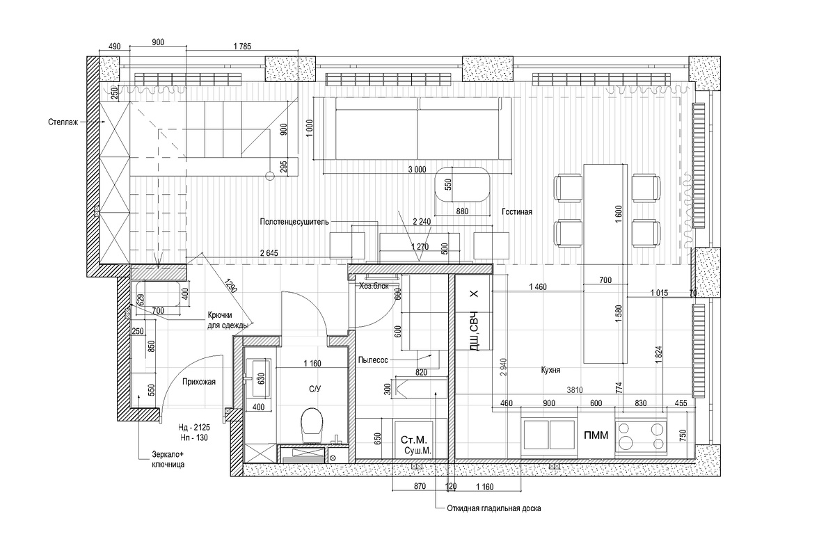
Итоговая планировка 1й этаж
Итоговая планировка 1й этаж

Классные фотки вида на второй свет спрятала в конце :)

Итоговая планировка 2й этаж
Итоговая планировка 2й этаж

Подробное видео про систему "Умный дом" на данном объекте мы сняли видео:

Этот пентхаус — не просто жильё, а тщательно продуманная сцена для жизни, где каждый метр подчинён ритму владельца. Мы разделили его на два мира: первый этаж — динамичное утилитарное пространство с кухней-гостиной и функциональными зонами, а второй — приватный мастер-блок, скрытый от посторонних глаз.

Первое, что видят посетители с порога
Первое, что видят посетители с порога

Владелец — настоящий гурман и страстный кулинар, поэтому сердце дома — просторная кухня, где всё создано для экспериментов и вдохновения. Но кулинария — не единственная его страсть. Музыка занимает не меньше места в жизни, чем готовка. Для сложного звукового оборудования мы предусмотрели специальные зоны, а для коллекции винила и артефактов со всего мира — стеллаж высотой во всё пространство апартамента, с ячейками, спроектированными под каждый предмет.

Кухня с островом
Кухня с островом
Обеденный стол, интегрированный в функциональный остров
Обеденный стол, интегрированный в функциональный остров

Особая история — лестница на второй уровень. Здесь был строгий запрет на стекло, поэтому мы создали конструкцию из металла и глухих элементов, сочетая их с тёплым шпоном. Лестница кажется парящей, но при этом дарит чувство надёжности и уюта.

Лестница на второй этаж
Лестница на второй этаж
Зона гостиной
Зона гостиной

Интерьер выстроен на природных сочетаниях камня и дерева. Это не случайно — апартамент задумывался как тихая гавань, место ментального восстановления после суеты мегаполиса. Например, в спальне нет телевизора и мультимедиа — только пространство для сна и восстановления сил.

Мастер спальная - зона релакса
Мастер спальная - зона релакса
Классный светильник - струна на потолке
Классный светильник - струна на потолке

Технологичность проекта — ещё одна его грань. Система «Умный дом» здесь интегрирована глубоко и незаметно: освещение, климат, безопасность и бытовой комфорт управляются сценариями. Датчики температуры, влажности, движения и света позволяют дому самому «подстраиваться» под ритм хозяина: подавать свежий воздух, регулировать поток солнечного света, поддерживать идеальную температуру. Всё это скрыто за фасадом уюта — даже два серверных шкафа для оборудования спрятаны от глаз.

Один из шкафов спрятан в зеркальном кубе в гардеробе на фото ниже:

Зеркальный шкаф-куб, прячущий внутри себя серверное оборудование
Зеркальный шкаф-куб, прячущий внутри себя серверное оборудование

Этот пентхаус — пример того, как можно соединить эстетику, функциональность и технологии, создав пространство, которое работает на своего владельца и вдохновляет его каждый день.

Вид со второго этажа на зону гостиной
Вид со второго этажа на зону гостиной
Вид на лестницу при спуске вниз
Вид на лестницу при спуске вниз

Санузлы - отдельный кайф. Каждый обладает своими уникальными фишками:

Световое полотно над душевой с равномерным диммируемым свечением
Световое полотно над душевой с равномерным диммируемым свечением
Обилие шпона и камня даже в гостевом санузле - дарит атмосферу уюта и комфорта
Обилие шпона и камня даже в гостевом санузле - дарит атмосферу уюта и комфорта

О студии

На нашем сайте у каждого реализованного проекта есть возможность сравнить проектные рендеры, разработанные на этапе проектирования и итоговые фото. Таким образом можно увидеть на сколько точно были реализованы согласованные с заказчиками идеи будущего интерьера.

Мы работаем с жилыми и коммерческими объектами (квартиры, дома, общепит, офисные помещения, техцентры)

В нашей команде все специалисты имеют архитектурное или инженерное образование.

Автор проекта

Лили Кайсарова - архитектор дизайнер
Лили Кайсарова - архитектор дизайнер