Добавить в корзинуПозвонить
Найти в Дзене

Как построить дом по цене студии?

Вашему вниманию мы представляем ,примерный вид интерьера проекта Дом-Студия будущего: вертикальная экспансия пространства.
Это не просто студия — это умный, компактный дом, где каждый сантиметр работает на комфорт, а жизнь разворачивается не вширь, а вверх. Можно использовать материнский капитал, не влезая в ипотеку и еще получить налоговый вычет. Умная свобода:
компактный дом студия со вторым светом и панорамой.
Встречайте дом, где каждый метр работает на вас!
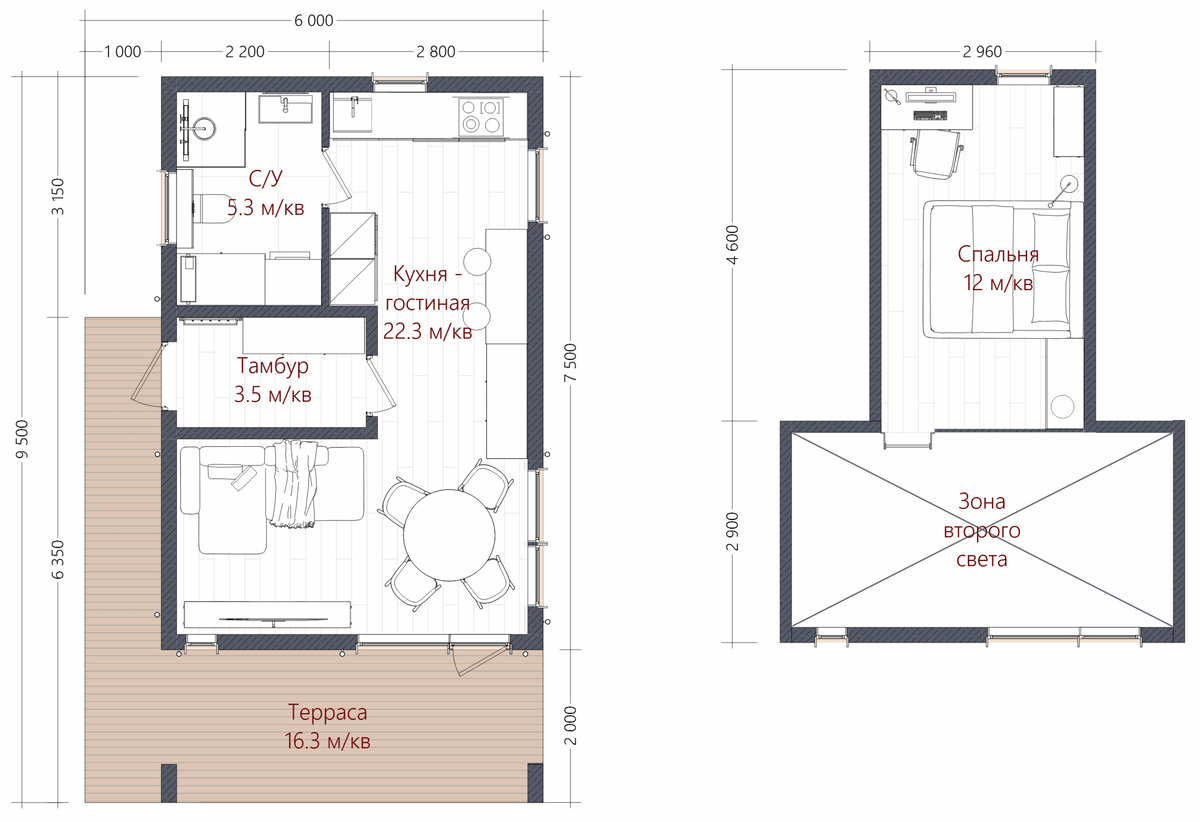
Studia 1 — Мастер-класс умного планирования. Несмотря на компактность, он поражает ощущением простора благодаря зоне второго света которая удваивает пространство. Почему это круто? Экономия места без ущерба
для удобства.
Визуальный простор благодаря вертикальному зонированию.
Гибкость - антресоль может быть спальней, кабинетом или зоной отдыха.
Studia 2 Представьте дом, где жилое пространство растет вверх, а вширь.
Этот умный дом-студия, воплощение современной компактной жизни с размахом.
Дополнение проекта — уютная антресоль,
Оглавление

Вашему вниманию мы представляем ,примерный вид интерьера проекта Дом-Студия будущего: вертикальная экспансия пространства.
Это не просто студия — это умный, компактный дом, где каждый сантиметр работает на комфорт, а жизнь разворачивается не вширь, а вверх. Можно использовать материнский капитал, не влезая в ипотеку и еще получить налоговый вычет.

Studia 1

Умная свобода:
компактный дом студия со вторым светом и панорамой.

Встречайте дом, где каждый метр работает на вас!
Studia 1 — Мастер-класс умного планирования. Несмотря на компактность, он поражает ощущением простора благодаря зоне второго света которая удваивает пространство.

Почему это круто?

Экономия места без ущерба
для удобства.
Визуальный простор благодаря вертикальному зонированию.
Гибкость - антресоль может быть спальней, кабинетом или зоной отдыха.

Studia 2

Представьте дом, где жилое пространство растет вверх, а вширь.
Этот умный дом-студия, воплощение современной компактной жизни с размахом.
Дополнение проекта — уютная антресоль, парящая над светлым пространством.
Идеально для 1-2 людей, или как стильный гостевой дом.

Studia 3

Забудьте об ограничениях!
Добро пожаловать в уникальное пространство свободы.
Площадь 70м2 — это не просто студия, а настоящий воздушный дом.
На удобной антресоли, куда ведет стильная лестница, обустроена уютная спальная зона или тихий кабинет — ваше личное пространство над суетой. Этот дом — гимн свободе и комфорту.

пишите нам https://t.me/artbookhouse