Найти в Дзене
Андрей Калькин

Рехау Intelio премиальная ПВХ система 80 мм

Рехау Intelio является базовой ПВХ системой для ассортиментной части линейки профилей компании Rehau, с системной глубиной 80 мм. Понятие «базовая» система условное и введено нами для удобства и более понятной навигации по ассортиментной линейке продукции компании Рехау. Наиболее частно применяемые ПВХ системы разделены компанией Рехау на группы по системной глубине (расстоянию от внешнего вертикального фальца до внутреннего). Сегодня различают основные группы систем с глубиной 60, 70 и 80 мм. В каждой группе есть системы, включающие в себя набор основных оконных профилей (рама, створка и импост), а также системы, в состав которых, помимо основных, входят также и дверные профили. Системы с дверными профилями мы называем «базовыми». Рассмотрим технические характеристики, состав, особенности и попробуем выяснить наиболее походящую область применения ПВХ профилей Рехау Intelio. Набор технических характеристик для премиальной системы от известного бренда не может быть скромным. Приведенный
Оглавление
Рехау Интелио 80
Рехау Интелио 80

Рехау Intelio является базовой ПВХ системой для ассортиментной части линейки профилей компании Rehau, с системной глубиной 80 мм. Понятие «базовая» система условное и введено нами для удобства и более понятной навигации по ассортиментной линейке продукции компании Рехау.

Наиболее частно применяемые ПВХ системы разделены компанией Рехау на группы по системной глубине (расстоянию от внешнего вертикального фальца до внутреннего). Сегодня различают основные группы систем с глубиной 60, 70 и 80 мм.

В каждой группе есть системы, включающие в себя набор основных оконных профилей (рама, створка и импост), а также системы, в состав которых, помимо основных, входят также и дверные профили. Системы с дверными профилями мы называем «базовыми».

Рассмотрим технические характеристики, состав, особенности и попробуем выяснить наиболее походящую область применения ПВХ профилей Рехау Intelio.

Технические характеристики

Набор технических характеристик для премиальной системы от известного бренда не может быть скромным. Приведенный ниже список параметров наглядно иллюстрирует это утверждение:

основная пара профилей (рама-створка) системы Рехау Intelio 80
основная пара профилей (рама-створка) системы Рехау Intelio 80
  1. Материал RAU-PVC без содержания кадмия (стабилизаторы кальций-цинк);
  2. Системная глубина – 80 мм;
  3. Количество камер (воздушных) – 6 (шесть);
  4. Уплотнения – 2 контура (EPDM RAU-SR черный/серый, RAU-SIK белый);
  5. Армирование 2 типов: рама/импост – 35 х 20 мм, створка – 35 х 28 мм;
  6. Зазор под наплавом – 3,5 мм;
  7. Притвор асимметричный – 6 мм снаружи и 8 мм внутри (для створки двери Т притвор симметричный 8 мм);
  8. Цветовые исполнения: Основа - Белый, коричневый, серый (возможно ламинирование по стандартной технологии);
  9. Возможная ширина устанавливаемого заполнения – до 50 мм;
  10. Сопротивление теплопередаче – 0,98 кв.м.град.С/Вт (с армированием);
  11. Звукоизоляция – до 40 дБ (А);
  12. Сопротивление ветровой нагрузке – до класса «А» (по ГОСТ 23166-99);
  13. Сопротивление водопроницанию и воздухопроницанию – до класса «А» (по ГОСТ 23166-99);
  14. Морозостойкость – исполнение по ГОСТ 23166-99;
  15. Взломобезопасность – возможна установка усиленных приборов запирания;
  16. Долговечность – не менее 60 условных лет эксплуатации.

Приведенные параметры системы Рехау Intelio нельзя назвать «скромными» или «рядовыми». Система заслуженно занимает верхние позиции в ассортиментной линейке оконных ПВХ систем, выпускаемых компанией Рехау.

Основные особенности системы Рехау Intelio

Главной особенностью системы является её глубина 80 мм. Именно глубина, позволяет получить выдающиеся характеристики и делает систему «Премиальной». Все остальные особенности система получает за счет высокого «класса» и огромного опыта компании Рехау:

  • Высокие показатели тепло- и звуко- изоляции получены за счет применения качественных уплотнений, возможности установки заполнения до 50 мм, высокой точности производства и технически грамотной конструкции;
  • Визуальная завершенность системы и возможность применения различных вариантов створок. В состав системы входит сворка с закругленными гранями (см. состав системы);
  • Универсальность системы Рехау Intelio. Получена за счет тщательной технической проработки на уровне инженерного проектирования и приверженности стандартам компании. Высокий уровень универсальности позволяет минимизировать складские издержки и широко использовать уплотнения, армирование, системы дополнительных и вспомогательных профилей различных систем, производимых Рехау.

Состав системы Intelio от Рехау

Как мы уже отмечали, системы «Интелио» является «базовой» для линейки ПВХ профилей с глубиной 80 мм. Это значит, что в состав системы входят помимо оконных профилей, также профили для входных дверей внутреннего и наружного открывания.

Посмотрим на основные профили (рама-створка-импост) внимательнее:

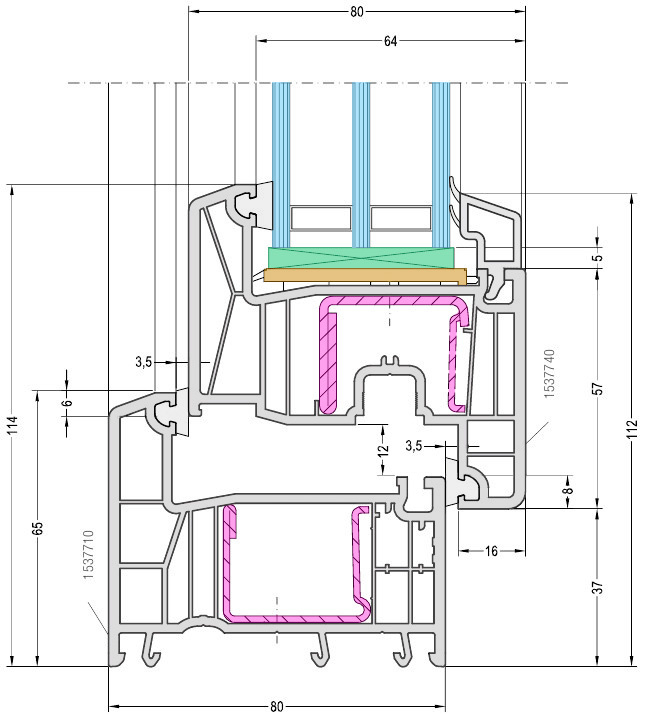
Основные профили системы Рехау Интелио 80 (рама, створка, импост)
Основные профили системы Рехау Интелио 80 (рама, створка, импост)

На разрезах основных профилей видно, что профили построены по классической схеме. Камеры расположены примерно симметрично, что обеспечивает хороший температурный баланс. Для крепления армирования и элементов фурнитуры достаточно направляющих и дополнительных полок.

Отметим, что в составе системы присутствуют 2 (две) рамы. Артикулы 1537710 и 1537700. Отличаются рамы высотой – арт. 1537710 – высота 65 мм по внешнему фальцу, арт. 1537700 – высота 58 мм по внешнему фальцу. Внутреннее строение обеих рам идентичное. «Низкая» рама бывает очень полезной в ситуации, когда проем высокого качества и существует возможность организовать устройство монтажного шва «по ГОСТу». Это позволяет даже получить небольшую экономию.

Рамы (коробки) системы Рехау Интелио 80
Рамы (коробки) системы Рехау Интелио 80

Створки в система Рехау Intelio также стоит отметить. Помимо «классической» формы с прямыми фальцами и плавными закруглениями Z57 (арт. 1537740), в составе системы есть «дизайнерская» створка R57 (арт. 1537750), с более округлыми формами:

Створки системы Рехау Интелио 80
Створки системы Рехау Интелио 80

Створка R57 считается «полусмещенной» так как её ширина 94 мм. Помимо эстетических преимуществ, увеличенная «глубина» створки повышает её тепло- и звуко- изоляционные характеристики. Для регионов с большим количеством осадков, такая створка подойдет также очень хорошо, так как внешний фальц создает дополнительную преграду для внешних осадков.

Стоит отметить и створки для входных дверей. В системе присутствует створка для дверей с открыванием внутрь помещения Z-створка (арт. 1567810) и створка для дверей с наружным открыванием T-створка (арт. 1567820). Створки добротные, 5-ти камерные, с достаточным количеством внутренних перегородок.

Дверные створки системы Рехау Интелио 80
Дверные створки системы Рехау Интелио 80

В рамках данного обзора мы не будем приводить срезы всех профилей, входящих в систему. Представленные нами сечения вполне позволяют составить впечатление о внутреннем строении основных профилей. Отметим, что в системе присутствует штульп (арт. 1537800), набор комплектующих для сборки дверей, а также набор для сборки порогов.

Посмотреть описание, полную техническую документацию и сечения профилей ПВХ системы Рехау Intelio можно на официальном сайте компании Рехау или на вкладках:

Стоимость окон Рехау Intelio

Любой разговор о профильной системе будет неполным, если не обсудить цены. Сколько стоят окна из премиальной системы Рехау? Давайте посчитаем и сравним.

Как обычно, рассчитаем «стандартный набор ПВХ конструкций» из профилей Рехау Интелио и сравним его с другими профильными системами Рехау.

Стандартный набор ПВХ конструкций для расчетов и сравнения
Стандартный набор ПВХ конструкций для расчетов и сравнения

** Представлены данные по ценам на профильные системы Рхау на июль 2025 года.

Сравнение стоимости Рехау Интелио с другими системами Рехау
Сравнение стоимости Рехау Интелио с другими системами Рехау

В таблице представлены данные сравнения стоимости системы Intelio с другими актуальными системами Рехау.

Для удобства, представим данные в виде диаграмм

Диаграмма сравнения стоимости Рехау Интелио с другими системами
Диаграмма сравнения стоимости Рехау Интелио с другими системами
Диаграмма стоимости ПВХ систем Рехау по возрастанию цены в рублях
Диаграмма стоимости ПВХ систем Рехау по возрастанию цены в рублях

Преимущества системы Рехау Intelio

Перечисление преимуществ системы класса «Премиум» всегда сводится к перечислению превосходных эпитетов. Мы не будем подробно описывать все нюансы системы и переводить их в разряд уникальных отличий. Остановимся только на тех, которые мы считаем самыми важными:

  • Система обладает действительно превосходными данными по тепло и звуко изоляции. Это позволяет применять её в самых разных ситуациях. Она одинаково хорошо подойдет для замены окон в городской квартире, офисе или загородном коттедже;
  • Превосходное качество поверхностей, строгий классический дизайн, дополненный Дизайнерской створкой R57, позволит вписать систему Intelio в любой интерьер. Набор цветных основ (белый, коричневый и серый) в сочетании с возможностью ламинирования в любой цвет, предлагаемый поставщиками покрытий для каширования, делает эстетические возможности системы Intelio еще более широкими;
  • Универсальность системы и возможность применения дополнительных и вспомогательных профилей производимых Рехау, позволяет значительно экономить на издержках и расширяет возможности по конструированию и производству сложных форм;
  • Доступность системы. Система поставляется с производства в России, локальным поставщиком. Это делает систему доступной и независимой от внешних факторов, как экономических, так и политических.

У системы «Интелио» есть и другие преимущества, на которых мы не будем заострять внимание в рамках данного обзора.

Недостатки системы Rehau Intelio

К недостаткам системы можно условно отнести её относительно высокую стоимость. Но, как мы много раз отмечали, премиальная система от известного производителя не может стоить дешево. Приведенная выше сравнительная таблица и диаграммы показывают, что ближайшие системы Рехау 70 мм GRAZIO и DeLight дешевле на 18% и 11% соответственно.

Много это или мало? На этот вопрос каждый может ответить сам. Стоят ли «качество» и «технические параметры» тех средств, который придется добавить к заказу?

Выводы

1. Премиальная ПВХ система Рехау Intelio обладает превосходным набором технических характеристик, позволяющим применять её для решения самого широкого круга задач;
2. Система «Интелио» доступна с Российского склада, универсальна в применении и сочетается с большинством вспомогательных и дополнительных профилей, выпускаемых компанией Rehau.