Добавить в корзинуПозвонить
Найти в Дзене

Дизайн проект студии

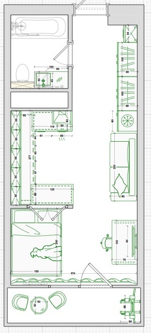
Перед нами стояла амбициозная задача — создать дизайн-проект для компактной студии площадью 27 м², учитывая все пожелания молодой семьи. Мы стремились сделать каждый квадратный метр функциональным и удобным. Пожелания заказчика: Особенности планировки: Решение: Мы предложили клиенту более десятка вариантов планировок. Эта планировка с зонированием спальни стеной создает уютное пространство для сна и отдыха. Светлое окно добавляет комнате естественности и тепла. Основные элементы: Преимущества планировки: Недостатки: * Сложное восприятие пространства.
* Отсутствие четких визуальных границ между зонами создает ощущение перегруженности.
* Неудобная зона для приема пищи.
* Удлиненный коридор.
* Углы занимают много полезного пространства, которое можно было бы использовать более эффективно.
* Мало свободного пространства и воздуха.
* Открытая зона готовки.
Преимущества: * Перегородка зонирует спальню:
* Увеличенная рабочая поверхность на кухне:
* Удобный проход на балкон и большая раб
Оглавление

Проект студии в Реутове, 27 м²: Уютное пространство для молодой семьи с котиком

Перед нами стояла амбициозная задача — создать дизайн-проект для компактной студии площадью 27 м², учитывая все пожелания молодой семьи. Мы стремились сделать каждый квадратный метр функциональным и удобным.

Пожелания заказчика:

  • Рабочее место.
  • Двуспальная кровать.
  • Полноценная кухня со встроенной техникой.
  • Достаточное место для хранения.
  • Разделение зон.

Особенности планировки:

  • Компактность и функциональность.
  • Многофункциональная мебель.
  • Четкое зонирование.

Решение: Мы предложили клиенту более десятка вариантов планировок.

-2

Рассмотрим один из них.

Эта планировка с зонированием спальни стеной создает уютное пространство для сна и отдыха. Светлое окно добавляет комнате естественности и тепла.

-3
Современный дизайн интерьера. Это просто.

Основные элементы:

  • Зона сна: Двуспальная кровать у стены обеспечивает максимальный комфорт.
  • Рабочая зона: Приставной стол легко переносится, что позволяет организовать рабочее место в любом углу студии. Стул или кресло можно перемещать, создавая удобное место для работы.
  • Кухня: П-образная кухня, вмещая всю необходимую технику и рабочую поверхность. Встроенный холодильник помогает поддерживать порядок.
  • Зона отдыха и хранения: Диван создает уютное место для отдыха.
-4

Преимущества планировки:

  • Зонирование: Четкое разделение на зоны для работы, сна и отдыха.
  • Функциональность: Мебель выполняет несколько функций, экономя пространство.
  • Освещенность: Окно в спальне делает комнату светлой и уютной.
  • Удобство: Возможность переноса мебели позволяет адаптировать пространство под нужды семьи.
-5

Недостатки:

* Сложное восприятие пространства.
* Отсутствие четких визуальных границ между зонами создает ощущение перегруженности.
* Неудобная зона для приема пищи.
* Удлиненный коридор.
* Углы занимают много полезного пространства, которое можно было бы использовать более эффективно.
* Мало свободного пространства и воздуха.
* Открытая зона готовки.

-6
Современный дизайн интерьера. Это просто.

Преимущества:

* Перегородка зонирует спальню:
* Увеличенная рабочая поверхность на кухне:
* Удобный проход на балкон и большая рабочая зона:

-7

Заключение

Предложенная планировка студии в Реутове идеально подходит для молодой семьи с котиком. Грамотное зонирование и современные решения создают комфортное и функциональное пространство, которое радует своих владельцев.

Но мы не остановились на достигнутом. Вам интересны другие варианты? Пишите в комментариях и мы обязательно все их рассмотрим.

Современный дизайн интерьера. Это просто.

Если вас интересуют другие варианты планировок или у вас есть пожелания, мы всегда готовы помочь и предложить лучшее решение для вашего интерьера!