Добавить в корзинуПозвонить
Найти в Дзене
ЖК Новая Ведуга

Уникальный шанс создать дом мечты уже сегодня!

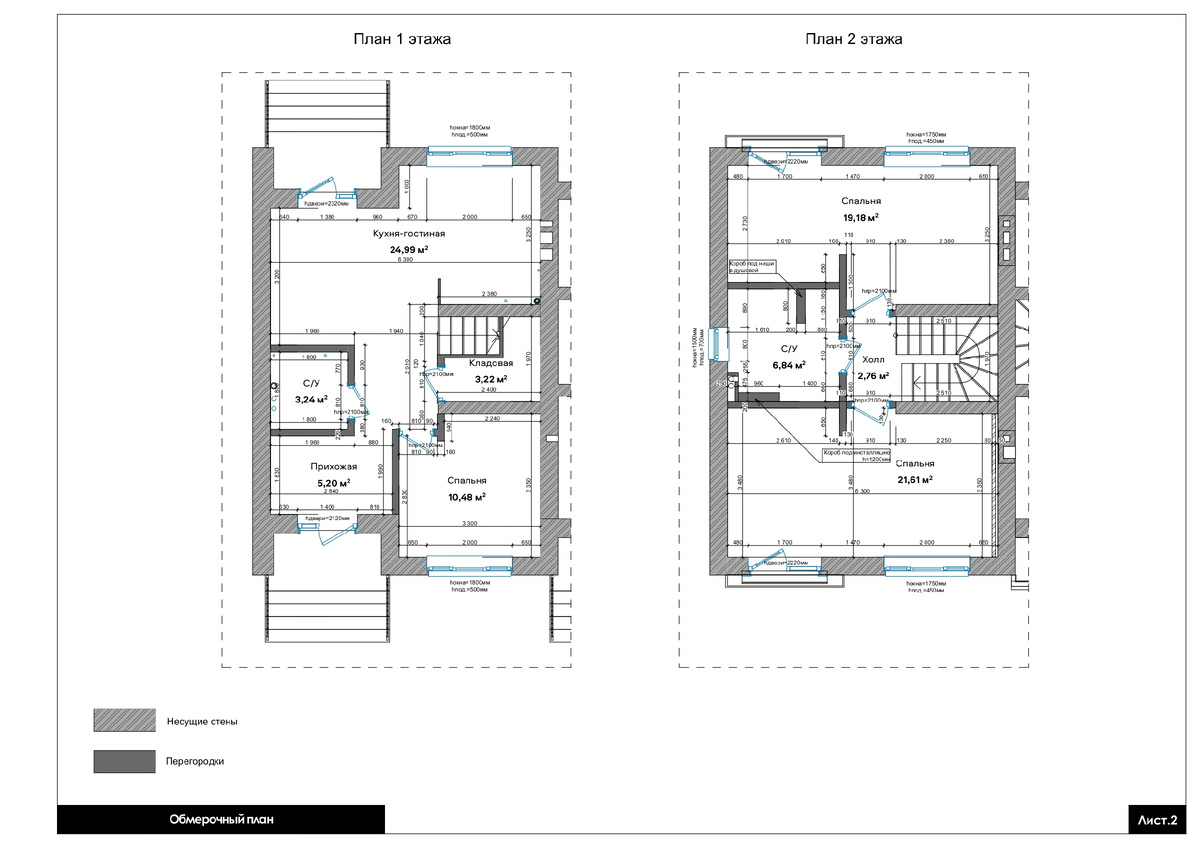
Представляем вашему вниманию потрясающий подарок от нашей команды — эксклюзивный буклет с профессиональными дизайн-проектами интерьеров специально разработанный для каждого таунхауса в первой очереди квартала «Яблоневый» 🏡 Этот стильный и информативный буклет станет вашим путеводителем по созданию идеального пространства жизни. Внутри вас ждут: ✓ Подробный обмерочный план ✓ Идеальные варианты размещения мебели и сантехнических приборов ✓ Оптимальное расположение всех необходимых коммуникаций: розетки, выключатели, освещение, климатическое оборудование ✓ Планирование потолков, напольного покрытия ✓ План расположения дверей и плинтусов И самое интересное — в финале буклета вас ждёт вдохновляющая визуализация завершённого интерьера, позволяющая представить своё будущее жилище во всей красоте! Посмотрите прикрепленный образец дизайна и убедитесь сами, насколько ваш будущий дом может стать уютным и комфортным местом вашей жизни. Получите этот удивительный подарок прямо сейчас и воплотите

Представляем вашему вниманию потрясающий подарок от нашей команды — эксклюзивный буклет с профессиональными дизайн-проектами интерьеров специально разработанный для каждого таунхауса в первой очереди квартала «Яблоневый» 🏡

Этот стильный и информативный буклет станет вашим путеводителем по созданию идеального пространства жизни. Внутри вас ждут:

✓ Подробный обмерочный план

✓ Идеальные варианты размещения мебели и сантехнических приборов

✓ Оптимальное расположение всех необходимых коммуникаций: розетки, выключатели, освещение, климатическое оборудование

✓ Планирование потолков, напольного покрытия

✓ План расположения дверей и плинтусов

И самое интересное — в финале буклета вас ждёт вдохновляющая визуализация завершённого интерьера, позволяющая представить своё будущее жилище во всей красоте!

Посмотрите прикрепленный образец дизайна и убедитесь сами, насколько ваш будущий дом может стать уютным и комфортным местом вашей жизни.

Получите этот удивительный подарок прямо сейчас и воплотите мечту о собственном доме, которым захочется гордиться каждый день!🏠

Подробности по 📞 телефону: +7 (473) 280-08-44

Сайт: https://www.otdel-prodazh.ru/projects/zhiloy-kompleks-novaya-veduga