Добавить в корзинуПозвонить
Найти в Дзене
SloyArch

Мост в Китай - офис логистической компании

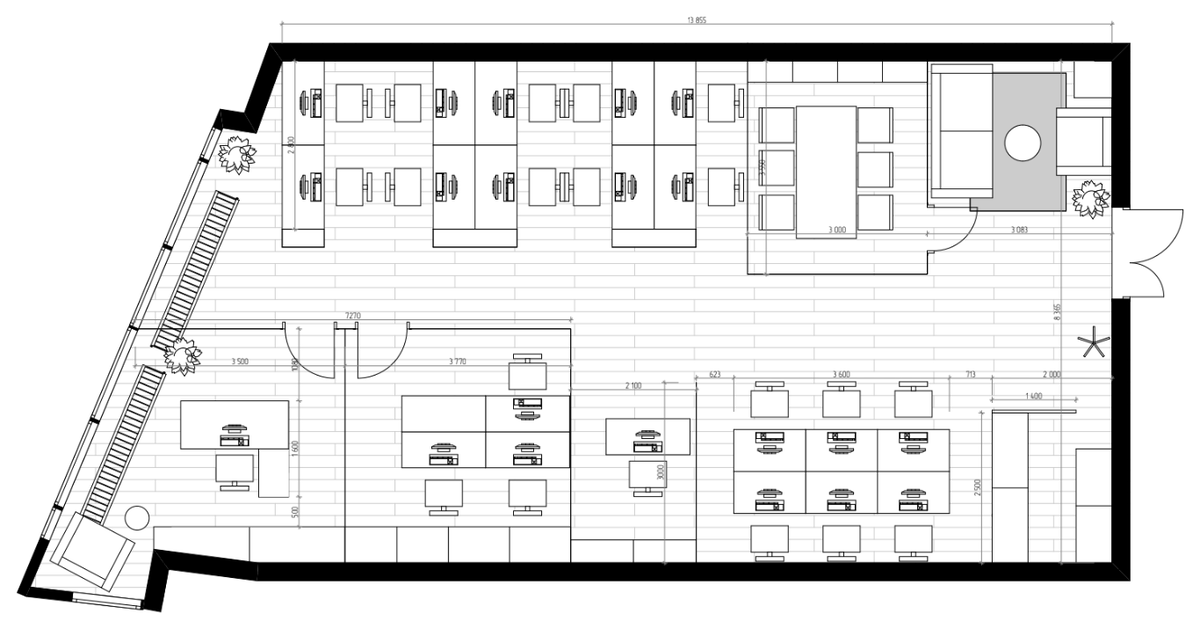
Офис молодой, но бурно развивающейся компании, которая организует логистику товаров из Китая. Мы пообщались с основателем и их идейным вдохновителем, были впечатлены его философией, что постарались отразить в настроении интерьера. Планировка Помещение имело чистовую отделку, по форме напоминает прямоугольную трапецию. Стояла задача разместить офис руководителя у окна, а также предусмотреть доступ дневного света в опен-спейс для работников. Также из ТЗ обязательно: Основное настроение У нас было чистовое помещение с готовыми полом, реечным потолком и зелеными стенами,а также, электроточками и кондиционерами. Так что планировка разрабатывалась с учетом всех существующих инженерных коммуникаций. Задача — создать комфортное пространство для команды из 20 человек с зонированием. Для этого мы выбрали стеклянные перегородки. Такое решение сохраняет свет и открытость, при этом, матовые вставки дают достаточную степень приватности. Перекрасили стены в стильный оттенок серого и заказали всю

Офис молодой, но бурно развивающейся компании, которая организует логистику товаров из Китая. Мы пообщались с основателем и их идейным вдохновителем, были впечатлены его философией, что постарались отразить в настроении интерьера.

Планировка

Помещение имело чистовую отделку, по форме напоминает прямоугольную трапецию. Стояла задача разместить офис руководителя у окна, а также предусмотреть доступ дневного света в опен-спейс для работников.

Также из ТЗ обязательно:

  • закрытый кабинет на 3-4 рабочих стола
  • переговорная
  • раздевалка
  • зона ожидания для гостей
  • одно обособленное рабочее место
  • минимум 20 рабочих мест

Площадь офиса - 135 м2
Площадь офиса - 135 м2

Основное настроение

У нас было чистовое помещение с готовыми полом, реечным потолком и зелеными стенами,а также, электроточками и кондиционерами. Так что планировка разрабатывалась с учетом всех существующих инженерных коммуникаций.

Задача — создать комфортное пространство для команды из 20 человек с зонированием.

Для этого мы выбрали стеклянные перегородки. Такое решение сохраняет свет и открытость, при этом, матовые вставки дают достаточную степень приватности.

Стеклянные перегородки сохранили свет и пространство
Стеклянные перегородки сохранили свет и пространство

Перекрасили стены в стильный оттенок серого и заказали всю мебель, кроме столов, по индивидуальному проекту в студии Bottegro (Нижний Новгород).

В итоге получилось: кабинет для директора, индивидуальная зона для небольшой команды из 3-4 человек, переговорная, уютная зона отдыха и, конечно, просторный опен-спейс.

Кабинет директора
Кабинет директора
Индивидуальная зона для команды 3-4 человек
Индивидуальная зона для команды 3-4 человек
Переговорная
Переговорная

Для сотрудников мы также предусмотрели гардероб и кофе-точку за рельефным стеклом

Гардероб и кофе-поинт за стеклянной перегородкой
Гардероб и кофе-поинт за стеклянной перегородкой

Основные цвета - корпоративный апельсиновый цвет, который символизирует в Китайской культуре изобилие и богатство, серый и чёрные детали. Акцентом выступает обилие зелени.

Из интересных элементов - декоративные «лестницы в небеса» обозначающие путь к духовному росту, самосовершенствованию и успеху.

"Лестницы в небо"
"Лестницы в небо"

Сложность заключалась в том, чтобы вписаться в уже существующие ограничения. Нам пришлось учитывать расположение кондиционеров, грамотно распределять их применение, также было не просто установить несущие конструкции для перегородок из-за реечного потолка, некоторые напольные розетки пришлось заложить кварц-винилом, так как они выпадали под перегородки.

Кондиционеры и реечный потолок пришлось оставить на местах, планировка делалась с учетом их расположения.
Кондиционеры и реечный потолок пришлось оставить на местах, планировка делалась с учетом их расположения.
Зона ожидания для клиентов
Зона ожидания для клиентов
Кабинет директора
Кабинет директора

О студии

На нашем сайте у каждого реализованного проекта есть возможность сравнить проектные рендеры, разработанные на этапе проектирования и итоговые фото. Таким образом можно увидеть на сколько точно были реализованы согласованные с заказчиками идеи будущего интерьера.

Мы работаем с жилыми и коммерческими объектами (квартиры, дома, общепит, офисные помещения, техцентры)

В нашей команде все специалисты имеют архитектурное или инженерное образование.

Автор проекта

Лили Кайсарова - архитектор дизайнер
Лили Кайсарова - архитектор дизайнер