Найти в Дзене
Ingenium Corp.

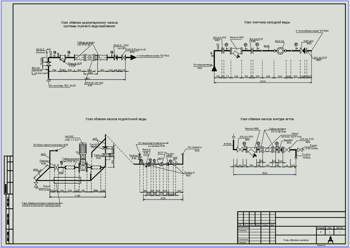
Узлы обвязки насосов

Обвязка насоса представляет собой комплекс трубопроводов, арматуры и контрольно-измерительных приборов, обеспечивающих корректную работу системы водоснабжения. · Обратный клапан с фильтром грубой очистки - устанавливается первым на всасывающей трубе для защиты от попадания крупных частиц и предотвращения обратного тока воды · Запорная арматура - монтируется на входе в насос для возможности обслуживания без отключения всей системы · Вибровставки - компенсируют вибрацию и несоосность элементов системы · Гидроаккумулятор - основной элемент для поддержания стабильного давления в системе · Реле давления - управляет работой насоса в зависимости от давления в системе · Манометр - для контроля давления в системе · Запорная арматура на выходе насоса Рекомендуется устанавливать гидроаккумулятор фланцем вверх по следующим причинам: · Равномерное распределение нагрузки на мембрану · Минимизация образования конденсата · Защита мембраны от контакта со стенками бака · Удобство обслуживания и замены м
Оглавление

Основные элементы обвязки

Обвязка насоса представляет собой комплекс трубопроводов, арматуры и контрольно-измерительных приборов, обеспечивающих корректную работу системы водоснабжения.

Всасывающая линия

· Обратный клапан с фильтром грубой очистки - устанавливается первым на всасывающей трубе для защиты от попадания крупных частиц и предотвращения обратного тока воды

· Запорная арматура - монтируется на входе в насос для возможности обслуживания без отключения всей системы

· Вибровставки - компенсируют вибрацию и несоосность элементов системы

Напорная линия

· Гидроаккумулятор - основной элемент для поддержания стабильного давления в системе

· Реле давления - управляет работой насоса в зависимости от давления в системе

· Манометр - для контроля давления в системе

· Запорная арматура на выходе насоса

Особенности монтажа гидроаккумулятора

Рекомендуется устанавливать гидроаккумулятор фланцем вверх по следующим причинам:

· Равномерное распределение нагрузки на мембрану

· Минимизация образования конденсата

· Защита мембраны от контакта со стенками бака

· Удобство обслуживания и замены мембраны

Дополнительные элементы

· Система рециркуляции - для поддержания подпора воды на подаче

· Тройники и переходники - для подключения различных элементов системы

· Уплотнительные элементы из NBR70 для герметизации соединений

Рекомендации по монтажу

· Все соединения должны быть тщательно герметизированы

· Необходимо обеспечить доступ к основным узлам для обслуживания

· При монтаже следует учитывать возможность замены отдельных элементов без демонтажа всей системы

· Важно соблюдать рекомендуемые скорости потока во всасывающей линии

Правильная обвязка насоса обеспечивает:

· Надежную работу системы водоснабжения

· Защиту оборудования от аварийных ситуаций

· Возможность удобного обслуживания

· Энергоэффективность работы всей системы

Формат – AutoCAD 2010. #Схема

👉 Скачать файл "Узлы обвязки насосов" – ЯндексДиск –

👇Подписчики получают больше материалов: закрытые посты, обновления каждую неделю!👇