Найти в Дзене
ДОМ с умом

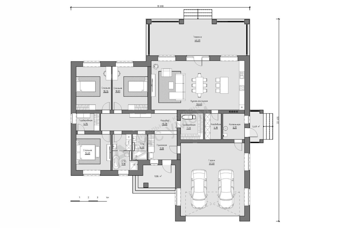
Проект "Миранда"

Оглавление

Это одноэтажный дом в стиле Шале для семьи из четырех человек. Проект удачно сочетает стильный внешний вид с рациональным использованием пространства, создавая комфортные условия для жизни. Большие свесы крыши защищают террасу от осадков, а продуманная планировка делает дом удобным для повседневного быта.

Характеристики:

Общая площадь: 277,4 кв.м
Жилая площадь: 231,2 кв.м
Габариты: 19,9 х 22,5 м
Фундамент: забивные сваи и монолитный ростверк
Стены: керамзитобетонный блок 390 мм, утеплитель - 100 мм
Отделка фасада: кирпич
Чердачное перекрытие в спальной зоне и гараже - по деревянным балкам, в кухне-гостиной - по стропильной системе
Крыша - из металлочерепицы по деревянной стропильной системе

Планировка:

Центральным помещением дома стала кухня-гостиная со вторым светом - высокие потолки и большие окна наполняют пространство воздухом и естественным освещением. Из гостиной можно выйти на просторную террасу, которая будет дополнительным местом для отдыха в теплое время года. В жилой зоне расположены три спальни, включая главную с собственной ванной и гардеробной комнатой. Практичная сторона дома включает гардеробную у входа, кладовую, котельную и гаражное помещение.

-2

▪️▪️▪️▪️▪️▪️▪️▪️▪️▪️▪️▪️▪️▪️▪️▪️▪️▪️▪️▪️▪️▪️▪️▪️▪️▪️▪️▪️▪️▪️▪️▪️▪️

📌Жилая площадь – 231,2 кв.м
📌Кухня-гостиная – 56,4 кв.м
📌Спальни – 3 шт.
📌Терраса – 46,6 кв.м
📌Гараж - на 2 авто