Добавить в корзинуПозвонить
Найти в Дзене
Филдс

Доступный люкс в трешке 75 м²: монохром, который не выглядит скучно

Дизайнер Анна Саитова оформила трехкомнатную квартиру 75 м² для семейной пары с ребенком. Нейтральные тона в отделке и лаконичные формы мебели позволили создать «дорогой» интерьер без лишнего визуального шума. Из-за венткоробов и несущей стены между кухней-гостиной и прихожей возможности для перепланировки были ограничены. Тем не менее, чтобы оптимизировать пространство и хранение, предусмотрели изолированную гардеробную, а также немного сдвинули проемы в кухне и спальне. Несмотря на то, что интерьер кухни-гостиной преимущественно монохромный, он не выглядит скучно благодаря игре на различии тонов. Также разнообразить картинку помогают выразительные темные элементы, в том числе осветительные приборы и столешница. В отделке скомбинировали краску и керамогранит в зоне кухни. Гарнитур расположили П-образно. Разграничить функциональные зоны помогла барная стойка, а также подвесы над ней. Светлые фасады сочетали с деревянными, что добавило уюта. В комнате поставили компактный раскладно
Оглавление

Дизайнер Анна Саитова оформила трехкомнатную квартиру 75 м² для семейной пары с ребенком. Нейтральные тона в отделке и лаконичные формы мебели позволили создать «дорогой» интерьер без лишнего визуального шума.

  • Общая площадь: 75 м²
  • Место: Колпино (Санкт-Петербург)
  • Тип дома: ЖК «Астрид»
  • Количество комнат: 3
  • Высота потолка: 2,6 м
  • Бюджет: 4,5 млн рублей
  • Кто здесь живет: семейная пара с ребенком
  • Дизайнер: Анна Саитова
  • Фото: Андрей Шишов

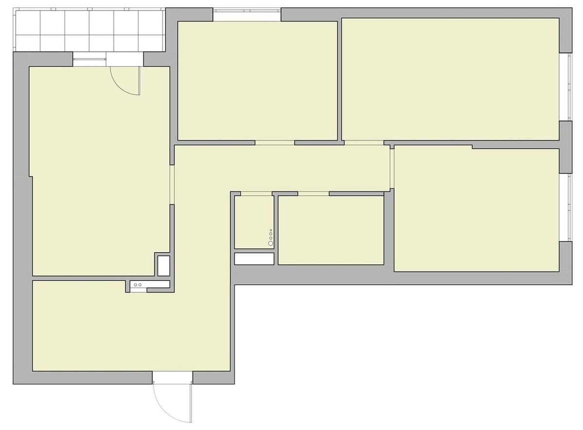
Планировка до и после

Из-за венткоробов и несущей стены между кухней-гостиной и прихожей возможности для перепланировки были ограничены. Тем не менее, чтобы оптимизировать пространство и хранение, предусмотрели изолированную гардеробную, а также немного сдвинули проемы в кухне и спальне.

Кухня-гостиная

Несмотря на то, что интерьер кухни-гостиной преимущественно монохромный, он не выглядит скучно благодаря игре на различии тонов. Также разнообразить картинку помогают выразительные темные элементы, в том числе осветительные приборы и столешница. В отделке скомбинировали краску и керамогранит в зоне кухни.

Гарнитур расположили П-образно. Разграничить функциональные зоны помогла барная стойка, а также подвесы над ней. Светлые фасады сочетали с деревянными, что добавило уюта.

В комнате поставили компактный раскладной диван. Хотя в квартире предусмотрели изолированное спальное место в гостиной, он также может выступать в роли дополнительного.

-4

Спальня

Благодаря переносу дверного проема в комнате удалось расположить двуспальную кровать параллельно окну. Вместо традиционных прикроватных тумб установили два стеллажа, развернутых в сторону изголовья. В них сделали скрытые дополнительные места для хранения.

Рельефное панно из гипсокартона с подсветкой изготовили на заказ по эскизам дизайнера. Графичный силуэт перекликается с принтом на одной из декоративных подушек.

В изножье запланировали подвесную тумбу во всю стену. Она одновременно выступает в роли туалетного столика и комода.

Гостиная

В гостиной не стали отступать от общей выбранной стилистики. Но привычную отделку разнообразили включением деревянных реек. Центром притяжения стал большой бескаркасный диван. Мебельную конструкцию напротив него изготовили по эскизам дизайнера.

Детская

На фоне остальных помещений настроение детской отличается. Светлое цветовое решение разбавили акцентной стеной в рабочей зоне. Чтобы не терять полезное пространство, предусмотрели единую мебельную конструкцию, которая обрамляет окно и плавно переходит в рабочий стол.

Прихожая

Чтобы не затемнять удаленную от окон прихожую, в отделке использовали преимущественно светлые тона. На визуальное расширение пространства работает большое зеркало. Из мебели поставили только обувницу и небольшой пуф. Основное хранение организовали в гардеробной.

-10

Ванная

В отделке ванной сочетали два вида керамогранита: под камень и дерево. Качественные имитации природных материалов позволяет интерьеру выглядеть дорого, а черные детали добавляют графичности. Помимо основного освещения, предусмотрели подвес у раковины. Также выбрали зеркало с подсветкой.

Санузел облицевали той же плиткой, которую использовали на фартуке в кухне, чтобы подчеркнуть единый стиль всей квартиры. Визуально дробить компактное помещение разными видами отделки не стали.

-12

Интересные мнения в комментариях приветствуются. Если материал понравился — ставь лайк!

🖤 Филдс — это не только блог на Дзене, но и магазин дизайнерской мебели. Заходите на сайт, чтобы увидеть предметы интерьера, которые дизайнеры выбирают для своих проектов.