Найти в Дзене
KPD Дизайн Интерьера

📝 Ремонт без плана — +30–50% времени

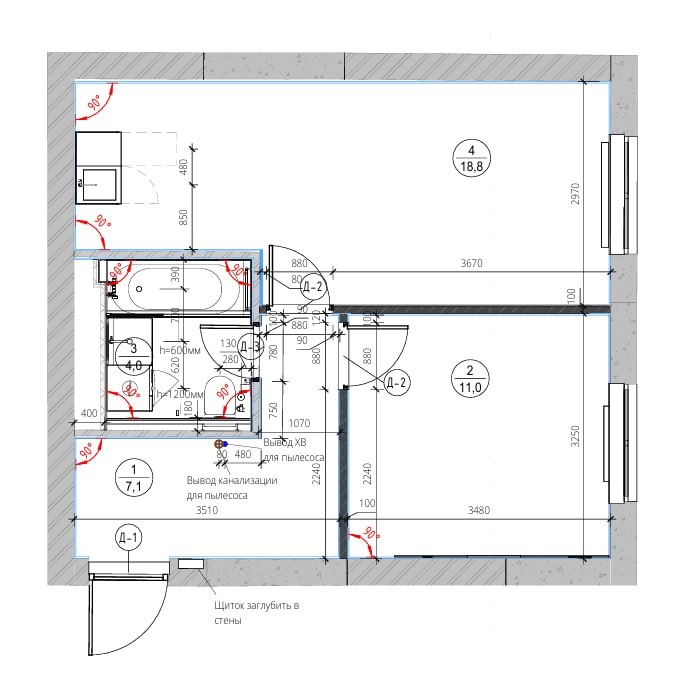
📝 Ремонт без плана — +30–50% времени! Начать ремонт «на глазок» – значит почти наверняка затянуть сроки на месяцы. Без детального проекта перепланировки бригада то простаивает в ожидании решений, то переделывает ошибки. Вспомните соседей, которые «на пару месяцев» съехали на время ремонта и вернулись только через полгода 😅. Почему так случилось? Потому что не было грамотного плана. Смарт-планировка устраняет хаос: заранее продумываем каждую перегородку, каждый сантиметр. Результат – ремонт идёт по графику, без лишних переделок и трат. Узнаем, как работает этот approach и почему он экономит и время, и бюджет 💡 👉 А вы сталкивались с затянувшимся ремонтом из-за плохого планирования? Поделитесь опытом в комментариях! #ремонт #планирование #проблемы Подробнее об услуге тут. #услуги Трости и гвозди

📝 Ремонт без плана — +30–50% времени!

Начать ремонт «на глазок» – значит почти наверняка затянуть сроки на месяцы. Без детального проекта перепланировки бригада то простаивает в ожидании решений, то переделывает ошибки. Вспомните соседей, которые «на пару месяцев» съехали на время ремонта и вернулись только через полгода 😅. Почему так случилось? Потому что не было грамотного плана. Смарт-планировка устраняет хаос: заранее продумываем каждую перегородку, каждый сантиметр. Результат – ремонт идёт по графику, без лишних переделок и трат. Узнаем, как работает этот approach и почему он экономит и время, и бюджет 💡

👉 А вы сталкивались с затянувшимся ремонтом из-за плохого планирования? Поделитесь опытом в комментариях!

#ремонт #планирование #проблемы

Подробнее об услуге тут.

#услуги

Трости и гвозди

-2