Найти в Дзене
YarNews

В Ярославле утвержден проект планировки 16-ти и 17-тиэтажек

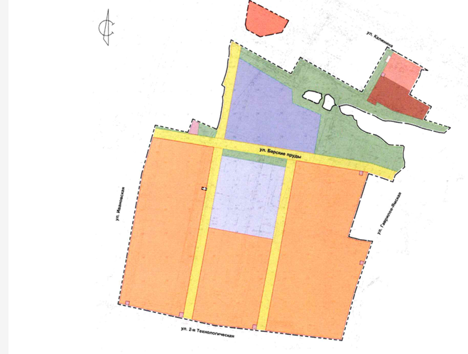
Постановление мэрии подписано 23 июля. Документ утверждает проект планировки и межевания двух несмежных территорий в районе улицы Калинина под комплексное развитие. Как водится, здесь хотят провести масштабное жилищное строительство. Так в районе улицы Калинина планируется одна 17-тиэтажка. На территории, ограниченной улицами Гаврилов-Ямская, Ивановская и Вторая Технологическая предполагается строить жилые дома в 12-ть и 16-ть этажей. Это самый большой участок в 13 га. Отдельно участок, выделяемый под КРТ, предполагает наличие зон жилой застройки с 5-тью и 7-мью этажными домами. Общая площадь застройки составит более 54 тысячи квадратных метров, на выходе будет возведено более 188 тысяч квадратных метров жилья. Планируемое население нового квартала — 7543 человека. В проекте планировки обозначена одна новая школа на 1050 мест и два детских сада по 280 мест каждый. Внутри территории собираются сформировать три новые улицы. Две из них названия не имеют, третья будет называться «улица Бар

Постановление мэрии подписано 23 июля.

Документ утверждает проект планировки и межевания двух несмежных территорий в районе улицы Калинина под комплексное развитие. Как водится, здесь хотят провести масштабное жилищное строительство. Так в районе улицы Калинина планируется одна 17-тиэтажка. На территории, ограниченной улицами Гаврилов-Ямская, Ивановская и Вторая Технологическая предполагается строить жилые дома в 12-ть и 16-ть этажей. Это самый большой участок в 13 га.

Отдельно участок, выделяемый под КРТ, предполагает наличие зон жилой застройки с 5-тью и 7-мью этажными домами. Общая площадь застройки составит более 54 тысячи квадратных метров, на выходе будет возведено более 188 тысяч квадратных метров жилья. Планируемое население нового квартала — 7543 человека. В проекте планировки обозначена одна новая школа на 1050 мест и два детских сада по 280 мест каждый. Внутри территории собираются сформировать три новые улицы. Две из них названия не имеют, третья будет называться «улица Барские пруды».

Застройщик территории известен. В мае 2025 года мэрия Ярославля заключила с АО «Специализированный застройщик «Ярославльзаказчик» договор о комплексном развитии территорий по инициативе правообладателя земельных участков.