Добавить в корзинуПозвонить
Найти в Дзене
ПСК "Градиент"

Каркасный дом: стильный и функциональный проект 109 м²

Выбирая дом своей мечты, многие отдают предпочтение каркасным домам это экологично, быстро и экономично. Сегодня мы предлагаем вашему вниманию уникальный проект одноэтажного каркасного дома с общей площадью 109,14 м², который сочетает в себе эргономичную планировку и современную отделку фасадов. Отделка фасада выполнена светло-бежевым сайдингом, что придаёт дому теплый и уютный вид. Контрастные обрамления окон и углов дома подчеркивают стиль и аккуратность дизайна. А теперь о планировке. Дом точно не будет казаться скучным - здесь очень интересное планировочное решение: 1. Крыльцо (3,00 м²) и два тамбура (3,65 и 3,56 м²), что обеспечивает удобство входа и дополнительную защиту от холода. 2. Два гардероба по 3,75 и 3,56 м² - идеальное решение для хранения одежды и вещей. 3. Два санузла (3,75 и 4,95 м²) поспособствуют удобству большой семьи или приёму гостей. 4. Просторная кухня-гостиная площадью 26,57 м² и вторая кухня-гостиная 22,57 м² - отличное место для семейных ужинов и приёма друз

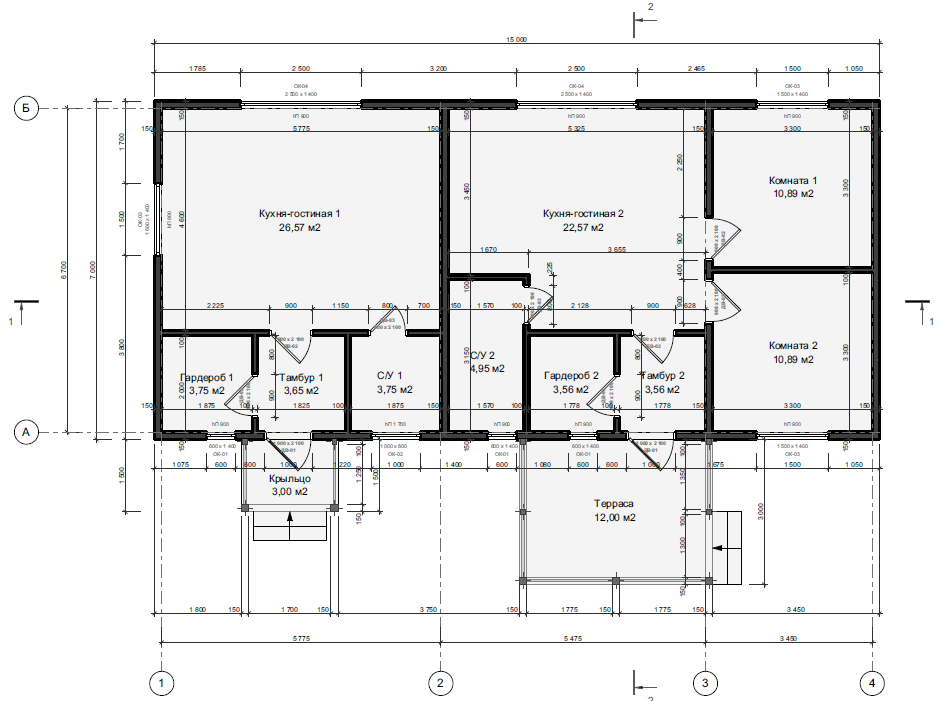
Выбирая дом своей мечты, многие отдают предпочтение каркасным домам это экологично, быстро и экономично. Сегодня мы предлагаем вашему вниманию уникальный проект одноэтажного каркасного дома с общей площадью 109,14 м², который сочетает в себе эргономичную планировку и современную отделку фасадов.

Отделка фасада выполнена светло-бежевым сайдингом, что придаёт дому теплый и уютный вид. Контрастные обрамления окон и углов дома подчеркивают стиль и аккуратность дизайна.

А теперь о планировке. Дом точно не будет казаться скучным - здесь очень интересное планировочное решение:

-2

1. Крыльцо (3,00 м²) и два тамбура (3,65 и 3,56 м²), что обеспечивает удобство входа и дополнительную защиту от холода.

2. Два гардероба по 3,75 и 3,56 м² - идеальное решение для хранения одежды и вещей.

3. Два санузла (3,75 и 4,95 м²) поспособствуют удобству большой семьи или приёму гостей.

4. Просторная кухня-гостиная площадью 26,57 м² и вторая кухня-гостиная 22,57 м² - отличное место для семейных ужинов и приёма друзей.

5. Две уютные комнаты по 10,89 м², которые можно оборудовать как спальни, кабинеты или детские.

6. Терраса 12,00 м² станет любимым уголком для отдыха на свежем воздухе.

Общая площадь дома 109,14 м² - достаточно компактна для удобного обслуживания и в то же время предлагает комфорт и простоту зонирования. Этот проект понравится тем, кто ценит светлые, тёплые оттенки и продуманные пространства для жизни.

Преимущества каркасного строительства

Почему стоит выбрать именно этот тип дома?

  • Быстрое возведение
  • Экономичность строительства
  • Энергоэффективность
  • Возможность реализации на любом участке
  • Долговечность конструкции

Если вы хотите построить каркасный дом, который легко адаптируется к любым вашим желаниям в отделке и планировке этот проект именно для вас. Он не только экономит время и бюджет, но и позволяет создавать уютное гнездышко для всей семьи.


Подписывайтесь на наш канал ПСК Градиент, чтобы получать больше интересных проектов и полезных советов по строительству.