Найти в Дзене
ЭТО ВАШ ИНТЕРЬЕР

«Я ненавидела этот ремонт!» Как в старой «хрущевке» 51 м² сотворила светлый и уютный дом мечты — что изменилось на самом деле? Делюсь опытом

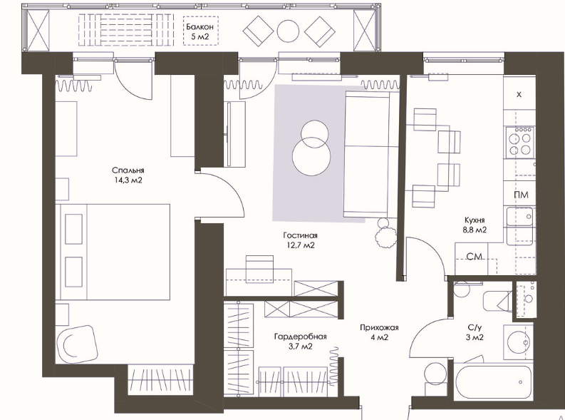
Когда молодая и энергичная пара получила в наследство квартиру с почти советским ремонтом, они решили не откладывать перемены в долгий ящик. Их жилище — типичная «хрущёвка» площадью 51 квадратный метр — долгое время оставалась устаревшим и неудобным пространством, требовавшим свежего взгляда и грамотного подхода. На помощь пришла дизайнер Анастасия Хмелевская, которой доверили непростую задачу: превратить маленькое, старое жильё в светлый, удобный и современный дом, сохранив при этом разумный бюджет. Первое, с чем столкнулась Анастасия, — сложная планировка и технические особенности дома. Одна из комнат была проходной, кухня обустроена под газ, санузлы раздельные. Основной вызов — несущая стена между гостиной и спальней, мешавшая полноценной перепланировке. Но даже в такой ситуации было найдено, к чему приложить руку: антресоли убрали, объединение ванны и туалета решило проблему тесноты, а нишу в гостиной грамотно превратили в компактную и вместительную гардеробную. В итоге интерьер пр
Оглавление

Когда молодая и энергичная пара получила в наследство квартиру с почти советским ремонтом, они решили не откладывать перемены в долгий ящик. Их жилище — типичная «хрущёвка» площадью 51 квадратный метр — долгое время оставалась устаревшим и неудобным пространством, требовавшим свежего взгляда и грамотного подхода. На помощь пришла дизайнер Анастасия Хмелевская, которой доверили непростую задачу: превратить маленькое, старое жильё в светлый, удобный и современный дом, сохранив при этом разумный бюджет.

Ограничения, которые стали стартовой точкой

Первое, с чем столкнулась Анастасия, — сложная планировка и технические особенности дома. Одна из комнат была проходной, кухня обустроена под газ, санузлы раздельные. Основной вызов — несущая стена между гостиной и спальней, мешавшая полноценной перепланировке. Но даже в такой ситуации было найдено, к чему приложить руку: антресоли убрали, объединение ванны и туалета решило проблему тесноты, а нишу в гостиной грамотно превратили в компактную и вместительную гардеробную.

-2

В итоге интерьер приобрёл не только стиль, но и логику: хранение вещей было систематизировано, а в гостиной появилась полноценная рабочая зона — то, что молодая пара давно мечтала получить.

ИКЕА как база для уникального интерьера

Поскольку хозяева работали с ограниченным бюджетом, выбор материалов и мебели был максимально продуман. Кухонный гарнитур был собран из модулей ИКЕА — всем знакомого, доступного и качественного производителя. Вместе с тем дизайнер пошла на смелость и заказала фасады верхних шкафов в ярком синим цвете — такая нестандартная деталь моментально оживила кухню, превратив её в центр притяжения.

Размеры гарнитура и техника — газовая плита, холодильник, небольшой духовой шкаф, компактная посудомойка и стиральная машина — были размещены с учётом особенностей коммуникаций. При этом кухня осталась максимально функциональной, не перегруженной и стильной.

-4

Цветовые решения — игра контрастов и теплоты

В интерьере дизайнер выбрала две основные палитры: теплый терракотовый и насыщенный синий. Этот дуэт помогает создать живую и эмоциональную атмосферу, наполненную уютом и динамикой. Терракота подчёркивает зону спальни — стены окрашены именно в этот оттенок, что согревает пространство и успокаивает после насыщенного дня.

-5

В гостиной же, напротив, доминирует светлая база с белыми стенами, что создаёт впечатление объёма и воздушности. Здесь яркий синий акцент — диван — становится центром притяжения. Его поддерживают ковры, текстильные элементы и аксессуары оттенков синего и голубого, создавая гармоничный ансамбль.

-6

Особое внимание заслуживает картина Ольги Шагиной, которая изящно вписалась в общий вид интерьера и привнесла художественную изюминку.

-7

Спор с неровностями стен: решение в деталях

Стены в квартире оказались крайне неровными, с многочисленными трещинами — выравнивание потребовало бы значительных затрат и времени. Чтобы обойти проблему и сохранить бюджет, дизайнер решила использовать обои под покраску.

Это оказалось не только экономично, но и практично: стену теперь можно обновлять без капитального ремонта. Выбор коричневато-бежевых оттенков обоев поддерживал тёплую атмосферу спальни и гостиной, а в кухне и санузле — светлая палитра с акцентами синего и белого.

Максимум комфорта в ограниченном пространстве: гардеробная и системы хранения

В гардеробной в гостиной собрались системы хранения из ИКЕА: встроенные стеллажи и модульные решения позволили разместить вещи и даже профессиональное снаряжение хозяина. Спальня содержит два вместительных шкафа: — для одежды, и — для мелочей и белья. Всё просчитано до сантиметра заранее — во время планировки учитывались габариты каждого элемента, чтобы избежать проблем при сборке и эксплуатации.

-10

Санузел: простор, стиль и неожиданные акценты

Объединённый санузел стал маленьким арт-объектом благодаря плитке испанского бренда Wow, которая имитирует терраццо — полированный камень с характерными разноцветными вкраплениями. Каждый элемент повторяет общую концепцию интерьера, соединяя синий и терракотовый цвета, создавая неповторимый арт-эффект. Плитка была аккуратно уложена на пол, ванну и стены, делая ванную яркой и динамичной.

-11

Отделка уникальной плиткой выступила контрастом на фоне классической белой керамики Kerama Marazzi, а практичные мебельные решения из ИКЕА — тумба под раковину и шкафчик — завершили образ.

-12

Тонкости и мелочи, которые создают удобство и красоту

Расположение бытовой техники, выбор натяжных потолков, инженерная доска на полу в комнатах — всё продумано так, чтобы облик и функциональность квартиры достигли гармонии. Важный нюанс — кухня с газовой плитой сохранила своё расположение у стояка, что избавило от необходимости сложных согласований и работ с коммуникациями.

-13

Такой подход позволил соблюсти все ограничения дома, оставаясь в рамках запланированного бюджета и сроков.

Итог: как советский ремонт превратился в современный дом мечты

Работа над проектом показала, что небольшая квартира в «хрущёвке» с устаревшей отделкой и строгими архитектурными ограничениями — не приговор. Грамотное планирование, правильный выбор материалов, смелые, но продуманные цветовые решения и уникальные акценты, словно яркие мазки художника, сделали интерьер не только функциональным, но и эмоционально насыщенным.

Теперь 51 квадратный метр жилья — не просто место для жизни, а настоящий дом, где каждому элементу находится своё место, а атмосфера вдохновляет и заряжает энергией.

Если хочешь лучше понимать себя и людей вокруг — загляни на канал моей подруги про психологию — «Путеводитель по себе». Там много полезного и интересного!
Жду звонка от детей? Нет, теперь я делаю так — 7 откровений пенсионерки, которая начала жить для себя
Путеводитель по себе22 июля 2025
"Мне без детей и мужа хорошо живется" — непревзойденная Рита Леви рассказала, как дожила до 104 лет без сожалений
Путеводитель по себе17 июля 2025
Только в 50 лет я поняла, почему умные люди хранят эти секреты — мудрость Омара Хайяма для меня открылась с другой стороны
Путеводитель по себе17 июля 2025