Найти в Дзене
Проектная мастерская №16

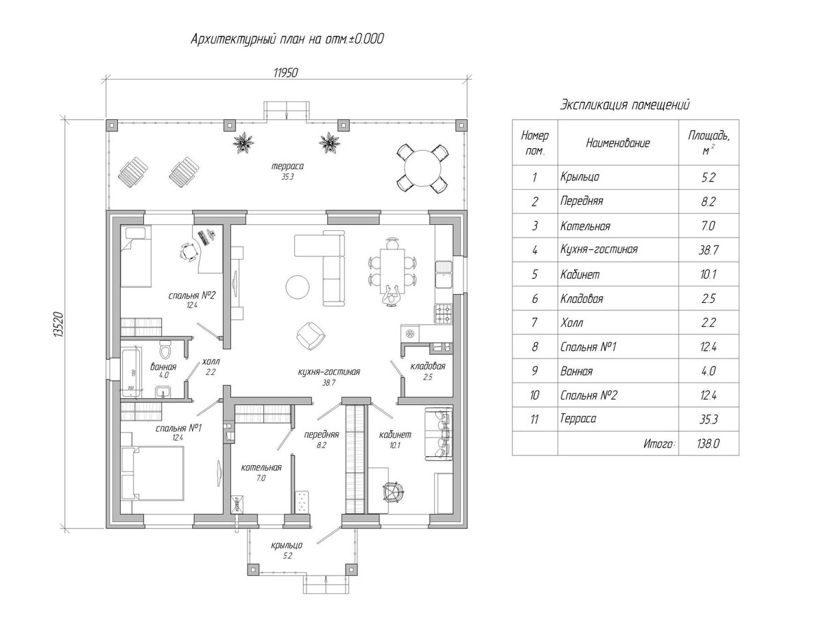
Планировка одноэтажного дома площадью 103кв.м. без корридоров

Солнечные дни начала августа привели меня на набережную р.Казанки, где теплым ветром волны накатывали на пирс, а иллюминация высоток противоположного берега уносила в забытый фильм 80-х, где под песню команды "Van Zant" -You've Got to Believe In Love от приятного волнения сжималось сердце. Между тем подготовлен проект дома в п.Большевик Московской области. Здесь три жилые комнаты, общее помещение, техническое помещение котельной, входная группа с открытым крыльцом и передней со встроенным шкафом купе. При кухне предусмотрена кладовая, а из зоны гостиной предусмотрен выход на просторную террасу площадью 35кв.м. Планировка решена без коридоров, так функциональная взаимосвязь помещений осуществляется через общее помещение площадью 39кв.м. Площадь дома без террасы 103кв.м., с террасой - 138кв.м. Стены дома решены трехслойными с облицовочным кирпичом формата 0.7НФ До скорой встречи, мой незнакомый подписчик!

Солнечные дни начала августа привели меня на набережную р.Казанки, где теплым ветром волны накатывали на пирс, а иллюминация высоток противоположного берега уносила в забытый фильм 80-х, где под песню команды "Van Zant" -You've Got to Believe In Love от приятного волнения сжималось сердце.

Между тем подготовлен проект дома в п.Большевик Московской области. Здесь три жилые комнаты, общее помещение, техническое помещение котельной, входная группа с открытым крыльцом и передней со встроенным шкафом купе. При кухне предусмотрена кладовая, а из зоны гостиной предусмотрен выход на просторную террасу площадью 35кв.м.

-2

Планировка решена без коридоров, так функциональная взаимосвязь помещений осуществляется через общее помещение площадью 39кв.м. Площадь дома без террасы 103кв.м., с террасой - 138кв.м. Стены дома решены трехслойными с облицовочным кирпичом формата 0.7НФ

До скорой встречи, мой незнакомый подписчик!