Добавить в корзинуПозвонить
Найти в Дзене
ПСК "Градиент"

Компактный проект дома 60 м2: дом для комфортной жизни

Современный тренд на компактное жилье набирает обороты. Многие семьи отказываются от огромных особняков в пользу уютных домов с продуманной планировкой. Сегодня мы расскажем о проекте, который идеально сочетает комфорт и функциональность на площади всего 60,27 м². Функциональные зоны проекта: Продуманная эргономика - каждый метр работает на комфорт жильцов. Особое внимание уделено: Практичность решения очевидна: Дизайнерские решения помогут максимально эффективно использовать каждый метр: Этот проект - прекрасное решение для тех, кто ценит: Подписывайтесь на наш канал ПСК Градиент, чтобы получать больше полезных советов по строительству и дизайну домов. Не забудьте поставить лайк, если проект заинтересовал вас. Делитесь в комментариях, какой дом мечты строите вы.
Оглавление

Почему стоит рассмотреть небольшой дом?

Современный тренд на компактное жилье набирает обороты. Многие семьи отказываются от огромных особняков в пользу уютных домов с продуманной планировкой. Сегодня мы расскажем о проекте, который идеально сочетает комфорт и функциональность на площади всего 60,27 м².

Преимущества проекта

  • Оптимальная площадь 60,27 м²
  • Удобная планировка для семьи из 3-4 человек
  • Экономичность строительства и эксплуатации
  • Продуманное зонирование пространства

Планировка дома

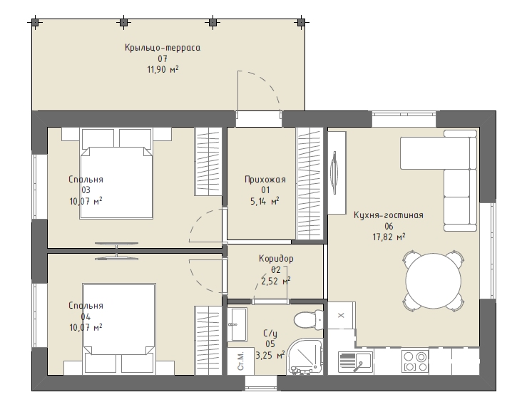
Функциональные зоны проекта:

  • Просторная кухня-гостиная 17,82 м² сердце дома, где собирается вся семья
  • Две уютные спальни по 10,07 м² каждая, отличное решение для родителей и детей
  • Современный санузел 3,25 м² - все необходимые удобства
  • Практичная прихожая 5,14 м² - место для хранения верхней одежды
  • Удобный коридор 2,52 м² - связующее звено между комнатами
  • Крыльцо-терраса 11,40 м² - дополнительное пространство для отдыха

-2

Особенности планировки

Продуманная эргономика - каждый метр работает на комфорт жильцов. Особое внимание уделено:

  • Естественному освещению всех помещений
  • Вентиляции и циркуляции воздуха
  • Шумоизоляции между комнатами
  • Удобству передвижения по дому

Почему этот проект стоит вашего внимания?

Практичность решения очевидна:

  • Меньшие затраты на строительство
  • Экономия на отоплении и обслуживании
  • Быстрое возведение
  • Возможность строительства на небольшом участке

Как организовать пространство?

Дизайнерские решения помогут максимально эффективно использовать каждый метр:

  • Многофункциональная мебель
  • Системы хранения в каждой комнате
  • Современные отделочные материалы
  • Умное освещение

Этот проект - прекрасное решение для тех, кто ценит:

  • Комфорт без излишеств
  • Практичность в каждом элементе
  • Экономичность строительства и эксплуатации
  • Функциональность планировки

Подписывайтесь на наш канал ПСК Градиент, чтобы получать больше полезных советов по строительству и дизайну домов.

Не забудьте поставить лайк, если проект заинтересовал вас. Делитесь в комментариях, какой дом мечты строите вы.

-4