Добавить в корзинуПозвонить
Найти в Дзене

Сколько стоит проект вентиляции — и почему экономить на нём нельзя

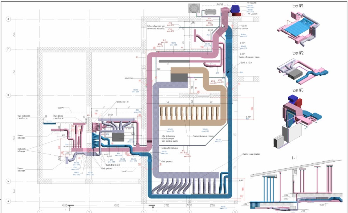
Вы когда-нибудь пытались собрать шкаф без инструкции? Вроде бы детали есть, винтики тоже, но в итоге — всё шатается, полки криво, и одну из них приходится крепить «на глаз». Примерно так же бывает с вентиляцией, если делать её без проекта: то душно, то сквозняк, то сырость, и ничего толком не работает. Проект вентиляции — это не формальность. Это продуманная система, по которой ваш дом или бизнес будет дышать. А как и любая интеллектуальная работа, проект стоит денег. Разбираемся, откуда берётся цена и почему экономия здесь может обернуться дорогостоящими переделками. Проект — это не просто «бумажка для галочки». Это технический план, на основе которого можно точно и грамотно смонтировать систему. В хорошем проекте вы получите: – Аэродинамический и теплотехнический расчёт
– Подбор подходящей системы: приточной, вытяжной, с рекуперацией и т.д.
– Расчёт воздухообмена в каждом помещении
– Схемы прокладки воздуховодов
– Подбор оборудования по мощности
– Ведомость материалов
– Планы
Оглавление

Сколько стоит проект вентиляции — и почему экономить на нём нельзя

Вы когда-нибудь пытались собрать шкаф без инструкции? Вроде бы детали есть, винтики тоже, но в итоге — всё шатается, полки криво, и одну из них приходится крепить «на глаз». Примерно так же бывает с вентиляцией, если делать её без проекта: то душно, то сквозняк, то сырость, и ничего толком не работает.

Проект вентиляции — это не формальность. Это продуманная система, по которой ваш дом или бизнес будет дышать. А как и любая интеллектуальная работа, проект стоит денег. Разбираемся, откуда берётся цена и почему экономия здесь может обернуться дорогостоящими переделками.

Что входит в проект вентиляции

Проект — это не просто «бумажка для галочки». Это технический план, на основе которого можно точно и грамотно смонтировать систему. В хорошем проекте вы получите:

– Аэродинамический и теплотехнический расчёт

– Подбор подходящей системы: приточной, вытяжной, с рекуперацией и т.д.

– Расчёт воздухообмена в каждом помещении

– Схемы прокладки воздуховодов

– Подбор оборудования по мощности

– Ведомость материалов

– Планы размещения решёток, воздуховодов, установок

– Пояснительная записка с расчётами

– Комплект чертежей: планы, узлы, разрезы

– Учёт других инженерных систем: отопления, кондиционирования, BMS

Если кто-то обещает сделать «проект за вечер», скорее всего, это будет просто набросок, не пригодный для нормального монтажа.

-2

От чего зависит стоимость

Фиксированной цены «за квадратный метр» здесь не существует. На стоимость влияют сразу несколько факторов.

Во-первых, тип объекта. Для квартиры и склада — одни требования, для ресторана или медицинского центра — совсем другие. Чем сложнее объект, тем дороже проект.

Во-вторых, площадь и архитектура. Больше помещений — больше расчётов, воздуховодов и деталей. А если в здании есть колонны, нестандартные потолки или перепады высот — проект усложняется технически.

В-третьих, назначение здания и нормативы. Для объектов с особыми условиями (спортивные залы, кафе, лаборатории) нужно строгое соблюдение СанПиН и требований безопасности. Это означает дополнительные расчёты и проверку оборудования.

Также влияет формат документации. Например, эскиз — это один уровень, а полноценная BIM-модель, готовая к согласованию и строительству, — совсем другой.

Срочные проекты стоят дороже, а если вентиляция проектируется вместе с отоплением или кондиционированием — это дороже, но часто выгоднее в долгосрочной перспективе.

Примерные цены на проект вентиляции

Чтобы понимать порядок цифр, вот ориентировочные расценки на 2025 год:

– Для квартиры или частного дома — от 300–500 рублей за м²

– Для офисов — от
400–800 рублей за м²

– Для ресторанов, фитнес-клубов, салонов — от
700–1 200 рублей за м²

– Для производственных помещений — от
800–1 500 рублей за м²

– Для складов и ангаров — от
500–900 рублей за м²

– Для медицинских или фармацевтических объектов — от
1 200 до 2 000 рублей за м²

Важно понимать: это лишь ориентиры. Точная стоимость формируется после анализа планировки, назначения помещений и технического задания.

-3

Как можно сэкономить — разумно

Есть несколько способов снизить стоимость проекта, не теряя в качестве:

– Составьте грамотное техническое задание

– Используйте типовые архитектурные решения, без сложных перепланировок

– Проектируйте вентиляцию одновременно с отоплением и кондиционированием

– Работайте с одной компанией «под ключ» — от проекта до монтажа

Так проектировщик не будет «гадать», а работать по фактам. Это ускоряет процесс и делает его дешевле.

Почему экономить на проектировании опасно

Желание сэкономить может обернуться проблемами уже во время монтажа или в первые месяцы эксплуатации.

Что может пойти не так:

– Ошибки в расчётах — и в помещениях душно, влажно или слишком шумно

– Завышенные объёмы воздуха — перерасход энергии и гудящие вентиляторы

– Плохое размещение оборудования — дорогое переделывание после монтажа

– Нарушение нормативов — штрафы, сложности с согласованием

– Отсутствие авторского надзора — и монтажники начинают «творить» на своё усмотрение

Переделка вентиляционной системы почти всегда дороже, чем сделать всё грамотно с первого раза.

Что вы получаете в итоге

Если проект сделан профессионально, вы получаете:

– Свежий, чистый воздух

– Энергоэффективную систему

– Точную смету и понятные чертежи

– Отсутствие проблем при монтаже

– Спокойствие: всё работает как нужно и без штрафов

Проект вентиляции — это не расход, это инвестиция в здоровье, комфорт и безопасность. Не стоит на нём экономить так же, как не стоит строить дом без фундамента.