Найти в Дзене

Каждый проект начинается с идеи, которая воплощается нами только через безупречные расчеты

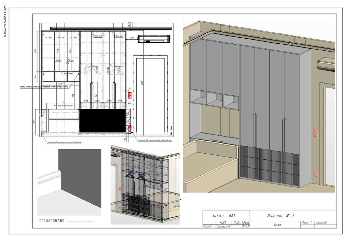
Каждый проект начинается с идеи, которая воплощается нами только через безупречные расчеты. Над проектом детского шкафа для ЖК «Событие» мы работали в тесном сотрудничестве с Анной Резинских, скрупулезно переводя её авторскую концепцию в точные инженерные решения. ❕Детская мебель — это не просто функциональность, это игра пропорций, безопасных материалов и продуманного до мелочей пространства. Наши конструкторы превратили визуализацию в точные чертежи, где учли все, даже самые мелкие детали. Это не просто техническая документация - это мост между идеей дизайнера и реальностью.

Каждый проект начинается с идеи, которая воплощается нами только через безупречные расчеты.

Над проектом детского шкафа для ЖК «Событие» мы работали в тесном сотрудничестве с Анной Резинских, скрупулезно переводя её авторскую концепцию в точные инженерные решения.

❕Детская мебель — это не просто функциональность, это игра пропорций, безопасных материалов и продуманного до мелочей пространства.

Наши конструкторы превратили визуализацию в точные чертежи, где учли все, даже самые мелкие детали.

Это не просто техническая документация - это мост между идеей дизайнера и реальностью.

-2
-3
-4
-5
-6