Добавить в корзинуПозвонить
Найти в Дзене

Всегда ли нужна тотальная перепланировка помещения?

Перепланировка помещения — это не всегда масштабные изменения. Да, во многих квартирах приходится сносить буквально всё, чтобы сделать квартиру удобной для заказчика, но бывают и проекты, где в целом исходная планировка квартиры вполне приемлемая и вносятся незначительные коррективы под потребности будущих жильцов. Хотим на примере одного проекта показать, как это выглядит в процессе. Вот такую планировку мы получили. На чертеже красным выделены те изменения, которые предстояло сделать. Такие изменения нам нужны были, чтобы установить двери нужной ширины в санузлах, а в гостиной совсем не нужен был угол перегородки в центральной части комнаты. Что получилось: По чертежу видно, что измененная перегородка в гостиной позволила уместить тумбу с телевизором, а в кухне за счет передвинутой стены мы комфортно разместили кухонные шкафы и плиту. Вот так аккуратно получилось: Re-Va design — воплощение индивидуальности в авторском дизайне интерьера. От замысла до реализации — создаём интерьер ме
Оглавление

Перепланировка помещения — это не всегда масштабные изменения. Да, во многих квартирах приходится сносить буквально всё, чтобы сделать квартиру удобной для заказчика, но бывают и проекты, где в целом исходная планировка квартиры вполне приемлемая и вносятся незначительные коррективы под потребности будущих жильцов.

Хотим на примере одного проекта показать, как это выглядит в процессе.

Нажмите для увеличения
Нажмите для увеличения

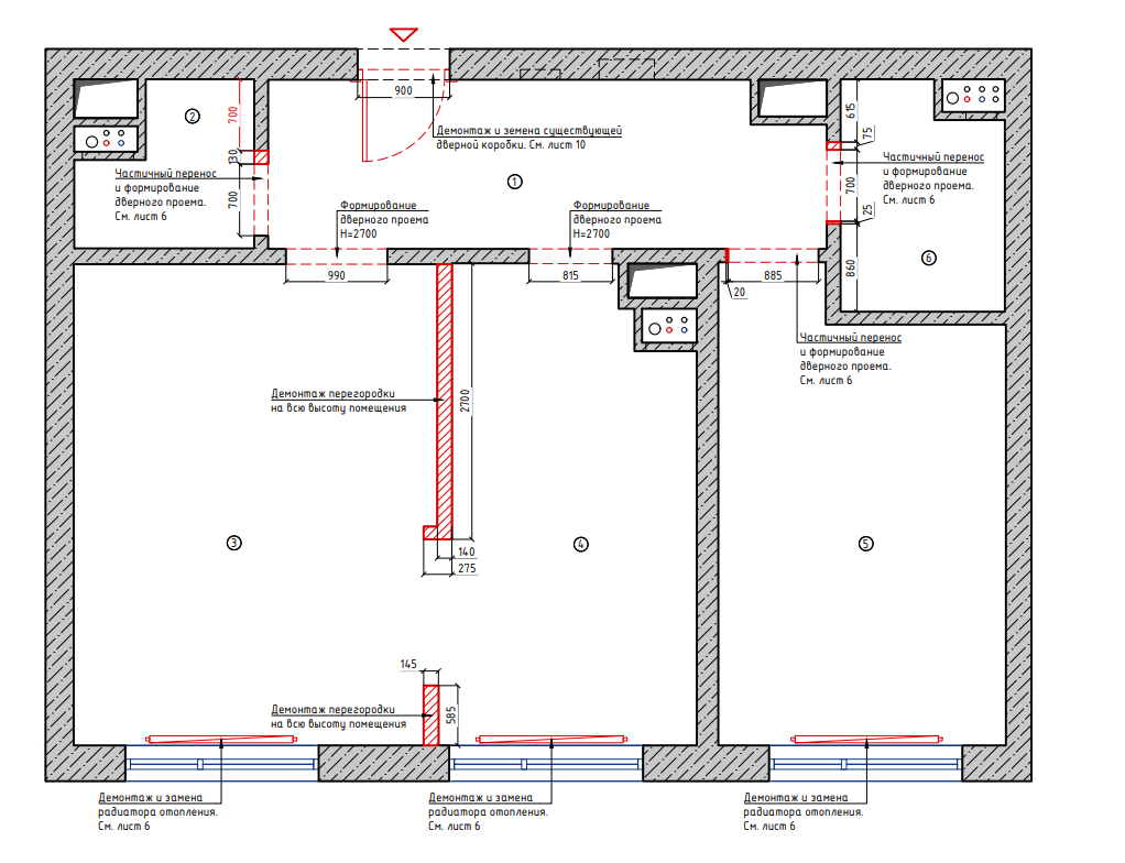
Вот такую планировку мы получили. На чертеже красным выделены те изменения, которые предстояло сделать.

  • Скорректировали ширину дверных проёмом в санузлах
  • Демонтировали перегородки между кухней и гостиной и возвели новые
  • Демонтировали радиаторы отопления и установили новые

Такие изменения нам нужны были, чтобы установить двери нужной ширины в санузлах, а в гостиной совсем не нужен был угол перегородки в центральной части комнаты.

Что получилось:

Нажмите для увеличения
Нажмите для увеличения

По чертежу видно, что измененная перегородка в гостиной позволила уместить тумбу с телевизором, а в кухне за счет передвинутой стены мы комфортно разместили кухонные шкафы и плиту.

Вот так аккуратно получилось:

-3
-4

Понравилась статья? Ставьте лайк!

Подписывайтесь на наш канал, приходите в гости в соцсетях!

Re-Va design — воплощение индивидуальности в авторском дизайне интерьера.

От замысла до реализации — создаём интерьер мечты с безупречной точностью!

— У нас работают только опытные и дипломированные дизайнеры, готовые воплощать в жизнь самые смелые решения
— Гарантируем на 100% реализацию ремонта по дизайн-проекту
— Авторский надзор
— Сопровождение ремонта
— Комплектация
Мы выполняем заказы самого высокого уровня сложности, за которые опасаются браться наши конкуренты, поэтому мы стабильно привлекаем большое количество как частных, так и корпоративных клиентов.

Наш сайт: https://re-va.ru/
RuTube: https://rutube.ru/channel/30271709/
Telegram: https://t.me/annareshetovaiam
VKontakte: https://vk.com/revadesign