Добавить в корзинуПозвонить
Найти в Дзене
Бери и Строй

Проект для сборки каркасного дома на 85м2

Добрый день! Сегодня на канале проект дома из деревянного каркаса на 85м2. Как видим на плане, тут у нас две спальни, санузел, техпомещение и кухня-гостиная. Высота стен без учета отделки 2,8м. В качестве фундамента заложены сваи на выбор ж/б забивные 150 или винтовые. Но внимательно подходите к выбора фундамента, возможно ваши грунты не предназначены для свай! Обвязка свай из пакета досок 50х200мм; Полы и потолок чердака под 200мм утепление из доски 50х200мм; Стены под 150мм утепление из доски 50х150мм; Стропила рассчитаны под 4 регион снеговой и ветровой из доски 50х150мм; Покрытие кровли металлочерепица или профлист. Скачивать https://boosty.to/karkasplan/posts/6fcdfdf0-882d-4d0a-b841-71dd705c08a0?share=success_publish_link Все удачного дня! Задавайте вопросы в комментариях.

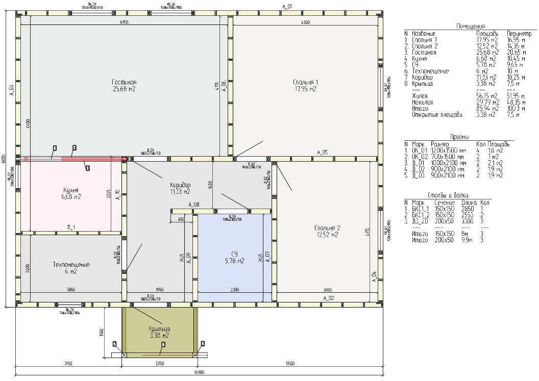
Добрый день! Сегодня на канале проект дома из деревянного каркаса на 85м2.

Каркасный дом одноэтажный
Каркасный дом одноэтажный

Как видим на плане, тут у нас две спальни, санузел, техпомещение и кухня-гостиная. Высота стен без учета отделки 2,8м.

В качестве фундамента заложены сваи на выбор ж/б забивные 150 или винтовые. Но внимательно подходите к выбора фундамента, возможно ваши грунты не предназначены для свай!

Обвязка свай из пакета досок 50х200мм;

Полы и потолок чердака под 200мм утепление из доски 50х200мм;

Стены под 150мм утепление из доски 50х150мм;

Стропила рассчитаны под 4 регион снеговой и ветровой из доски 50х150мм;

Покрытие кровли металлочерепица или профлист.

Скачивать https://boosty.to/karkasplan/posts/6fcdfdf0-882d-4d0a-b841-71dd705c08a0?share=success_publish_link

Все удачного дня! Задавайте вопросы в комментариях.