Найти в Дзене
СК Новый дом

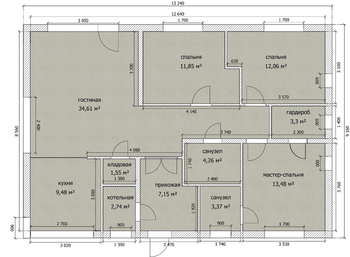
Проект дома под ипотеку 113 м.кв 3 спальни

Одноэтажный частный дом площадью 113 м.кв по индивидуальному проекту. Идеально подойдёт для семьи, ценящей комфорт и функциональность. В проекте предусмотрены три уютные спальни и просторная кухня-гостиная, объединяющая зону отдыха и приёма пищи. Сметный расчет стоимости комплектации "предчистовая" - с фасадом, окнами, входной дверью, разводкой сетей и внутренней отделкой. Фундамент ленточный. Кровля мягкая черепица четырехскатная. Фасад фактурная штукатурка. Каждую неделю новые проекты - Подписаться на канал Смета на странице проекта - https://nd-dsk.ru/pro/nd-6859/
Оглавление

Одноэтажный частный дом площадью 113 м.кв по индивидуальному проекту. Идеально подойдёт для семьи, ценящей комфорт и функциональность. В проекте предусмотрены три уютные спальни и просторная кухня-гостиная, объединяющая зону отдыха и приёма пищи.

  • 113 м.кв - дом один этаж
  • 9 х 13 метров
  • 3 спальни

Комплектация

Сметный расчет стоимости комплектации "предчистовая" - с фасадом, окнами, входной дверью, разводкой сетей и внутренней отделкой. Фундамент ленточный. Кровля мягкая черепица четырехскатная. Фасад фактурная штукатурка.

Цена строительства

  • 6 971 254 руб - газоблок 300 мм

-2
-3
-4
-5
-6

Каждую неделю новые проекты - Подписаться на канал

Смета на странице проекта - https://nd-dsk.ru/pro/nd-6859/