Добавить в корзинуПозвонить
Найти в Дзене

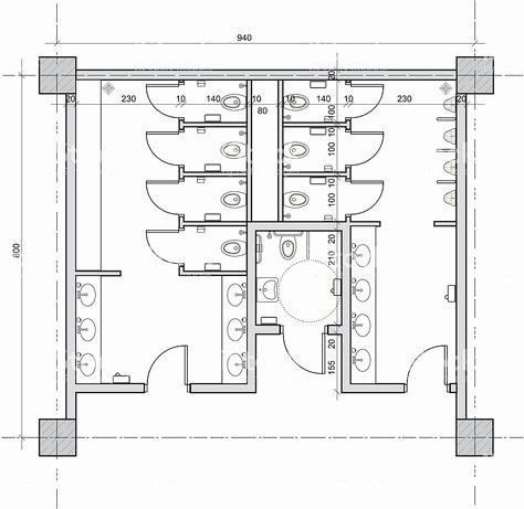
Что такое 11 раздел МОДИ?

11 раздел МОДИ — это обязательный раздел проектной документации, направленный на создание доступной среды для людей с инвалидностью и маломобильных групп населения (МГН). На объектах, построенных после 2008 года, мероприятия по обеспечению доступности выделены в отдельный раздел, который является неотъемлемой частью проекта. Ранее этот раздел назывался 10 разделом ОДИ (обеспечение доступности инвалидов), но с изменениями в законодательстве он был переименован и стал обязательным при капитальном строительстве как производственных, так и непроизводственных объектов. Оценить затраты на обеспечение доступности и объем необходимых работ без профессионально разработанного проекта невозможно. Именно качественная проектная документация становится основой для успешного оснащения объекта, учитывающего потребности людей с ограниченными возможностями здоровья. Корректное проектирование мероприятий МОДИ гарантирует создание комфортной и безопасной среды для всех категорий пользователей.

11 раздел МОДИ — это обязательный раздел проектной документации, направленный на создание доступной среды для людей с инвалидностью и маломобильных групп населения (МГН). На объектах, построенных после 2008 года, мероприятия по обеспечению доступности выделены в отдельный раздел, который является неотъемлемой частью проекта.

Ранее этот раздел назывался 10 разделом ОДИ (обеспечение доступности инвалидов), но с изменениями в законодательстве он был переименован и стал обязательным при капитальном строительстве как производственных, так и непроизводственных объектов.

Оценить затраты на обеспечение доступности и объем необходимых работ без профессионально разработанного проекта невозможно. Именно качественная проектная документация становится основой для успешного оснащения объекта, учитывающего потребности людей с ограниченными возможностями здоровья.

Корректное проектирование мероприятий МОДИ гарантирует создание комфортной и безопасной среды для всех категорий пользователей.

-2